New Homes » Tokai » Aichi Prefecture » Iwakura
 
| | Aichi Prefecture Iwakura 愛知県岩倉市 |
| Inuyamasen Meitetsu "Iwakura" walk 9 minutes 名鉄犬山線「岩倉」歩9分 |
| [Forest Notes Iwakura Iwakura Station east of the house Part3] Seller Property ■ Meitetsu Inuyama Line "Iwakura" a 9-minute walk from the station! 【フォレストノート 岩倉市 岩倉駅東の家 Part3】 売主物件■名鉄犬山線「岩倉」駅より徒歩9分! |
| ○ feature construction housing performance with evaluation, Design house performance with evaluation, Measures to conserve energy, Long-term high-quality housing, Solar power system, Pre-ground survey, Seismic fit, Parking two Allowed, Energy-saving water heaters, System kitchen, Bathroom Dryer, LDK15 tatami mats or more, Or more before road 6m, Washbasin with shower, Face-to-face kitchen, Toilet 2 places, Bathroom 1 tsubo or more, 2-story, South balcony, Double-glazing, Warm water washing toilet seat, Nantei, Underfloor Storage, The window in the bathroom, TV monitor interphone, High-function toilet, IH cooking heater, Dish washing dryer, Walk-in closet, Water filter, City gas, Floor heating ● Other inquiries about property is, Please from "document request button" of orange! ○特徴建設住宅性能評価付、設計住宅性能評価付、省エネルギー対策、長期優良住宅、太陽光発電システム、地盤調査済、耐震適合、駐車2台可、省エネ給湯器、システムキッチン、浴室乾燥機、LDK15畳以上、前道6m以上、シャワー付洗面台、対面式キッチン、トイレ2ヶ所、浴室1坪以上、2階建、南面バルコニー、複層ガラス、温水洗浄便座、南庭、床下収納、浴室に窓、TVモニタ付インターホン、高機能トイレ、IHクッキングヒーター、食器洗乾燥機、ウォークインクロゼット、浄水器、都市ガス、床暖房●そのほか物件に関するお問い合わせは、オレンジ色の「資料請求ボタン」からどうぞ! |
Seller comments 売主コメント | | Building A A棟 | Local guide map 現地案内図 | | Local guide map 現地案内図 | Features pickup 特徴ピックアップ | | Construction housing performance with evaluation / Design house performance with evaluation / Measures to conserve energy / Long-term high-quality housing / Solar power system / Pre-ground survey / Seismic fit / Parking two Allowed / Immediate Available / Energy-saving water heaters / System kitchen / Bathroom Dryer / LDK15 tatami mats or more / Or more before road 6m / Washbasin with shower / Face-to-face kitchen / Toilet 2 places / Bathroom 1 tsubo or more / 2-story / South balcony / Double-glazing / Warm water washing toilet seat / Nantei / Underfloor Storage / The window in the bathroom / TV monitor interphone / High-function toilet / IH cooking heater / Dish washing dryer / Walk-in closet / Water filter / City gas / Floor heating 建設住宅性能評価付 /設計住宅性能評価付 /省エネルギー対策 /長期優良住宅 /太陽光発電システム /地盤調査済 /耐震適合 /駐車2台可 /即入居可 /省エネ給湯器 /システムキッチン /浴室乾燥機 /LDK15畳以上 /前道6m以上 /シャワー付洗面台 /対面式キッチン /トイレ2ヶ所 /浴室1坪以上 /2階建 /南面バルコニー /複層ガラス /温水洗浄便座 /南庭 /床下収納 /浴室に窓 /TVモニタ付インターホン /高機能トイレ /IHクッキングヒーター /食器洗乾燥機 /ウォークインクロゼット /浄水器 /都市ガス /床暖房 | Event information イベント情報 | | Local tours (Please be sure to ask in advance) time / 10:00 ~ 17:00 As you can see slowly, We will arrange. Than "Request button", Please inform the tour desired time in advance. 現地見学会(事前に必ずお問い合わせください)時間/10:00 ~ 17:00ゆっくりご覧いただけますよう、手配いたします。「資料請求ボタン」より、事前に見学希望時間をお知らせください。 | Property name 物件名 | | Forest Notes Iwakura Iwakura Station east of the house Part3 [Solar power standard] Seller Property フォレストノート 岩倉市 岩倉駅東の家 Part3 【太陽光発電標準装備】 売主物件 | Price 価格 | | 34,500,000 yen ・ 40,500,000 yen 3450万円・4050万円 | Floor plan 間取り | | 4LDK + 2S (storeroom) ・ 5LDK + 2S (storeroom) 4LDK+2S(納戸)・5LDK+2S(納戸) | Units sold 販売戸数 | | 2 units 2戸 | Total units 総戸数 | | 4 units 4戸 | Land area 土地面積 | | 135.05 sq m ・ 152.36 sq m (40.85 tsubo ・ 46.08 square meters) 135.05m2・152.36m2(40.85坪・46.08坪) | Building area 建物面積 | | 110.94 sq m ・ 116.49 sq m (33.55 tsubo ・ 35.23 square meters) 110.94m2・116.49m2(33.55坪・35.23坪) | Driveway burden-road 私道負担・道路 | | North 6.0m east 12.0m 北側6.0m 東側12.0m | Completion date 完成時期(築年月) | | In late September 2013 2013年9月下旬 | Address 住所 | | Aichi Prefecture Iwakura Shitahon cho Shinkoji 221 No. 愛知県岩倉市下本町真光寺221番 | Traffic 交通 | | Inuyamasen Meitetsu "Iwakura" walk 9 minutes 名鉄犬山線「岩倉」歩9分
| Related links 関連リンク | | [Related Sites of this company] 【この会社の関連サイト】 | Contact お問い合せ先 | | (Ltd.) Wood Friends TEL: 0800-603-1631 [Toll free] mobile phone ・ Also available from PHS Caller ID is not notified Please contact the "saw SUUMO (Sumo)" If it does not lead, If the real estate company (株)ウッドフレンズTEL:0800-603-1631【通話料無料】携帯電話・PHSからもご利用いただけます 発信者番号は通知されません 「SUUMO(スーモ)を見た」と問い合わせください つながらない方、不動産会社の方は
| Sale schedule 販売スケジュール | | Funds ・ Also, such as loan of worry, Than "Request button", Please feel free to ask. 資金・ローンのご心配なども、「資料請求ボタン」より、お気軽にお尋ねください。 | Building coverage, floor area ratio 建ぺい率・容積率 | | Building coverage: 60%, Volume ratio: 200% 建ぺい率:60%、容積率:200% | Time residents 入居時期 | | Immediate available 即入居可 | Land of the right form 土地の権利形態 | | Ownership 所有権 | Structure and method of construction 構造・工法 | | Wooden Galvalume steel Itabuki 2 story 木造ガルバリウム鋼板葺2階建 | Construction 施工 | | Co., Ltd. Wood Friends 株式会社ウッドフレンズ | Use district 用途地域 | | One dwelling 1種住居 | Land category 地目 | | Residential land 宅地 | Overview and notices その他概要・特記事項 | | Building confirmation number: No. BVJ-E13-10-0479 other 建築確認番号:第BVJ-E13-10-0479号 他 | Company profile 会社概要 | | <Seller> Minister of Land, Infrastructure and Transport (3) No. 006013 (Corporation) Aichi Prefecture Building Lots and Buildings Transaction Business Association Tokai Real Estate Fair Trade Council member (Ltd.) Wood Friends Yubinbango460-0008 Sakae, Naka-ku, Nagoya, Aichi Prefecture 4-5-3 <売主>国土交通大臣(3)第006013号(公社)愛知県宅地建物取引業協会会員 東海不動産公正取引協議会加盟(株)ウッドフレンズ〒460-0008 愛知県名古屋市中区栄4-5-3 |
Local appearance photo現地外観写真  Spacious living room of A Togaikan photo 20.1 Pledge is, We planned so as to be open space to be able to spend comfortable even invited the people. 2WAY of entrance cloak that can separate the conductor of the customer and his family, Keep clean the entrance.
A棟外観写真20.1帖の広々リビングは、人を招いても快適に過ごせる開放的な空間となるよう計画しました。お客様と家族の導線を分けることができる2WAYの玄関クロークは、玄関をすっきり保てます。
Livingリビング  Open-minded spacious living of building A living 20.1 Pledge is, You can comfortably spend with your family.
A棟リビング20.1帖の開放的な広々リビングは、ご家族でゆったり過ごすことができます。
Non-living roomリビング以外の居室  By the Western and two-door 1 Room of Building A Master Bedroom Master Bedroom is next, We can respond to changes in the future of lifestyle.
A棟主寝室主寝室は隣りの洋室と2ドア1ルームとすることで、将来のライフスタイルの変化に対応可能です。
Receipt収納  Walk-in closet, which was installed in the building A walk-in closet Master bedroom, You can distinguish in the husband and wife.
A棟ウォークインクローゼット主寝室に設置したウォークインクローゼットは、夫婦での使い分けが可能です。
Local appearance photo現地外観写真  D Togaikan photo 5LDK plan! Is a corner lot. Taking advantage of the corner lot, The LDK and the Japanese-style lighting was planned to the resulting easy to position. In Japanese-style room with 5LDK plan, Living with your parents is also possible.
D棟外観写真5LDKプラン!角地です。角地を活かし、LDKと和室を採光が得られやすい位置に計画しました。和室付き5LDKプランで、ご両親との同居も可能です。
Livingリビング  Living opened in the D building living south is, Flooded with natural light, Spend the gentle moments while enjoying a conversation in the family.
D棟リビング南面に開けたリビングは、自然の光があふれ、家族で会話を楽しみながら穏やかなひとときを過ごせます。
Non-living roomリビング以外の居室  The main bedroom, which was nestled the D Building Master Bedroom WIC is, Produce a sense of openness in the gradient ceiling.
D棟主寝室WICを設えた主寝室は、勾配天井で開放感を演出。
 Building D Western-style two-door 1 room of Western-style is, Partition is also possible. In accordance with the growth of the child, You can also arrange the room.
D棟洋室2ドア1ルームの洋室は、間仕切りも可能。お子様の成長に合わせて、部屋をアレンジすることもできます。
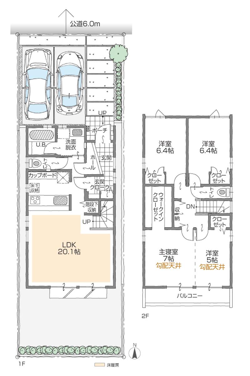
Floor plan間取り図  (A Building), Price 34,500,000 yen, 4LDK+2S, Land area 135.05 sq m , Building area 110.94 sq m
(A棟)、価格3450万円、4LDK+2S、土地面積135.05m2、建物面積110.94m2
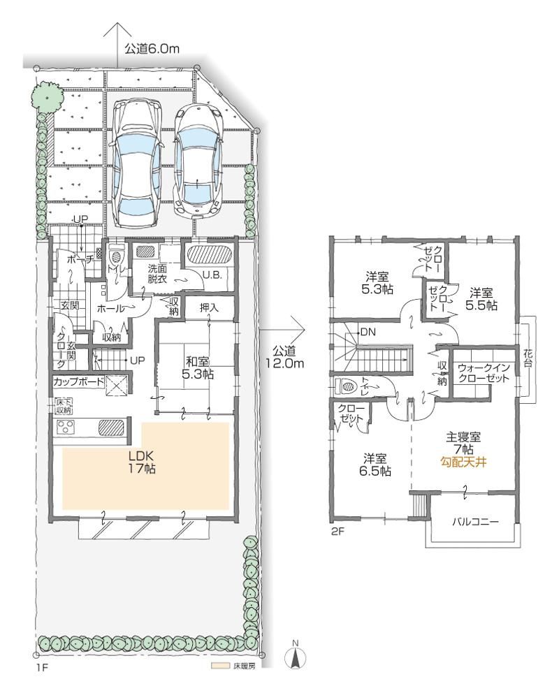
 (D Building), Price 40,500,000 yen, 5LDK+2S, Land area 152.36 sq m , Building area 116.49 sq m
(D棟)、価格4050万円、5LDK+2S、土地面積152.36m2、建物面積116.49m2
 Local guide map
現地案内図
 The entire compartment Figure
全体区画図
Otherその他  Safe production of structural materials in our factory
自社工場で構造材を安心生産
 Peace of mind in the long-term high-quality housing ・ Favorable living
長期優良住宅で安心・有利な暮らし
 Wood Friends Group Business Information
ウッドフレンズグループ事業案内
 Design performance evaluation nationwide 8th! Construction performance evaluation nationwide 7th!
設計性能評価全国8位!建設性能評価全国7位!
Junior high school中学校  Iwakura to City Southern Junior High School 1230m
岩倉市立南部中学校まで1230m
Primary school小学校  Iwakura stand until the elementary school 1526m
岩倉市立曽野小学校まで1526m
Kindergarten ・ Nursery幼稚園・保育園  Iwakura 遊花 to kindergarten 620m
岩倉遊花幼稚園まで620m
 Local guide map
現地案内図
Park公園  1755m up to Central Park
中央公園まで1755m
Location
|