New Homes » Tokai » Aichi Prefecture » Kariya
 
| | Kariya City, Aichi Prefecture 愛知県刈谷市 |
| Nagoyahonsen Meitetsu "Fuji pine" walk 13 minutes 名鉄名古屋本線「富士松」歩13分 |
| Popular all-electric newly built single-family ☆ Excellent is the next generation specification housing in an air-tight insulation! Since the inspection by a third party of the housing inspection company at the time of construction is done, Buy with confidence ・ You can you live! 人気のオール電化新築戸建☆気密断熱に優れた次世代仕様住宅です!建築時に第3者の住宅検査会社による検査が行われますので、安心して購入・お住まい頂けます! |
| About 11 minutes walk from the Meitetsu main line "Fuji pine" station! Commute ・ It is conveniently located to go to school ☆ primary school ・ Since junior high school is also a close, School children is also a distance of peace of mind! ! This listing is based on the ground survey, Foundation mat foundation. Dairaito to increase the strength of the house, Adopt a basic packing method! 名鉄本線『富士松』駅まで徒歩約11分!通勤・通学に便利な立地です☆小学校・中学校も至近なので、お子様の通学も安心の距離です!!当物件は地盤調査に基づき、基礎はベタ基礎。住まいの強度を高めるダイライト、基礎パッキン工法を採用! |
Features pickup 特徴ピックアップ | | Airtight high insulated houses / Parking two Allowed / Energy-saving water heaters / Facing south / System kitchen / Bathroom Dryer / Yang per good / All room storage / LDK15 tatami mats or more / Or more before road 6m / Japanese-style room / garden / Washbasin with shower / Face-to-face kitchen / Toilet 2 places / Bathroom 1 tsubo or more / 2-story / South balcony / Double-glazing / Otobasu / Warm water washing toilet seat / Underfloor Storage / The window in the bathroom / TV monitor interphone / IH cooking heater / Dish washing dryer / Walk-in closet / All-electric 高気密高断熱住宅 /駐車2台可 /省エネ給湯器 /南向き /システムキッチン /浴室乾燥機 /陽当り良好 /全居室収納 /LDK15畳以上 /前道6m以上 /和室 /庭 /シャワー付洗面台 /対面式キッチン /トイレ2ヶ所 /浴室1坪以上 /2階建 /南面バルコニー /複層ガラス /オートバス /温水洗浄便座 /床下収納 /浴室に窓 /TVモニタ付インターホン /IHクッキングヒーター /食器洗乾燥機 /ウォークインクロゼット /オール電化 | Event information イベント情報 | | Open House (Please visitors to direct local) schedule / Every Saturday and Sunday time / 13:00 ~ 17:00 other than Saturday and Sunday will be local guides if you can connect! オープンハウス(直接現地へご来場ください)日程/毎週土日時間/13:00 ~ 17:00土日以外でもご連絡頂ければ現地案内いたします! | Price 価格 | | 28.8 million yen 2880万円 | Floor plan 間取り | | 4LDK + S (storeroom) 4LDK+S(納戸) | Units sold 販売戸数 | | 1 units 1戸 | Land area 土地面積 | | 132.46 sq m 132.46m2 | Building area 建物面積 | | 105.17 sq m 105.17m2 | Driveway burden-road 私道負担・道路 | | Nothing, Southwest 21m width (contact the road width 9m) 無、南西21m幅(接道幅9m) | Completion date 完成時期(築年月) | | August 2013 2013年8月 | Address 住所 | | TeKake Kariya City, Aichi Prefecture IMAOKA cho 愛知県刈谷市今岡町手掛 | Traffic 交通 | | Nagoyahonsen Meitetsu "Fuji pine" walk 13 minutes Nagoyahonsen Meitetsu "Hitotsugi" walk 23 minutes Nagoyahonsen Meitetsu "Toyoaki" walk 28 minutes 名鉄名古屋本線「富士松」歩13分 名鉄名古屋本線「一ツ木」歩23分 名鉄名古屋本線「豊明」歩28分
| Related links 関連リンク | | [Related Sites of this company] 【この会社の関連サイト】 | Person in charge 担当者より | | Person in charge of forest 担当者林 | Contact お問い合せ先 | | Co., Ltd. Toyo Home TEL: 0800-603-1768 [Toll free] mobile phone ・ Also available from PHS Caller ID is not notified Please contact the "saw SUUMO (Sumo)" If it does not lead, If the real estate company (株)トーヨーホームTEL:0800-603-1768【通話料無料】携帯電話・PHSからもご利用いただけます 発信者番号は通知されません 「SUUMO(スーモ)を見た」と問い合わせください つながらない方、不動産会社の方は
| Building coverage, floor area ratio 建ぺい率・容積率 | | 60% ・ 200% 60%・200% | Time residents 入居時期 | | Consultation 相談 | Land of the right form 土地の権利形態 | | Ownership 所有権 | Structure and method of construction 構造・工法 | | Wooden 2-story (framing method) 木造2階建(軸組工法) | Construction 施工 | | Co., Ltd. Toyo Home (株)トーヨーホーム | Use district 用途地域 | | Two dwellings 2種住居 | Other limitations その他制限事項 | | Regulations have by the Law for the Protection of Cultural Properties, Agricultural Land Act notification requirements 文化財保護法による規制有、農地法届出要 | Overview and notices その他概要・特記事項 | | Contact: Lin, Facilities: Public Water Supply, This sewage, All-electric, Building confirmation number: No. H24 confirmation architecture Love Kenjuse No. 60612, Parking: car space 担当者:林、設備:公営水道、本下水、オール電化、建築確認番号:第H24確認建築愛建住セ60612号、駐車場:カースペース | Company profile 会社概要 | | <Seller> Governor of Aichi Prefecture (8) No. 008974 (Ltd.) Toyo Home Yubinbango470-0202 Aichi Prefecture, Miyoshi City Miyoshigaoka 1-2-1 <売主>愛知県知事(8)第008974号(株)トーヨーホーム〒470-0202 愛知県みよし市三好丘1-2-1 |
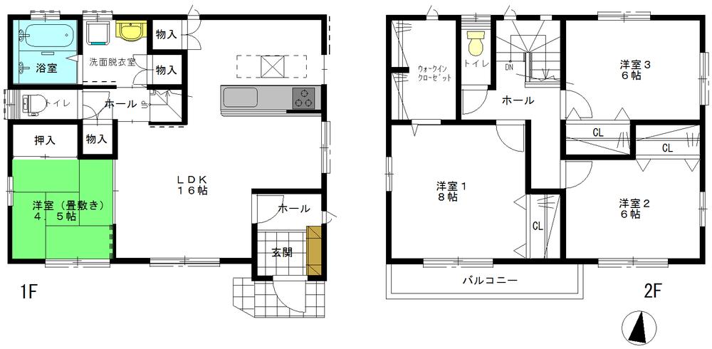
Floor plan間取り図  28.8 million yen, 4LDK + S (storeroom), Land area 132.46 sq m , Building area 105.17 sq m all-electric ☆ Storage is enhanced! !
2880万円、4LDK+S(納戸)、土地面積132.46m2、建物面積105.17m2 オール電化☆収納充実です!!
Local appearance photo現地外観写真  Overall Local (10 May 2013) Shooting
全体 現地(2013年10月)撮影
 From entrance Local (12 May 2013) Shooting
玄関より 現地(2013年12月)撮影
Livingリビング  Indoor (12 May 2013) Shooting
室内(2013年12月)撮影
Bathroom浴室  Butte 1616 Indoor (12 May 2013) Shooting
ビュート1616 室内(2013年12月)撮影
Kitchenキッチン  To class kitchen
トクラスキッチン
Entrance玄関  Cupboard, With mirror!
下駄箱、鏡付き!
Wash basin, toilet洗面台・洗面所  Epoch E
エポックE
Receipt収納  Convenient walk-in closet!
便利なウォークインクローゼット!
Toiletトイレ  Ameju Z
アメージュZ
Local photos, including front road前面道路含む現地写真  Local (March 2013) Shooting
現地(2013年3月)撮影
Shopping centreショッピングセンター  1816m until the Mac House ion Town Kariya shop
マックハウスイオンタウン刈谷店まで1816m
Other introspectionその他内観  1F Japanese-style room
1F和室
Bathroom浴室  24-hour ventilation system
24時間換気システム
Kitchenキッチン  With dishwasher!
食洗機付き!
Receipt収納  Sliding under the floor storage
スライド式床下収納
Junior high school中学校  873m until Kariya Municipal Fuji pine junior high school
刈谷市立富士松中学校まで873m
Other introspectionその他内観  2F Western-style
2F洋室
Primary school小学校  1223m until Kariya Municipal Fuji Shonan elementary school
刈谷市立富士松南小学校まで1223m
Kindergarten ・ Nursery幼稚園・保育園  1090m until Kariya Municipal Fuji Shonan nursery
刈谷市立富士松南保育園まで1090m
Post office郵便局  1097m to Fuji pine post office
富士松郵便局まで1097m
Location
|