New Homes » Tokai » Aichi Prefecture » Kariya
 
| | Kariya City, Aichi Prefecture 愛知県刈谷市 |
| JR Tokaido Line "Shinmachi Noda" walk 11 minutes JR東海道本線「野田新町」歩11分 |
| JR "Shinmachi Noda" walk 11 minutes. Piago, Cedar pharmacy and parks nearby, Living environment better of good location. All building long-term high-quality housing. JR「野田新町」徒歩11分。ピアゴ、スギ薬局や公園近く、生活環境良好の好立地。全棟長期優良住宅です。 |
| ■ All building long-term high-quality housing ■ JR "Noda Shinmachi" walk 11 minutes of good location ■ All rooms have LED lighting ■ City gas (energy-saving water heaters ・ With eco Jaws) ■ Interior and exterior with an emphasis on design ■全棟長期優良住宅■JR「野田新町」徒歩11分の好立地■全室LED照明■都市ガス(省エネ給湯器・エコジョーズ付)■デザイン性を重視した内装や外観 |
Features pickup 特徴ピックアップ | | Pre-ground survey / Parking two Allowed / Immediate Available / It is close to the city / Facing south / System kitchen / All room storage / Flat to the station / LDK15 tatami mats or more / garden / Face-to-face kitchen / Barrier-free / Toilet 2 places / Bathroom 1 tsubo or more / 2-story / Warm water washing toilet seat / Nantei / The window in the bathroom / TV monitor interphone / All living room flooring / Dish washing dryer / Walk-in closet / City gas / Flat terrain / Development subdivision in 地盤調査済 /駐車2台可 /即入居可 /市街地が近い /南向き /システムキッチン /全居室収納 /駅まで平坦 /LDK15畳以上 /庭 /対面式キッチン /バリアフリー /トイレ2ヶ所 /浴室1坪以上 /2階建 /温水洗浄便座 /南庭 /浴室に窓 /TVモニタ付インターホン /全居室フローリング /食器洗乾燥機 /ウォークインクロゼット /都市ガス /平坦地 /開発分譲地内 | Property name 物件名 | | Joyful Town Noda Kariya ジョイフルタウン刈谷野田 | Price 価格 | | 32,800,000 yen ~ 34,500,000 yen 3280万円 ~ 3450万円 | Floor plan 間取り | | 2LDK ~ 3LDK 2LDK ~ 3LDK | Units sold 販売戸数 | | 2 units 2戸 | Total units 総戸数 | | 4 units 4戸 | Land area 土地面積 | | 124.53 sq m ~ 139.76 sq m (registration) 124.53m2 ~ 139.76m2(登記) | Building area 建物面積 | | 92.73 sq m ~ 94.83 sq m (registration) 92.73m2 ~ 94.83m2(登記) | Driveway burden-road 私道負担・道路 | | Road width: 2.7m (setback required) 道路幅:2.7m(セットバック要) | Completion date 完成時期(築年月) | | Early June 2013 2013年6月上旬 | Address 住所 | | Large side street Kariya City, Aichi Prefecture Noda-cho 愛知県刈谷市野田町大脇道 | Traffic 交通 | | JR Tokaido Line "Shinmachi Noda" walk 11 minutes JR東海道本線「野田新町」歩11分
| Related links 関連リンク | | [Related Sites of this company] 【この会社の関連サイト】 | Person in charge 担当者より | | [Regarding this property.] JR "Shinmachi Noda" walk 11 minutes, Piago ・ Cedar pharmacy and parks nearby, Living environment better of good location. All building long-term high-quality housing, Is a high-quality condominiums in pursuit of design and functionality. 【この物件について】JR「野田新町」徒歩11分、ピアゴ・スギ薬局や公園近く、生活環境良好の好立地。全棟長期優良住宅、デザイン性と機能性を追求した高品質分譲住宅です。 | Contact お問い合せ先 | | Co., Ltd. Nice Home TEL: 0800-600-2534 [Toll free] mobile phone ・ Also available from PHS Caller ID is not notified Please contact the "saw SUUMO (Sumo)" If it does not lead, If the real estate company (株)ナイスホームTEL:0800-600-2534【通話料無料】携帯電話・PHSからもご利用いただけます 発信者番号は通知されません 「SUUMO(スーモ)を見た」と問い合わせください つながらない方、不動産会社の方は
| Building coverage, floor area ratio 建ぺい率・容積率 | | Kenpei rate: 60% ・ 160% 建ペい率:60%・160% | Time residents 入居時期 | | Immediate available 即入居可 | Land of the right form 土地の権利形態 | | Ownership 所有権 | Structure and method of construction 構造・工法 | | Wooden 2-story 木造2階建 | Construction 施工 | | Co., Ltd. Nice Home 株式会社ナイスホーム | Use district 用途地域 | | One dwelling 1種住居 | Land category 地目 | | Residential land 宅地 | Company profile 会社概要 | | <Seller> Governor of Aichi Prefecture (4) No. 018646 (Ltd.) Nice Home Yubinbango446-0074 Anjo, Aichi Prefecture Iguiyama cho Takami 3-1 <売主>愛知県知事(4)第018646号(株)ナイスホーム〒446-0074 愛知県安城市井杭山町高見3-1 |
Local appearance photo現地外観写真  Local streets
現地街並み
Livingリビング ![Living. [Building B Living] Relaxed atmosphere on the floor of mature dark shades.](/images/aichi/kariya/091a450030.jpg) [Building B Living] Relaxed atmosphere on the floor of mature dark shades.
【B棟リビング】大人っぽいダークな色合いの床で落ち着いた雰囲気。
![Living. [Building B family space] Family space adjacent to the living room. I worked as a PC corner of the children of study corner and husband and wife.](/images/aichi/kariya/091a450002.jpg) [Building B family space] Family space adjacent to the living room. I worked as a PC corner of the children of study corner and husband and wife.
【B棟ファミリースペース】 リビングに隣接したファミリースペース。お子様のスタディーコーナーやご夫婦のPCコーナーとしても活躍。
Local appearance photo現地外観写真  B Togaikan photo
【B棟外観写真】
Kitchenキッチン ![Kitchen. [Building B Kitchen] Functional Panasonic living station, Dishwasher ・ Glass top gas stove](/images/aichi/kariya/091a450024.jpg) [Building B Kitchen] Functional Panasonic living station, Dishwasher ・ Glass top gas stove
【B棟キッチン】機能的なパナソニックリビングステーション、食器洗い乾燥機・ガラストップガスコンロ
Bathroom浴室 ![Bathroom. [Building B bathroom] Care is easy Panasonic here Ticino](/images/aichi/kariya/091a450026.jpg) [Building B bathroom] Care is easy Panasonic here Ticino
【B棟浴室】お手入れが楽なパナソニックココチーノ
Livingリビング ![Living. [Building C Living] Convenient counter space next to the kitchen. Also dishes while examining the recipes at the counter.](/images/aichi/kariya/091a450006.jpg) [Building C Living] Convenient counter space next to the kitchen. Also dishes while examining the recipes at the counter.
【C棟リビング】キッチンの横には便利なカウンタースペース。カウンターでレシピを調べながらのお料理も。
Non-living roomリビング以外の居室 ![Non-living room. [Building C nursery] Partition possible nursery to match the growth of the child. Children's room to the 2 rooms in the future.](/images/aichi/kariya/091a450009.jpg) [Building C nursery] Partition possible nursery to match the growth of the child. Children's room to the 2 rooms in the future.
【C棟子供部屋】お子様の成長に合わせて間仕切り可能な子供部屋。将来は子供部屋を2部屋に。
Local appearance photo現地外観写真  C Togaikan photo
【C棟外観写真】
Livingリビング ![Living. [Building C Living] Living up stairs. I'm home! When, Children to the second floor through the living room.](/images/aichi/kariya/091a450010.jpg) [Building C Living] Living up stairs. I'm home! When, Children to the second floor through the living room.
【C棟リビング】リビングアップ階段。ただいま!と、お子様はリビングを通って2階へ。
Kitchenキッチン ![Kitchen. [Building C Kitchen] Functional Panasonic living station, Dishwasher ・ Glass top gas stove](/images/aichi/kariya/091a450027.jpg) [Building C Kitchen] Functional Panasonic living station, Dishwasher ・ Glass top gas stove
【C棟キッチン】機能的なパナソニックリビングステーション、食器洗い乾燥機・ガラストップガスコンロ
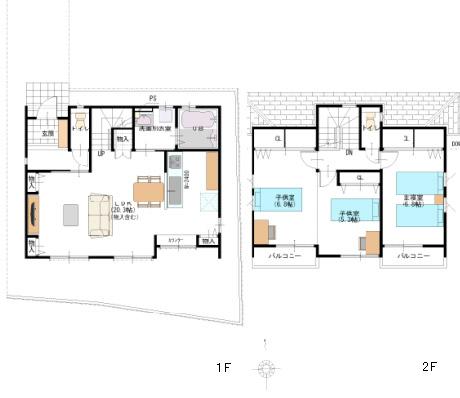
Otherその他  Building B Floor
【B棟間取り】
 Building C Floor
【C棟間取り】
Non-living roomリビング以外の居室 ![Non-living room. [Building B Master Bedroom] Open gradient ceiling Megurase a bold beams.](/images/aichi/kariya/091a450032.jpg) [Building B Master Bedroom] Open gradient ceiling Megurase a bold beams.
【B棟主寝室】大胆な梁をめぐらせた開放的な勾配天井。
Livingリビング ![Living. [Building B Living] Ties deepen living up the stairs of the family. Also useful housed in the back of the family space.](/images/aichi/kariya/091a450034.jpg) [Building B Living] Ties deepen living up the stairs of the family. Also useful housed in the back of the family space.
【B棟リビング】家族の絆深まるリビングアップ階段。ファミリースペースの後ろには便利な収納も。
![Living. [Building C Living] About 20 Pledge a living-dining. I'm glad to storage can also be organized in plenty!](/images/aichi/kariya/091a450033.jpg) [Building C Living] About 20 Pledge a living-dining. I'm glad to storage can also be organized in plenty!
【C棟リビング】約20帖あるリビングダイニング。収納もたっぷりで整理整頓できて嬉しい!
Kindergarten ・ Nursery幼稚園・保育園  1300m until Kariya Municipal Asahi kindergarten
刈谷市立朝日幼稚園まで1300m
Primary school小学校  1300m until Kariya Municipal Asahi Elementary School
刈谷市立朝日小学校まで1300m
Junior high school中学校  1550m until Kariya Municipal Asahi Junior High School
刈谷市立朝日中学校まで1550m
Other Equipmentその他設備 ![Other Equipment. [Building B basin] Easy-to-use three-sided mirror Panasonic NEWCLine](/images/aichi/kariya/091a450025.jpg) [Building B basin] Easy-to-use three-sided mirror Panasonic NEWCLine
【B棟洗面】使いやすい3面鏡 パナソニックNEWCLine
![Other Equipment. [Building C basin] Easy-to-use three-sided mirror Panasonic NEWCLine](/images/aichi/kariya/091a450028.jpg) [Building C basin] Easy-to-use three-sided mirror Panasonic NEWCLine
【C棟洗面】使いやすい3面鏡 パナソニックNEWCLine
![Other Equipment. [Building C bathroom] Care Easy Panasonic Kokochino](/images/aichi/kariya/091a450029.jpg) [Building C bathroom] Care Easy Panasonic Kokochino
【C棟浴室】お手入れらくらくパナソニック ココチーノ
 The entire compartment Figure
全体区画図
Supermarketスーパー  Piago until Higashikariya shop 450m
ピアゴ東刈谷店まで450m
Drug storeドラッグストア  100m until cedar pharmacy
スギ薬局まで100m
Park公園  50m to Shoei park
松栄公園まで50m
Location
|