New Homes » Tokai » Aichi Prefecture » Kitanagoya
 
| | Aichi Prefecture kitanagoya 愛知県北名古屋市 |
| Inuyamasen Meitetsu "Tokushige ・ Nagoya Tokyo National University of Fine Arts and Music "walk 7 minutes 名鉄犬山線「徳重・名古屋芸大」歩7分 |
| Forest Notes Kitanagoya Tokushige station east of the house [Seller Property] ■ Inuyamasen Meitetsu "Tokushige ・ Nagoya Tokyo National University of Fine Arts and Music, "a 7-minute walk! ■ station ・ Educational institutions ・ Shopping facilities ・ Hospital all within a 10-minute walk! フォレストノート 北名古屋市 徳重駅東の家 【売主物件】■名鉄犬山線「徳重・名古屋芸大」徒歩7分!■駅・教育施設・買物施設・病院すべて徒歩10分圏内! |
| ○ surrounding environment Shikatsu Nishi Elementary School 8 min. Walk Kumano Junior High School A 10-minute walk Clie kindergarten 6 mins Y Store Walk 6 minutes ○ feature construction housing performance with evaluation, Design house performance with evaluation, Measures to conserve energy, Long-term high-quality housing, Solar power system, Pre-ground survey, Seismic fit, Parking two Allowed, LDK18 tatami mats or more, Energy-saving water heaters, Super close, Facing south, System kitchen, Bathroom Dryer, Siemens south roadese-style room, Washbasin with shower, Face-to-face kitchen, South balcony, Double-glazing, Warm water washing toilet seat, Underfloor Storage, The window in the bathroom, Atrium, TV monitor interphone, High-function toilet, IH cooking heater, Dish washing dryer, Water filter, Living stairs, City gas, Floor heating ○周辺環境師勝西小学校 徒歩8分熊野中学校 徒歩10分クリエ幼稚園 徒歩6分Yストア 徒歩6分○特徴建設住宅性能評価付、設計住宅性能評価付、省エネルギー対策、長期優良住宅、太陽光発電システム、地盤調査済、耐震適合、駐車2台可、LDK18畳以上、省エネ給湯器、スーパーが近い、南向き、システムキッチン、浴室乾燥機、南側道路面す、和室、シャワー付洗面台、対面式キッチン、南面バルコニー、複層ガラス、温水洗浄便座、床下収納、浴室に窓、吹抜け、TVモニタ付インターホン、高機能トイレ、IHクッキングヒーター、食器洗乾燥機、浄水器、リビング階段、都市ガス、床暖房 |
Seller comments 売主コメント | | Building E E棟 | Local guide map 現地案内図 | | Local guide map 現地案内図 | Features pickup 特徴ピックアップ | | Construction housing performance with evaluation / Design house performance with evaluation / Measures to conserve energy / Long-term high-quality housing / Solar power system / Pre-ground survey / Seismic fit / Parking two Allowed / Immediate Available / Energy-saving water heaters / Super close / Facing south / System kitchen / Bathroom Dryer / Siemens south road / LDK15 tatami mats or more / Japanese-style room / Washbasin with shower / Face-to-face kitchen / Toilet 2 places / 2-story / South balcony / Double-glazing / Warm water washing toilet seat / Underfloor Storage / The window in the bathroom / Atrium / TV monitor interphone / High-function toilet / IH cooking heater / Dish washing dryer / Walk-in closet / Water filter / Living stairs / City gas / Floor heating 建設住宅性能評価付 /設計住宅性能評価付 /省エネルギー対策 /長期優良住宅 /太陽光発電システム /地盤調査済 /耐震適合 /駐車2台可 /即入居可 /省エネ給湯器 /スーパーが近い /南向き /システムキッチン /浴室乾燥機 /南側道路面す /LDK15畳以上 /和室 /シャワー付洗面台 /対面式キッチン /トイレ2ヶ所 /2階建 /南面バルコニー /複層ガラス /温水洗浄便座 /床下収納 /浴室に窓 /吹抜け /TVモニタ付インターホン /高機能トイレ /IHクッキングヒーター /食器洗乾燥機 /ウォークインクロゼット /浄水器 /リビング階段 /都市ガス /床暖房 | Event information イベント情報 | | Local guide Board (Please be sure to ask in advance) time / 10:00 ~ 17:00 As you can see slowly, We will arrange. Than "Request button", Please inform the tour desired time in advance. 現地案内会(事前に必ずお問い合わせください)時間/10:00 ~ 17:00ゆっくりご覧いただけますよう、手配いたします。「資料請求ボタン」より、事前に見学希望時間をお知らせください。 | Property name 物件名 | | Forest Notes Kitanagoya Tokushige station east of the house [Solar power standard! ] Seller Property フォレストノート 北名古屋市 徳重駅東の家 【太陽光発電標準装備!】 売主物件 | Price 価格 | | 37,800,000 yen ・ 39,500,000 yen 3780万円・3950万円 | Floor plan 間取り | | 3LDK + 3S (storeroom) ・ 4LDK + 2S (storeroom) 3LDK+3S(納戸)・4LDK+2S(納戸) | Units sold 販売戸数 | | 2 units 2戸 | Total units 総戸数 | | 5 units 5戸 | Land area 土地面積 | | 124.19 sq m ・ 131.6 sq m (37.56 tsubo ・ 39.80 square meters) 124.19m2・131.6m2(37.56坪・39.80坪) | Building area 建物面積 | | 114.7 sq m ・ 116.77 sq m (34.69 tsubo ・ 35.32 square meters) 114.7m2・116.77m2(34.69坪・35.32坪) | Driveway burden-road 私道負担・道路 | | South 4.3m 南側4.3m | Completion date 完成時期(築年月) | | 2013 Late July 2013年7月下旬 | Address 住所 | | Aichi Prefecture kitanagoya Shikata Shinmei Supplementary 131 No. 愛知県北名古屋市鹿田神明附131番他 | Traffic 交通 | | Inuyamasen Meitetsu "Tokushige ・ Nagoya Tokyo National University of Fine Arts and Music "walk 7 minutes Inuyamasen Meitetsu "Daisen-ji" walk 18 minutes Inuyamasen Meitetsu "Nishiharu" walk 25 minutes 名鉄犬山線「徳重・名古屋芸大」歩7分 名鉄犬山線「大山寺」歩18分 名鉄犬山線「西春」歩25分
| Related links 関連リンク | | [Related Sites of this company] 【この会社の関連サイト】 | Contact お問い合せ先 | | (Ltd.) Wood Friends TEL: 0800-603-1631 [Toll free] mobile phone ・ Also available from PHS Caller ID is not notified Please contact the "saw SUUMO (Sumo)" If it does not lead, If the real estate company (株)ウッドフレンズTEL:0800-603-1631【通話料無料】携帯電話・PHSからもご利用いただけます 発信者番号は通知されません 「SUUMO(スーモ)を見た」と問い合わせください つながらない方、不動産会社の方は
| Sale schedule 販売スケジュール | | Tax saving ・ Also questions about such expenses, Than "Request button", Please feel free to ask. 節税・諸費用などについてのご質問も、「資料請求ボタン」より、お気軽にお尋ねください。 | Building coverage, floor area ratio 建ぺい率・容積率 | | Building coverage: 60%, Volume ratio: 172% 建ぺい率:60%、容積率:172% | Time residents 入居時期 | | Immediate available 即入居可 | Land of the right form 土地の権利形態 | | Ownership 所有権 | Structure and method of construction 構造・工法 | | Wooden Galvalume steel Itabuki 2 story 木造ガルバリウム鋼板葺2階建 | Construction 施工 | | Co., Ltd. Wood Friends 株式会社ウッドフレンズ | Use district 用途地域 | | One middle and high 1種中高 | Land category 地目 | | Residential land 宅地 | Overview and notices その他概要・特記事項 | | Building confirmation number: No. H24 confirmation architecture Love Kenjuse 25267 other 建築確認番号:第H24確認建築愛建住セ25267号他 | Company profile 会社概要 | | <Seller> Minister of Land, Infrastructure and Transport (3) No. 006013 (Corporation) Aichi Prefecture Building Lots and Buildings Transaction Business Association Tokai Real Estate Fair Trade Council member (Ltd.) Wood Friends Yubinbango460-0008 Sakae, Naka-ku, Nagoya, Aichi Prefecture 4-5-3 <売主>国土交通大臣(3)第006013号(公社)愛知県宅地建物取引業協会会員 東海不動産公正取引協議会加盟(株)ウッドフレンズ〒460-0008 愛知県名古屋市中区栄4-5-3 |
Local appearance photo現地外観写真  A Togaikan photo ※ 2013 / 9 / 9 shooting
A棟外観写真 ※2013/9/9撮影
Livingリビング  Was the face-to-face kitchen so that you can help the housework in the building A living room the whole family. Also, Family will spread to communicate more opportunities to match the face in the living room stairs.
A棟リビング家族みんなで家事をお手伝いできるよう対面式キッチンとしました。また、リビング階段で家族が顔を合わせる機会が増えコミュニケーションが広がります。
Non-living roomリビング以外の居室  Was nestled a large WIC is to open bedroom in Building A Master Bedroom gradient ceiling. .
A棟主寝室勾配天井で開放的な寝室には大型WICをしつらえました。.
Local appearance photo現地外観写真  E Togaikan water around near the stock room and living the top of the blow-attractive! Plan is that you produce a "cute" in bright accent cross and hanging storage of kitchen.
E棟外観水廻り近くのストックルームやリビング上部の吹抜が魅力!明るいアクセントクロスや吊収納のあるキッチンで「かわいい」を演出したプランです。
Livingリビング  Was cute interior and exterior specifications, such as E building living accent cross and hanging storage.
E棟リビングアクセントクロスや吊収納などかわいい内外装仕様としました。
Non-living roomリビング以外の居室  According to the growth of E Building Master Bedroom children, It is also possible design the back of the free space and Majikiriru.
E棟主寝室お子様の成長に合わせ、奥のフリースペースと間仕切ることも可能な設計です。
Kindergarten ・ Nursery幼稚園・保育園  Nagoya University of 480m to University Clie kindergarten
名古屋芸術大学附属クリエ幼稚園まで480m
Primary school小学校  Kitanagoya stand Shikatsu Nishi Elementary School 600m to
北名古屋市立師勝西小学校まで600m
Junior high school中学校  800m to the north of Nagoya Municipal Kumano Junior High School
北名古屋市立熊野中学校まで800m
The entire compartment Figure全体区画図  Compartment figure
区画図
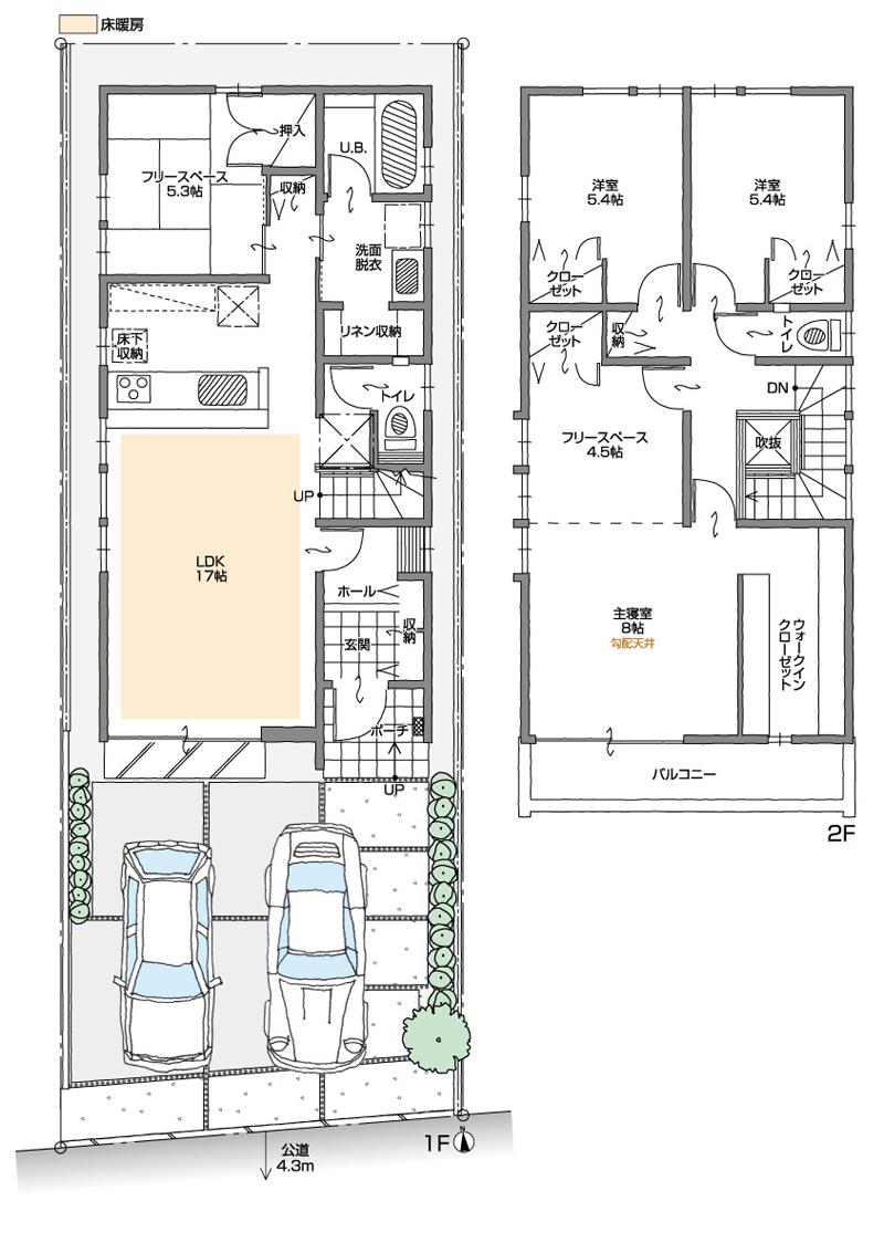
Floor plan間取り図  (A Building), Price 37,800,000 yen, 3LDK+3S, Land area 124.19 sq m , Building area 116.77 sq m
(A棟)、価格3780万円、3LDK+3S、土地面積124.19m2、建物面積116.77m2
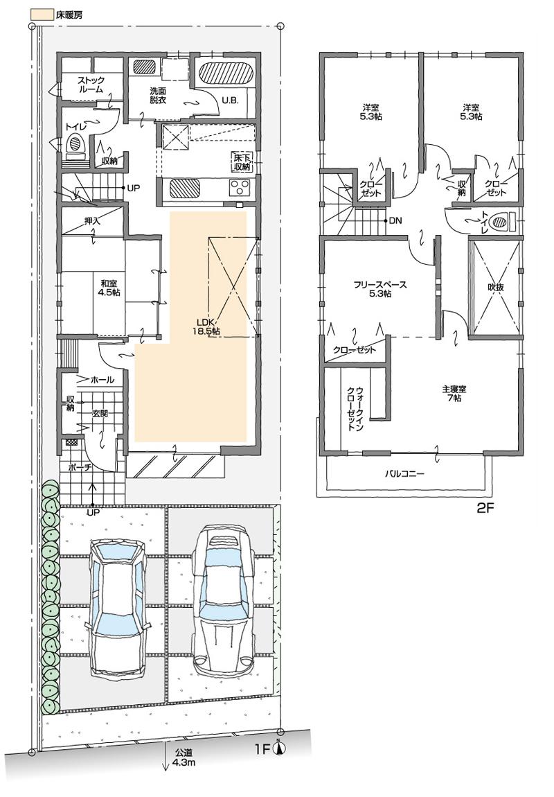
 (E Building), Price 39,500,000 yen, 4LDK+2S, Land area 131.6 sq m , Building area 114.7 sq m
(E棟)、価格3950万円、4LDK+2S、土地面積131.6m2、建物面積114.7m2
Local guide map現地案内図  Wide-area view
広域図
 Detail view
詳細図
Otherその他  Performance evaluation certification Ranking (fiscal 2011) design performance evaluation nationwide 8th! Construction performance evaluation nationwide 7th!
性能評価認定ランキング(2011年度)設計性能評価 全国8位!建設性能評価 全国7位!
 Wood Friends Group Business Information
ウッドフレンズグループ事業案内
 Peace of mind in the long-term high-quality housing ・ Favorable living
長期優良住宅で安心・有利な暮らし
 Safe production of structural materials in our factory
自社工場で構造材を安心生産
Location
|