New Homes » Tokai » Aichi Prefecture » Kiyosu City
 
| | Aichi Prefecture Kiyosu City 愛知県清須市 |
| JR Tokaido Line "Kiyosu" walk 7 minutes JR東海道本線「清洲」歩7分 |
| To Nagoya Station 8 minutes, To Kanayama Station 14 minutes, 8 minutes until the Owari Ichinomiya Station, Commute ・ Convenient to go to school. LDK15 Pledge, All rooms 6 quires more. Yes 1.5 Pledge Walk in closet. 名古屋駅まで8分、金山駅まで14分、尾張一宮駅まで8分で、通勤・通学に便利。LDK15帖、全室6帖以上。ウオークインクロゼット1.5帖あり。 |
| JR Tokaido Line "Kiyosu" walk to the station 7 minutes. Minor changes in the free design object of the house, The color of the flooring, Such as door You can choose. Safe for earthquake Kisogomu specification adopted. It is a structure that was to take care of touch with family in the face-to-face kitchen JR東海道線「清洲」駅まで徒歩7分。自由設計対象の家で細かな変更、フローリングの色、ドアなどが選べます。キソゴム仕様採用で地震にも安心。対面キッチンで家族とのふれあいを大事にした造りです |
Features pickup 特徴ピックアップ | | Pre-ground survey / Vibration Control ・ Seismic isolation ・ Earthquake resistant / Seismic fit / Energy-saving water heaters / Super close / System kitchen / Yang per good / All room storage / Flat to the station / LDK15 tatami mats or more / Or more before road 6m / Corner lot / Japanese-style room / garden / Washbasin with shower / Face-to-face kitchen / Toilet 2 places / Bathroom 1 tsubo or more / 2-story / South balcony / Warm water washing toilet seat / Nantei / Underfloor Storage / The window in the bathroom / TV monitor interphone / Urban neighborhood / Ventilation good / Southwestward / Walk-in closet / City gas / All rooms are two-sided lighting / Maintained sidewalk / Flat terrain 地盤調査済 /制震・免震・耐震 /耐震適合 /省エネ給湯器 /スーパーが近い /システムキッチン /陽当り良好 /全居室収納 /駅まで平坦 /LDK15畳以上 /前道6m以上 /角地 /和室 /庭 /シャワー付洗面台 /対面式キッチン /トイレ2ヶ所 /浴室1坪以上 /2階建 /南面バルコニー /温水洗浄便座 /南庭 /床下収納 /浴室に窓 /TVモニタ付インターホン /都市近郊 /通風良好 /南西向き /ウォークインクロゼット /都市ガス /全室2面採光 /整備された歩道 /平坦地 | Event information イベント情報 | | Local tours (please make a reservation beforehand) schedule / During the public time / 10:00 ~ On sure of bookings towards 18:00 local tour hope, Please specify the tour date and time to the attendant. Also depending on the consultation, such as overtime. 現地見学会(事前に必ず予約してください)日程/公開中時間/10:00 ~ 18:00現地見学希望の方は必ずご予約の上、係員に見学日時を指定してください。時間外なども相談に応じます。 | Price 価格 | | 27,400,000 yen 2740万円 | Floor plan 間取り | | 4LDK 4LDK | Units sold 販売戸数 | | 1 units 1戸 | Total units 総戸数 | | 2 units 2戸 | Land area 土地面積 | | 130.82 sq m (registration) 130.82m2(登記) | Building area 建物面積 | | 101.44 sq m (registration) 101.44m2(登記) | Driveway burden-road 私道負担・道路 | | Contact frontage is more than 2.0m on the west side width about 14.0m of prefectural road (sandwiching the evil waterway for) 西側幅員約14.0mの県道(用悪水路を挟む)に間口が2.0m以上接する | Completion date 完成時期(築年月) | | 6 months after the contract 契約後6ヶ月 | Address 住所 | | Aichi Prefecture Kiyosu City Ichijo bow-cho 68-1 愛知県清須市一場弓町68-1 | Traffic 交通 | | JR Tokaido Line "Kiyosu" walk 7 minutes JR東海道本線「清洲」歩7分
| Related links 関連リンク | | [Related Sites of this company] 【この会社の関連サイト】 | Contact お問い合せ先 | | (Ltd.) Nobuyuki House TEL: 0800-603-1845 [Toll free] mobile phone ・ Also available from PHS Caller ID is not notified Please contact the "saw SUUMO (Sumo)" If it does not lead, If the real estate company (株)伸幸ハウスTEL:0800-603-1845【通話料無料】携帯電話・PHSからもご利用いただけます 発信者番号は通知されません 「SUUMO(スーモ)を見た」と問い合わせください つながらない方、不動産会社の方は
| Building coverage, floor area ratio 建ぺい率・容積率 | | Building coverage 60%, Volume rate of 200% 建ぺい率60%、容積率200% | Time residents 入居時期 | | 6 months after the contract 契約後6ヶ月 | Land of the right form 土地の権利形態 | | Ownership 所有権 | Structure and method of construction 構造・工法 | | Wooden slate 葺 2-story (framing method) 木造スレート葺 2階建(軸組工法) | Use district 用途地域 | | One dwelling 1種住居 | Land category 地目 | | Rice field 田 | Overview and notices その他概要・特記事項 | | Building confirmation number: No. H23 確合 architecture Love Kenjuse No. 20618 建築確認番号:第H23確合建築愛建住セ20618号 | Company profile 会社概要 | | <Seller> Governor of Aichi Prefecture (8) No. 013638 (Ltd.) Nobuyuki House Yubinbango490-1116 Sandanji Aichi Prefecture Ama, Aichi Hongo 108-5 <売主>愛知県知事(8)第013638号(株)伸幸ハウス〒490-1116 愛知県あま市本郷三反地108-5 |
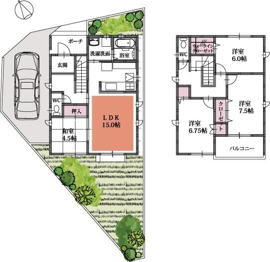
Floor plan間取り図  (A), Price 27,400,000 yen, 4LDK, Land area 130.82 sq m , Building area 101.44 sq m
(A)、価格2740万円、4LDK、土地面積130.82m2、建物面積101.44m2
Rendering (appearance)完成予想図(外観)  (A building) is Rendering. Price 26.7 million yen, Site area 130.82m2, Total floor area 101.44m2 (2012.11.19 update)
(A棟)完成予想図です。価格2670万円、敷地面積130.82m2、延床面積101.44m2 (2012.11.19更新)
The entire compartment Figure全体区画図  A pane view of the Ramaju Kiyosu Ichijo bow-cho
ラマージュ清須一場弓町の区画図です
Local photos, including front road前面道路含む現地写真  Local (December 05, 2013) Shooting. It is the current state. Free design object properties.
現地(2013年12月05日)撮影。現況です。自由設計対象物件。
Other Equipmentその他設備  Our free design of the housing, You can choose, such as your favorite color from each of the parts.
弊社自由設計の住宅は、各パーツからお好きな色などをお選びいただけます。
Power generation ・ Hot water equipment発電・温水設備  Utility costs savings ECO Jaws. Kind to the planet with CO2 emission reduction
ECOジョーズで光熱費節約。CO2排出削減で地球にもやさしい
Same specifications photo (kitchen)同仕様写真(キッチン)  It is the kitchen of the same specification. Color 6 colors (gray ・ White ・ Woodgrain three colors ・ You can choose from red).
同仕様のキッチンです。カラーは6色(グレー・白・木目調3色・赤)からお選びいただけます。
 Security equipment
防犯設備
Construction ・ Construction method ・ specification構造・工法・仕様  GenShin ・ Vibration control ・ ventilation ・ Exert an excellent effect on endurance, Adopted Kisogomu method.
減震・防振・換気・耐久にすぐれた効果を発揮する、キソゴム工法を採用。
 Crowded Place a moisture-proof film, Moisture prevention measures
防湿フィルムを敷きこみ、湿気防止対策
 Rising vertical streak is 250mm spacing the reinforcing steel with a diameter of 10mm (or more treasury standard)
立ち上がり縦筋は直径10mmの鉄筋を250mm間隔(公庫基準以上)
 Foundation completed photo. Subjected to Kisogomu construction method on this.
基礎完成写真。この上にキソゴム工法を施します。
 Construction Example 1
施工例1
Other Equipmentその他設備  Equipped with high storage capacity large shoebox
収納力の高い大型下駄箱を標準装備
Same specifications photo (bathroom)同仕様写真(浴室)  It is a bathroom of the same specification. 1616 in size (1 tsubo), Shape two, Bathtub color four-color, Panel You can choose from 18 colors
同仕様の浴室です。1616サイズ(1坪)で、形状2種、浴槽カラーは4色、パネルは18色からお選びいただけます
Primary school小学校  Kiyosu Municipal Kiyosu to elementary school 1585m
清須市立清洲小学校まで1585m
Junior high school中学校  Kiyosu Municipal Kiyosu until junior high school 954m
清須市立清洲中学校まで954m
Local guide map現地案内図  When traveling by car navigation systems, Please enter the "Kiyosu City Ichijo bow-cho # 68.
カーナビでお越しの際は、「清須市一場弓町68番と入力してください。
Route map路線図  From JR kiyosu station, 9 minutes and the city average of good access to Nagoya Station
JR清洲駅から、名古屋駅まで9分と都心並の好アクセス
Supermarketスーパー  Maxvalu Kiyosu to Kasuga shop 1179m
マックスバリュ清須春日店まで1179m
Otherその他  Per person in charge absence, Local guide ・ Building tour Now accepting applications! Weekday ・ Regardless of Saturday, Sunday and public holidays, Feel free to. We look forward to your phone. 0800-603-1845 (Toll free)
担当者不在に付き、現地ご案内・建物見学 予約受付中!平日・土日祝問わず、お気軽に。お電話お待ちしております。0800-603-1845 (通話料無料)
Location
|