New Homes » Tokai » Aichi Prefecture » Konan
 
| | Aichi Prefecture Konan 愛知県江南市 |
| Inuyamasen Meitetsu "Gangnam" walk 19 minutes 名鉄犬山線「江南」歩19分 |
| Peace of mind with residential warranty against defects insurance ☆ Excellent is the next generation specification housing in an air-tight insulation! Since the inspection by a third party of the housing inspection company at the time of construction is done, Buy with confidence ・ You can you live! 安心の住宅瑕疵担保責任保険付☆気密断熱に優れた次世代仕様住宅です!建築時に第3者の住宅検査会社による検査が行われますので、安心して購入・お住まい頂けます! |
| Within walking distance of the Meitetsu Komaki "Gangnam" station! ! Because of the surrounding environment enhancement, It is very life-friendly environment! This listing is based on the ground survey, Foundation mat foundation. Dairaito to increase the strength of the house, Adopt a basic packing method! 名鉄小牧線「江南」駅まで徒歩圏内!!周辺環境充実のため、大変生活しやすい環境です!当物件は地盤調査に基づき、基礎はベタ基礎。住まいの強度を高めるダイライト、基礎パッキン工法を採用! |
Features pickup 特徴ピックアップ | | Airtight high insulated houses / Parking two Allowed / System kitchen / Yang per good / All room storage / Or more before road 6m / Washbasin with shower / Toilet 2 places / 2-story / Double-glazing / Warm water washing toilet seat / Underfloor Storage / The window in the bathroom / TV monitor interphone / Dish washing dryer / City gas 高気密高断熱住宅 /駐車2台可 /システムキッチン /陽当り良好 /全居室収納 /前道6m以上 /シャワー付洗面台 /トイレ2ヶ所 /2階建 /複層ガラス /温水洗浄便座 /床下収納 /浴室に窓 /TVモニタ付インターホン /食器洗乾燥機 /都市ガス | Price 価格 | | 26,800,000 yen 2680万円 | Floor plan 間取り | | 4LDK + S (storeroom) 4LDK+S(納戸) | Units sold 販売戸数 | | 1 units 1戸 | Total units 総戸数 | | 1 units 1戸 | Land area 土地面積 | | 160 sq m 160m2 | Building area 建物面積 | | 107.66 sq m 107.66m2 | Driveway burden-road 私道負担・道路 | | Nothing, Northwest 9.5m width (contact the road width 7.5m) 無、北西9.5m幅(接道幅7.5m) | Completion date 完成時期(築年月) | | March 2014 2014年3月 | Address 住所 | | Aichi Prefecture Konan Higashino cho Karasumori 7-1 愛知県江南市東野町烏森7-1 | Traffic 交通 | | Inuyamasen Meitetsu "Gangnam" walk 19 minutes Inuyamasen Meitetsu "Hotei" walk 46 minutes Inuyamasen Meitetsu "Kashiwamori" walk 55 minutes 名鉄犬山線「江南」歩19分 名鉄犬山線「布袋」歩46分 名鉄犬山線「柏森」歩55分
| Related links 関連リンク | | [Related Sites of this company] 【この会社の関連サイト】 | Person in charge 担当者より | | Person in charge of forest 担当者林 | Contact お問い合せ先 | | Co., Ltd. Toyo Home TEL: 0800-603-1768 [Toll free] mobile phone ・ Also available from PHS Caller ID is not notified Please contact the "saw SUUMO (Sumo)" If it does not lead, If the real estate company (株)トーヨーホームTEL:0800-603-1768【通話料無料】携帯電話・PHSからもご利用いただけます 発信者番号は通知されません 「SUUMO(スーモ)を見た」と問い合わせください つながらない方、不動産会社の方は
| Building coverage, floor area ratio 建ぺい率・容積率 | | 60% ・ 200% 60%・200% | Time residents 入居時期 | | Consultation 相談 | Land of the right form 土地の権利形態 | | Ownership 所有権 | Structure and method of construction 構造・工法 | | Wooden 2-story (framing method) 木造2階建(軸組工法) | Construction 施工 | | Co., Ltd. Toyo Home (株)トーヨーホーム | Use district 用途地域 | | Urbanization control area 市街化調整区域 | Overview and notices その他概要・特記事項 | | Contact: Lin, Facilities: Public Water Supply, Individual septic tank, City gas, Building Permits reason: land sale by the development permit, etc., Building confirmation number: Se Nos. 60261, Parking: car space 担当者:林、設備:公営水道、個別浄化槽、都市ガス、建築許可理由:開発許可等による分譲地、建築確認番号:セ60261号、駐車場:カースペース | Company profile 会社概要 | | <Seller> Governor of Aichi Prefecture (8) No. 008974 (Ltd.) Toyo Home Yubinbango470-0202 Aichi Prefecture, Miyoshi City Miyoshigaoka 1-2-1 <売主>愛知県知事(8)第008974号(株)トーヨーホーム〒470-0202 愛知県みよし市三好丘1-2-1 |
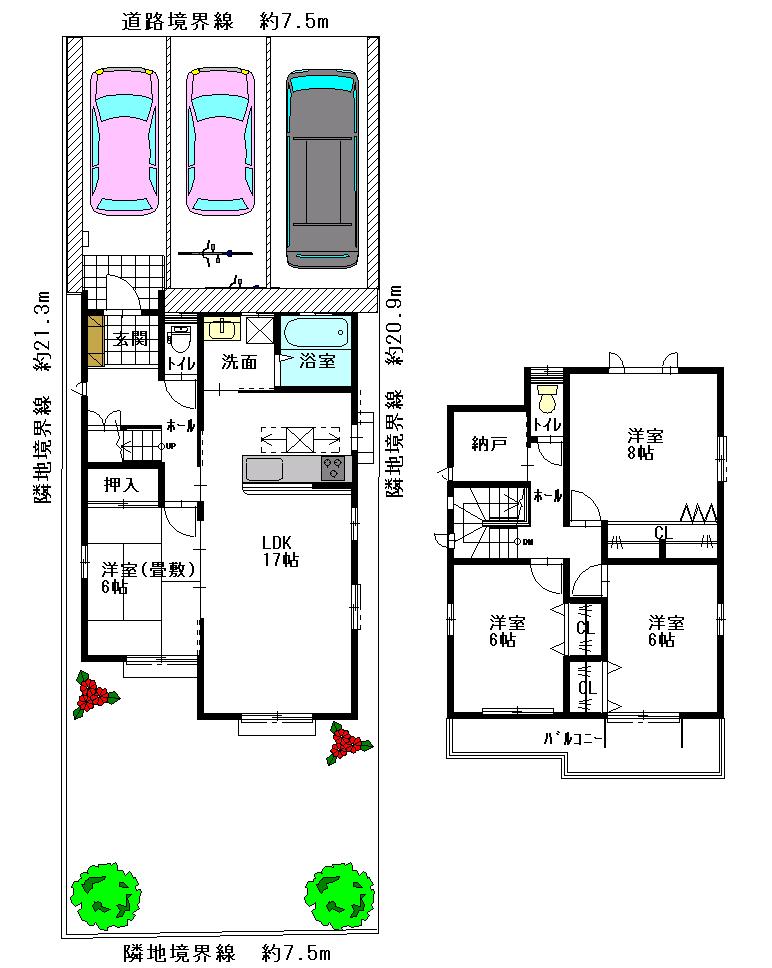
Floor plan間取り図  26,800,000 yen, 4LDK + S (storeroom), Land area 160 sq m , It is a building area of 107.66 sq m floor plan!
2680万円、4LDK+S(納戸)、土地面積160m2、建物面積107.66m2 間取り図です!
Local appearance photo現地外観写真  Local (12 May 2013) Shooting
現地(2013年12月)撮影
Local photos, including front road前面道路含む現地写真  Local (July 2013) Shooting
現地(2013年7月)撮影
Same specifications photo (bathroom)同仕様写真(浴室)  Butte 1616 (same specifications)
ビュート1616(同仕様)
Same specifications photo (kitchen)同仕様写真(キッチン)  To class kitchen (same specifications)
トクラスキッチン(同仕様)
Supermarketスーパー  1006m to Heiwado Gangnam
平和堂江南店まで1006m
Same specifications photos (Other introspection)同仕様写真(その他内観)  Epoch E (same specifications)
エポックE(同仕様)
Supermarketスーパー  Apita 1189m until Gangnam west shop
アピタ江南西店まで1189m
Same specifications photos (Other introspection)同仕様写真(その他内観)  TOTO Washlet made (same specifications)
TOTO製ウォシュレット(同仕様)
Junior high school中学校  2003m to Gangnam Municipal western junior high school
江南市立西部中学校まで2003m
Same specifications photos (Other introspection)同仕様写真(その他内観)  TOT made warm toilet (same specifications)
TOT製ウォームレット(同仕様)
Primary school小学校  Gangnam Municipal Kochino to Nishi Elementary School 1036m
江南市立古知野西小学校まで1036m
Same specifications photos (Other introspection)同仕様写真(その他内観)  Sliding under the floor storage (same specifications)
スライド式床下収納(同仕様)
Kindergarten ・ Nursery幼稚園・保育園  1059m to Gangnam kindergarten
江南幼稚園まで1059m
Same specifications photos (Other introspection)同仕様写真(その他内観)  Washing pan (same specifications)
洗濯パン(同仕様)
Kindergarten ・ Nursery幼稚園・保育園  838m to Gangnam Municipal Kochino west nursery
江南市立古知野西保育園まで838m
Location
|