New Homes » Tokai » Aichi Prefecture » Miyoshi City
 
| | Aichi Prefecture, Miyoshi City 愛知県みよし市 |
| Toyodasen Meitetsu "Nisshin" walk 53 minutes 名鉄豊田線「日進」歩53分 |
| Northwest corner lot! Limit 1 House! Site spacious 56 square meters! Parking parallel two Allowed! South garden spacious! A quiet residential area! Commercial facility enhancement! Life convenient! 北西角地!限定1邸!敷地広々56坪!駐車並列2台可!南側お庭広々!閑静な住宅地!商業施設充実!生活至便! |
| Corresponding to the flat-35S, Year Available, Parking two Allowed, Land 50 square meters or more, System kitchen, Bathroom Dryer, All room storage, A quiet residential area, LDK15 tatami mats or more, Corner lotese-style room, Washbasin with shower, Face-to-face kitchen, Toilet 2 places, Bathroom 1 tsubo or more, 2-story, South balcony, Double-glazing, Nantei, Underfloor Storage, The window in the bathroom, TV monitor interphone, City gas, All rooms are two-sided lighting フラット35Sに対応、年内入居可、駐車2台可、土地50坪以上、システムキッチン、浴室乾燥機、全居室収納、閑静な住宅地、LDK15畳以上、角地、和室、シャワー付洗面台、対面式キッチン、トイレ2ヶ所、浴室1坪以上、2階建、南面バルコニー、複層ガラス、南庭、床下収納、浴室に窓、TVモニタ付インターホン、都市ガス、全室2面採光 |
Features pickup 特徴ピックアップ | | Corresponding to the flat-35S / Parking two Allowed / Land 50 square meters or more / System kitchen / Bathroom Dryer / All room storage / A quiet residential area / LDK15 tatami mats or more / Corner lot / Japanese-style room / Washbasin with shower / Face-to-face kitchen / Toilet 2 places / Bathroom 1 tsubo or more / 2-story / South balcony / Double-glazing / Nantei / Underfloor Storage / The window in the bathroom / TV monitor interphone / City gas / All rooms are two-sided lighting フラット35Sに対応 /駐車2台可 /土地50坪以上 /システムキッチン /浴室乾燥機 /全居室収納 /閑静な住宅地 /LDK15畳以上 /角地 /和室 /シャワー付洗面台 /対面式キッチン /トイレ2ヶ所 /浴室1坪以上 /2階建 /南面バルコニー /複層ガラス /南庭 /床下収納 /浴室に窓 /TVモニタ付インターホン /都市ガス /全室2面採光 | Price 価格 | | 31,800,000 yen 3180万円 | Floor plan 間取り | | 4LDK 4LDK | Units sold 販売戸数 | | 1 units 1戸 | Total units 総戸数 | | 1 units 1戸 | Land area 土地面積 | | 188.07 sq m (56.89 square meters) 188.07m2(56.89坪) | Building area 建物面積 | | 98.41 sq m (29.76 square meters) 98.41m2(29.76坪) | Driveway burden-road 私道負担・道路 | | Nothing, Northwest 2.6m width, West 4.1m width 無、北西2.6m幅、西4.1m幅 | Completion date 完成時期(築年月) | | December 2013 2013年12月 | Address 住所 | | Above, Aichi Prefecture, Miyoshi City, Miyoshi-cho 愛知県みよし市三好町上 | Traffic 交通 | | Toyodasen Meitetsu "Nisshin" walk 53 minutes Subway Tsurumai "Akaike" 15 minutes Miyoshi top walk 3 minutes by bus 名鉄豊田線「日進」歩53分 地下鉄鶴舞線「赤池」バス15分三好町上歩3分
| Related links 関連リンク | | [Related Sites of this company] 【この会社の関連サイト】 | Person in charge 担当者より | | Person in charge of real-estate and building Masato Kubota age: the goodness of cultivated footwork in the 20s for many years came football, Will you alive for our customers! Please your best goal (the house to choose) to assist. 担当者宅建久保田勝人年齢:20代長年やってきたサッカーで培ったフットワークの良さを、お客様のために生かしていきます!お客様の最高のゴール(住まい選び)をアシストさせて下さい。 | Contact お問い合せ先 | | TEL: 0800-603-7139 [Toll free] mobile phone ・ Also available from PHS Caller ID is not notified Please contact the "saw SUUMO (Sumo)" If it does not lead, If the real estate company TEL:0800-603-7139【通話料無料】携帯電話・PHSからもご利用いただけます 発信者番号は通知されません 「SUUMO(スーモ)を見た」と問い合わせください つながらない方、不動産会社の方は
| Building coverage, floor area ratio 建ぺい率・容積率 | | 60% ・ 200% 60%・200% | Time residents 入居時期 | | December 2013 2013年12月 | Land of the right form 土地の権利形態 | | Ownership 所有権 | Structure and method of construction 構造・工法 | | Wooden 2-story 木造2階建 | Use district 用途地域 | | One dwelling 1種住居 | Overview and notices その他概要・特記事項 | | Contact: Masato Kubota, Facilities: Public Water Supply, This sewage, City gas, Building confirmation number: AiKenju Se Nos. 23105, Parking: car space 担当者:久保田勝人、設備:公営水道、本下水、都市ガス、建築確認番号:愛建住セ23105号、駐車場:カースペース | Company profile 会社概要 | | <Mediation> Governor of Aichi Prefecture (2) the first 020,566 No. Century 21 Kowa Real Estate Co., Ltd. Yubinbango468-0015 Tempaku-ku original Nagoya, Aichi Prefecture 1-2401 <仲介>愛知県知事(2)第020566号センチュリー21興和不動産(株)〒468-0015 愛知県名古屋市天白区原1-2401 |
Otherその他  Kids Corner ・ We have parking space! More than 1,500 of the properties You can see. On the day since the guide is also available, Please stop by when some of your time
キッズコーナー・駐車場完備しております!1500件以上の物件がご覧いただけます。当日案内も可能ですので、お時間のある時にお立ち寄りください
Local photos, including front road前面道路含む現地写真  Local (September 2013) Shooting
現地(2013年9月)撮影
 Local (September 2013) Shooting
現地(2013年9月)撮影
Same specifications photo (kitchen)同仕様写真(キッチン)  Same specifications
同仕様
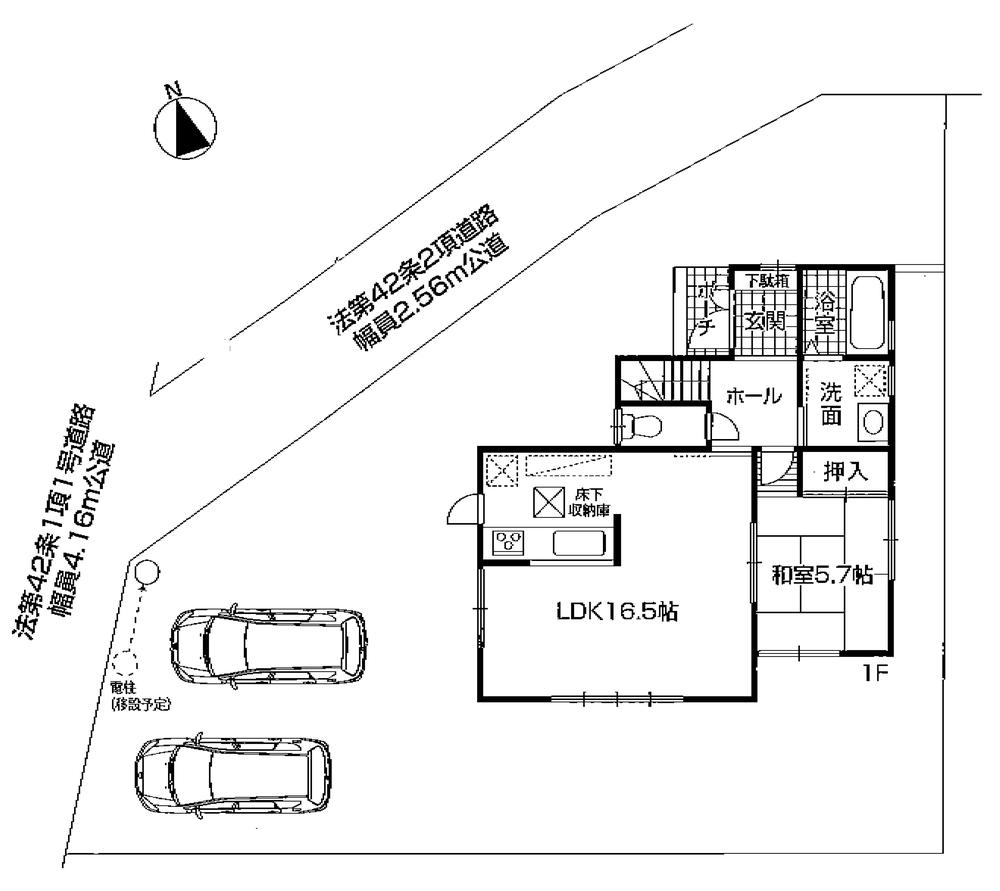
Floor plan間取り図  31,800,000 yen, 4LDK, Land area 188.07 sq m , Building area 98.41 sq m
3180万円、4LDK、土地面積188.07m2、建物面積98.41m2
Same specifications photo (bathroom)同仕様写真(浴室)  Same specifications
同仕様
Compartment figure区画図  31,800,000 yen, 4LDK, Land area 188.07 sq m , Building area 98.41 sq m
3180万円、4LDK、土地面積188.07m2、建物面積98.41m2
Otherその他  Image is a photograph. It is different from the actual building.
イメージ写真です。実際の建物とは異なります。
 Image is a photograph. It is different from the actual building.
イメージ写真です。実際の建物とは異なります。
 Image is a photograph. It is different from the actual building.
イメージ写真です。実際の建物とは異なります。
 Image is a photograph. It is different from the actual building.
イメージ写真です。実際の建物とは異なります。
 Image is a photograph. It is different from the actual building.
イメージ写真です。実際の建物とは異なります。
Location
|