2013May
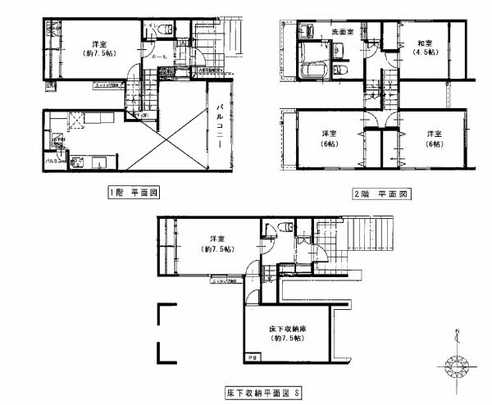
38 million yen, 4LDK + S (storeroom), 114.21 sq m
New Homes » Tokai » Aichi Prefecture » Nagakute
 
| | Aichi Prefecture, Nagakute 愛知県長久手市 |
| Subway Higashiyama Line "Hongo" bus 16 minutes Ithaca green space walk 3 minutes 地下鉄東山線「本郷」バス16分猪高緑地歩3分 |
Price 価格 | | 38 million yen 3800万円 | Floor plan 間取り | | 4LDK + S (storeroom) 4LDK+S(納戸) | Units sold 販売戸数 | | 1 units 1戸 | Land area 土地面積 | | 151 sq m (registration) 151m2(登記) | Building area 建物面積 | | 114.21 sq m (registration) 114.21m2(登記) | Driveway burden-road 私道負担・道路 | | Nothing, East 5.5m width (contact the road width 8.4m) 無、東5.5m幅(接道幅8.4m) | Completion date 完成時期(築年月) | | May 2013 2013年5月 | Address 住所 | | Aichi Prefecture, Nagakute clove fields 愛知県長久手市丁子田 | Traffic 交通 | | Subway Higashiyama Line "Hongo" bus 16 minutes Ithaca green space walk 3 minutes 地下鉄東山線「本郷」バス16分猪高緑地歩3分
| Person in charge 担当者より | | Rep Shimokawa Satoshi 担当者下川 智 | Contact お問い合せ先 | | TEL: 0120-858174 [Toll free] Please contact the "saw SUUMO (Sumo)" TEL:0120-858174【通話料無料】「SUUMO(スーモ)を見た」と問い合わせください | Building coverage, floor area ratio 建ぺい率・容積率 | | 60% ・ 150% 60%・150% | Time residents 入居時期 | | Consultation 相談 | Land of the right form 土地の権利形態 | | Ownership 所有権 | Structure and method of construction 構造・工法 | | Wooden 2-story 木造2階建 | Use district 用途地域 | | One low-rise 1種低層 | Other limitations その他制限事項 | | 2013 June completion! Building confirmation number: No. KS113-0110-00660 (2013 March Four days) 平成25年6月完成! 建築確認番号:第KS113-0110-00660号(平成25年 3月 4日) | Overview and notices その他概要・特記事項 | | Contact: Shimokawa Satoshi 担当者:下川 智 | Company profile 会社概要 | | <Mediation> Minister of Land, Infrastructure and Transport (9) No. 002961 No. Sekiwa Real Estate Chubu Co., Ltd., Nagoya Minami distribution office Yubinbango467-0806 Nagoya, Aichi Prefecture Mizuho-ku, Mizuhotori 8-17-2 <仲介>国土交通大臣(9)第002961号積和不動産中部(株)名古屋南流通営業所〒467-0806 愛知県名古屋市瑞穂区瑞穂通8-17-2 |
 Local appearance photo
現地外観写真
 Floor plan
間取り図
Location
|