New Homes » Tokai » Aichi Prefecture » Nagakute
 
| | Aichi Prefecture, Nagakute 愛知県長久手市 |
| Linimo "dogwood through" walk 7 minutes リニモ「はなみずき通」歩7分 |
| Building complete showcase! Every Sat. ・ Day ・ Congratulation is in local sales meetings. 建物完成披露!毎週土・日・祝は現地販売会開催中です。 |
| Construction of ions and Ikea is scheduled, Nagakute the dream of the future of life is swell is a popular area for families you think the new house. Among them Kuboyama district, Living facilities is close to matching, We have received high praise from child-rearing family. Now, "Premium on this earth ・ Residence "New release! To high-quality nestled on the person class, Served with premium specifications and energy-saving equipment, We offer all three House! イオンやイケアの建設が予定され、将来の暮らしの夢が膨らむ長久手市は新居をお考えのご家族に人気のエリアです。中でも久保山地区は、生活施設が身近に揃い、子育てファミリーから高い評価をいただいています。いま、この地に「プレミアム・レジデンス」が新発売!ひとクラス上の上質な設えに、プレミアムな仕様と省エネ設備を添えて、全3邸をご提案いたします! |
Local guide map 現地案内図 | | Local guide map 現地案内図 | Features pickup 特徴ピックアップ | | Measures to conserve energy / Corresponding to the flat-35S / Parking two Allowed / Immediate Available / Energy-saving water heaters / Facing south / System kitchen / Bathroom Dryer / LDK15 tatami mats or more / Corner lot / Japanese-style room / Washbasin with shower / Face-to-face kitchen / Toilet 2 places / 2-story / South balcony / Double-glazing / Otobasu / Warm water washing toilet seat / Underfloor Storage / The window in the bathroom / TV monitor interphone / Dish washing dryer / Walk-in closet / All room 6 tatami mats or more / Water filter / City gas 省エネルギー対策 /フラット35Sに対応 /駐車2台可 /即入居可 /省エネ給湯器 /南向き /システムキッチン /浴室乾燥機 /LDK15畳以上 /角地 /和室 /シャワー付洗面台 /対面式キッチン /トイレ2ヶ所 /2階建 /南面バルコニー /複層ガラス /オートバス /温水洗浄便座 /床下収納 /浴室に窓 /TVモニタ付インターホン /食器洗乾燥機 /ウォークインクロゼット /全居室6畳以上 /浄水器 /都市ガス | Property name 物件名 | | premium ・ Residence Nagakute Kuboyama プレミアム・レジデンス長久手久保山 | Price 価格 | | 41,800,000 yen ・ 43,800,000 yen 4180万円・4380万円 | Floor plan 間取り | | 4LDK 4LDK | Units sold 販売戸数 | | 2 units 2戸 | Total units 総戸数 | | 3 units 3戸 | Land area 土地面積 | | 132.24 sq m ・ 133.37 sq m 132.24m2・133.37m2 | Building area 建物面積 | | 106.83 sq m ・ 107.95 sq m 106.83m2・107.95m2 | Completion date 完成時期(築年月) | | 2013 early November 2013年11月上旬 | Address 住所 | | Aichi Prefecture, Nagakute Kuboyama 愛知県長久手市久保山 | Traffic 交通 | | Linimo "dogwood through" walk 7 minutes Subway Higashiyama Line "Fujigaoka" walk 22 minutes リニモ「はなみずき通」歩7分 地下鉄東山線「藤が丘」歩22分
| Related links 関連リンク | | [Related Sites of this company] 【この会社の関連サイト】 | Person in charge 担当者より | | Person in charge of real-estate and building FP real estate consulting skills registrant Shou Ide Age: 30 Daigyokai experience: There is confidence in the 12 years footwork! Document request ・ Please feel free to contact us if you have any questions. 0120-230-745 担当者宅建FP不動産コンサルティング技能登録者井手将年齢:30代業界経験:12年フットワークに自信あります!資料請求・ご質問などございましたらお気軽にご連絡ください。0120-230-745 | Contact お問い合せ先 | | TEL: 0800-603-1827 [Toll free] mobile phone ・ Also available from PHS Caller ID is not notified Please contact the "saw SUUMO (Sumo)" If it does not lead, If the real estate company TEL:0800-603-1827【通話料無料】携帯電話・PHSからもご利用いただけます 発信者番号は通知されません 「SUUMO(スーモ)を見た」と問い合わせください つながらない方、不動産会社の方は
| Building coverage, floor area ratio 建ぺい率・容積率 | | Kenpei rate: 60%, Volume ratio: 100% 建ペい率:60%、容積率:100% | Time residents 入居時期 | | Immediate available 即入居可 | Land of the right form 土地の権利形態 | | Ownership 所有権 | Structure and method of construction 構造・工法 | | Wooden 2-story (2 × 4 construction method) 木造2階建(2×4工法) | Use district 用途地域 | | One low-rise 1種低層 | Land category 地目 | | Residential land 宅地 | Overview and notices その他概要・特記事項 | | Contact: Shou Ide, Building confirmation number: No. KS113-0110-03067 other 担当者:井手将、建築確認番号:第KS113-0110-03067号他 | Company profile 会社概要 | | <Mediation> Minister of Land, Infrastructure and Transport (4) No. 005463 (Corporation) Aichi Prefecture Building Lots and Buildings Transaction Business Association Tokai Real Estate Fair Trade Council member (Ltd.) blue box Yubinbango492-8145 Aichi Prefecture Inazawa Shomyoji 2-16-4 <仲介>国土交通大臣(4)第005463号(公社)愛知県宅地建物取引業協会会員 東海不動産公正取引協議会加盟(株)ブルーボックス〒492-8145 愛知県稲沢市正明寺2-16-4 |
Local appearance photo現地外観写真  Building A Local (11 May 2013) Shooting
A棟 現地(2013年11月)撮影
 Building C Local (11 May 2013) Shooting
C棟 現地(2013年11月)撮影
Livingリビング  Building C Indoor (11 May 2013) Shooting
C棟 室内(2013年11月)撮影
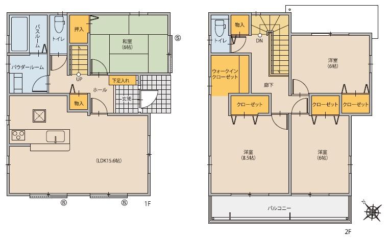
Floor plan間取り図  (A House), Price 43,800,000 yen, 4LDK, Land area 133.37 sq m , Building area 106.83 sq m
(A邸)、価格4380万円、4LDK、土地面積133.37m2、建物面積106.83m2
Bathroom浴室  Building C Indoor (11 May 2013) Shooting
C棟 室内(2013年11月)撮影
Kitchenキッチン  Building C Indoor (11 May 2013) Shooting
C棟 室内(2013年11月)撮影
Non-living roomリビング以外の居室  Building C Indoor (11 May 2013) Shooting
C棟 室内(2013年11月)撮影
Wash basin, toilet洗面台・洗面所  Building C Indoor (11 May 2013) Shooting
C棟 室内(2013年11月)撮影
 The entire compartment Figure
全体区画図
 Local guide map
現地案内図
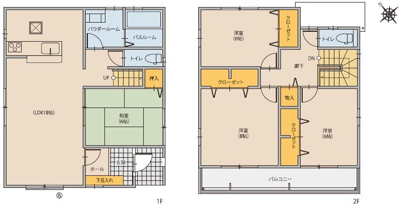
Floor plan間取り図  (C House), Price 41,800,000 yen, 4LDK, Land area 132.24 sq m , Building area 107.95 sq m
(C邸)、価格4180万円、4LDK、土地面積132.24m2、建物面積107.95m2
 Local guide map
現地案内図
Location
|