New Homes » Tokai » Aichi Prefecture » Nagakute
 
| | Aichi Prefecture, Nagakute 愛知県長久手市 |
| Linimo "Eburikechi park" walk 10 minutes リニモ「杁ヶ池公園」歩10分 |
| Supermarket ・ hospital ・ All within walking distance of school, etc. living facilities! ! ! Ease of obtaining a seismic grade 3 (highest grade) ・ Safe housing スーパー・病院・学校等生活施設が全て徒歩圏内!!!耐震等級3(最高等級)を取得の安心・安全な住宅 |
| Construction housing performance with evaluation, Design house performance with evaluation, Long-term high-quality housing, Corresponding to the flat-35S, Seismic fit, Year Available, Parking two Allowed, Energy-saving water heaters, Super close, It is close to the city, Facing south, System kitchen, Bathroom Dryer, Flat to the station, Siemens south road, LDK15 tatami mats or more, Or more before road 6mese-style room, Shaping land, Toilet 2 places, 2-story, South balcony, Double-glazing, Warm water washing toilet seat, Nantei, Underfloor Storage, The window in the bathroom, Mu front building, Ventilation good, Walk-in closet, Living stairs, City gas 建設住宅性能評価付、設計住宅性能評価付、長期優良住宅、フラット35Sに対応、耐震適合、年内入居可、駐車2台可、省エネ給湯器、スーパーが近い、市街地が近い、南向き、システムキッチン、浴室乾燥機、駅まで平坦、南側道路面す、LDK15畳以上、前道6m以上、和室、整形地、トイレ2ヶ所、2階建、南面バルコニー、複層ガラス、温水洗浄便座、南庭、床下収納、浴室に窓、前面棟無、通風良好、ウォークインクロゼット、リビング階段、都市ガス |
Features pickup 特徴ピックアップ | | Construction housing performance with evaluation / Design house performance with evaluation / Long-term high-quality housing / Corresponding to the flat-35S / Seismic fit / Year Available / Parking two Allowed / Energy-saving water heaters / Super close / It is close to the city / Facing south / System kitchen / Bathroom Dryer / Flat to the station / Siemens south road / LDK15 tatami mats or more / Or more before road 6m / Japanese-style room / Shaping land / Toilet 2 places / 2-story / South balcony / Double-glazing / Warm water washing toilet seat / Nantei / Underfloor Storage / The window in the bathroom / Mu front building / Ventilation good / Walk-in closet / Living stairs / City gas 建設住宅性能評価付 /設計住宅性能評価付 /長期優良住宅 /フラット35Sに対応 /耐震適合 /年内入居可 /駐車2台可 /省エネ給湯器 /スーパーが近い /市街地が近い /南向き /システムキッチン /浴室乾燥機 /駅まで平坦 /南側道路面す /LDK15畳以上 /前道6m以上 /和室 /整形地 /トイレ2ヶ所 /2階建 /南面バルコニー /複層ガラス /温水洗浄便座 /南庭 /床下収納 /浴室に窓 /前面棟無 /通風良好 /ウォークインクロゼット /リビング階段 /都市ガス | Price 価格 | | 26,800,000 yen ・ 29,800,000 yen 2680万円・2980万円 | Floor plan 間取り | | 4LDK 4LDK | Units sold 販売戸数 | | 3 units 3戸 | Total units 総戸数 | | 6 units 6戸 | Land area 土地面積 | | 117.61 sq m ~ 122.16 sq m 117.61m2 ~ 122.16m2 | Building area 建物面積 | | 97.29 sq m ~ 98.54 sq m 97.29m2 ~ 98.54m2 | Driveway burden-road 私道負担・道路 | | South 6.0m, Contact surface on the public roads of the east 8.0m 南側6.0m、東側8.0mの公道に接面 | Completion date 完成時期(築年月) | | September 2013 2013年9月 | Address 住所 | | Aichi Prefecture, Nagakute Shobuike 愛知県長久手市菖蒲池 | Traffic 交通 | | Linimo "Eburikechi park" walk 10 minutes リニモ「杁ヶ池公園」歩10分
| Related links 関連リンク | | [Related Sites of this company] 【この会社の関連サイト】 | Person in charge 担当者より | | Person in charge of real-estate and building Kawaguchi Yoji Age: consultation on the purchase of the 40's real estate, Anything please contact us! ! ! We will correspond with inborn Guts! ! ! 担当者宅建川口 洋二年齢:40代不動産のご購入に関するご相談、何でもお問合せ下さい!!!持ち前のガッツで対応させていただきます!!! | Contact お問い合せ先 | | TEL: 0800-805-5711 [Toll free] mobile phone ・ Also available from PHS Caller ID is not notified Please contact the "saw SUUMO (Sumo)" If it does not lead, If the real estate company TEL:0800-805-5711【通話料無料】携帯電話・PHSからもご利用いただけます 発信者番号は通知されません 「SUUMO(スーモ)を見た」と問い合わせください つながらない方、不動産会社の方は
| Most price range 最多価格帯 | | 29 million yen (2 units) 2900万円台(2戸) | Building coverage, floor area ratio 建ぺい率・容積率 | | Kenpei rate: 60%, Volume ratio: 200% 建ペい率:60%、容積率:200% | Time residents 入居時期 | | Consultation 相談 | Land of the right form 土地の権利形態 | | Ownership 所有権 | Structure and method of construction 構造・工法 | | Wooden 2-story 木造2階建 | Use district 用途地域 | | Semi-industrial 準工業 | Land category 地目 | | Residential land 宅地 | Overview and notices その他概要・特記事項 | | Contact: Kawaguchi Yoji, Building confirmation number: No. H25SHC105791 other 担当者:川口 洋二、建築確認番号:第H25SHC105791号他 | Company profile 会社概要 | | <Mediation> Governor of Aichi Prefecture (1) the first 022,469 No. Repro Real Estate Sales Co., Ltd. Yubinbango468-0015 Nagoya, Aichi Prefecture Tempaku-ku original 5-1401 Building 303, Room was Hara <仲介>愛知県知事(1)第022469号リプロ不動産販売(株)〒468-0015 愛知県名古屋市天白区原5-1401 はらたビル303号室 |
Local appearance photo現地外観写真  1 Building
1号棟
Livingリビング  Indoor (September 2013) Shooting
室内(2013年9月)撮影
Entrance玄関  3 Building entrance
3号棟玄関
Floor plan間取り図  (1 Building), Price 26,800,000 yen, 4LDK, Land area 121.3 sq m , Building area 98.54 sq m
(1号棟)、価格2680万円、4LDK、土地面積121.3m2、建物面積98.54m2
Local appearance photo現地外観写真  Building 3
3号棟
 Bathroom
浴室
 Kitchen
キッチン
Non-living roomリビング以外の居室  Indoor (September 2013) Shooting
室内(2013年9月)撮影
Wash basin, toilet洗面台・洗面所  Indoor (September 2013) Shooting
室内(2013年9月)撮影
Receipt収納  Indoor (September 2013) Shooting
室内(2013年9月)撮影
Toiletトイレ  Indoor (September 2013) Shooting
室内(2013年9月)撮影
 Local photos, including front road
前面道路含む現地写真
Garden庭  Building 3
3号棟
Parking lot駐車場  3 Building parking
3号棟駐車場
Balconyバルコニー  Building 3
3号棟
Shopping centreショッピングセンター  1031m to UNIQLO Nagakute shop
ユニクロ長久手店まで1031m
 The entire compartment Figure
全体区画図
Otherその他  3 Building entrance porch
3号棟玄関ポーチ
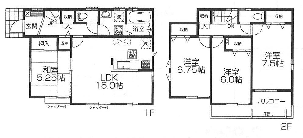
Floor plan間取り図  (3 Building), Price 29,800,000 yen, 4LDK, Land area 122.16 sq m , Building area 98.53 sq m
(3号棟)、価格2980万円、4LDK、土地面積122.16m2、建物面積98.53m2
Local appearance photo現地外観写真  6 Building
6号棟
Parking lot駐車場  6 Building parking
6号棟駐車場
Location
|