New Homes » Tokai » Aichi Prefecture » Nagoya Atsuta-ku
 
| | Nagoya-shi, Aichi Atsuta-ku, 愛知県名古屋市熱田区 |
| Nagoya municipal bus "Ikeuchi town" walk 3 minutes 名古屋市営バス「池内町」歩3分 |
| Corresponding to the flat-35S, Solar power system, Year Available, Parking two Allowed, System kitchen, Bathroom Dryer, LDK15 tatami mats or moreese-style room, Face-to-face kitchen, Toilet 2 places, 2-story, Two faces or more server フラット35Sに対応、太陽光発電システム、年内入居可、駐車2台可、システムキッチン、浴室乾燥機、LDK15畳以上、和室、対面式キッチン、トイレ2ヶ所、2階建、2面以上バ |
| Corresponding to the flat-35S, Solar power system, Year Available, Parking two Allowed, System kitchen, Bathroom Dryer, LDK15 tatami mats or moreese-style room, Face-to-face kitchen, Toilet 2 places, 2-story, 2 or more sides balcony, Double-glazing, Underfloor Storage, The window in the bathroom, TV monitor interphone, City gas フラット35Sに対応、太陽光発電システム、年内入居可、駐車2台可、システムキッチン、浴室乾燥機、LDK15畳以上、和室、対面式キッチン、トイレ2ヶ所、2階建、2面以上バルコニー、複層ガラス、床下収納、浴室に窓、TVモニタ付インターホン、都市ガス |
Features pickup 特徴ピックアップ | | Corresponding to the flat-35S / Solar power system / Year Available / Parking two Allowed / System kitchen / Bathroom Dryer / LDK15 tatami mats or more / Japanese-style room / Face-to-face kitchen / Toilet 2 places / 2-story / 2 or more sides balcony / Double-glazing / Underfloor Storage / The window in the bathroom / TV monitor interphone / City gas フラット35Sに対応 /太陽光発電システム /年内入居可 /駐車2台可 /システムキッチン /浴室乾燥機 /LDK15畳以上 /和室 /対面式キッチン /トイレ2ヶ所 /2階建 /2面以上バルコニー /複層ガラス /床下収納 /浴室に窓 /TVモニタ付インターホン /都市ガス | Event information イベント情報 | | Local guide Board (Please be sure to ask in advance) schedule / During the public time / 9:00 ~ 20:00 in the open from 9 am to 8 pm! Weekday ・ It is being accepted the local preview regardless of Saturday and Sunday. Please feel free to contact us. "House coordinator Division" toll free: 0800-603-7349 現地案内会(事前に必ずお問い合わせください)日程/公開中時間/9:00 ~ 20:00朝9時から夜8時まで営業中!平日・土日問わず現地内覧を受付中です。お気軽にご連絡くださいませ。『ハウスコーディネーター課』通話料無料:0800‐603-7349 | Price 価格 | | 32,800,000 yen 3280万円 | Floor plan 間取り | | 4LDK 4LDK | Units sold 販売戸数 | | 1 units 1戸 | Total units 総戸数 | | 3 units 3戸 | Land area 土地面積 | | 108.77 sq m 108.77m2 | Building area 建物面積 | | 98.58 sq m 98.58m2 | Completion date 完成時期(築年月) | | October 2013 2013年10月 | Address 住所 | | Nagoya, Aichi Prefecture Atsuta-ku, Ikeuchi cho 愛知県名古屋市熱田区池内町 | Traffic 交通 | | Nagoya municipal bus "Ikeuchi town" walk 3 minutes JR Tokaido Line "Atsuta" walk 20 minutes Subway Meijo Line "Nishi Takakura" walk 20 minutes 名古屋市営バス「池内町」歩3分JR東海道本線「熱田」歩20分 地下鉄名城線「西高蔵」歩20分
| Related links 関連リンク | | [Related Sites of this company] 【この会社の関連サイト】 | Person in charge 担当者より | | Person in charge of real-estate and building Kitahara SusumuSatoru Age: 30 Daigyokai Experience: 7 years will be a "your house hunting" it as "fun and firmly". First, Please feel free to contact us (real estate SHOP Nakajitsu House coordinator Division, Toll-free 0120-82-9991) 担当者宅建北原 進悟年齢:30代業界経験:7年『お家探し』を『楽しくそしてしっかり』とさせていただきます。まずは、お気軽にご相談ください(不動産SHOPナカジツハウスコーディネーター課、フリーダイヤル0120-82-9991) | Contact お問い合せ先 | | TEL: 0800-603-7349 [Toll free] mobile phone ・ Also available from PHS Caller ID is not notified Please contact the "saw SUUMO (Sumo)" If it does not lead, If the real estate company TEL:0800-603-7349【通話料無料】携帯電話・PHSからもご利用いただけます 発信者番号は通知されません 「SUUMO(スーモ)を見た」と問い合わせください つながらない方、不動産会社の方は
| Building coverage, floor area ratio 建ぺい率・容積率 | | Kenpei rate: 60%, Volume ratio: 200% 建ペい率:60%、容積率:200% | Time residents 入居時期 | | Consultation 相談 | Land of the right form 土地の権利形態 | | Ownership 所有権 | Structure and method of construction 構造・工法 | | Wooden 2-story 木造2階建 | Use district 用途地域 | | Industry 工業 | Overview and notices その他概要・特記事項 | | Contact: Kitahara SusumuSatoru, Building confirmation number: No. H25 confirmation architecture Love Kense No. 21762 ~ The H25 confirmation architecture Love Kense No. 21763 担当者:北原 進悟、建築確認番号:第H25確認建築愛建セ21762号 ~ 第H25確認建築愛建セ21763号 | Company profile 会社概要 | | <Mediation> Governor of Aichi Prefecture (2) No. 020601 (Corporation) Aichi Prefecture Building Lots and Buildings Transaction Business Association Tokai Real Estate Fair Trade Council member (Ltd.) Property SHOP Nakajitsu House Division Yubinbango444-0831 Okazaki, Aichi Prefecture Hanekita cho 5-6-5 <仲介>愛知県知事(2)第020601号(公社)愛知県宅地建物取引業協会会員 東海不動産公正取引協議会加盟(株)不動産SHOPナカジツ ハウス事業部〒444-0831 愛知県岡崎市羽根北町5-6-5 |
Local appearance photo現地外観写真  Local (12 May 2013) Shooting
現地(2013年12月)撮影
 Living
リビング
 Kitchen
キッチン
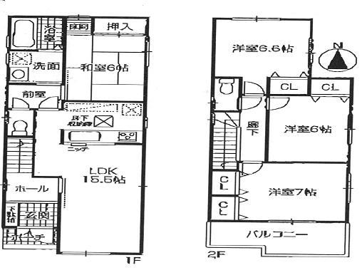
Floor plan間取り図  (3 Building), Price 32,800,000 yen, 4LDK, Land area 108.77 sq m , Building area 98.58 sq m
(3号棟)、価格3280万円、4LDK、土地面積108.77m2、建物面積98.58m2
 Bathroom
浴室
Location
|