New Homes » Tokai » Aichi Prefecture » Higashi-ku, Nagoya
 
| | Nagoya, Aichi Prefecture, Higashi-ku, 愛知県名古屋市東区 |
| JR Chuo Line "Ozone" walk 11 minutes JR中央本線「大曽根」歩11分 |
| Siemens south road, Corner lot, LDK18 tatami mats or more, All living room flooring, Floor heating, Parking two Allowed, Pre-ground survey, 2 along the line more accessible, Facing south, System kitchen, Bathroom Dryer, Yang per good, All room storage 南側道路面す、角地、LDK18畳以上、全居室フローリング、床暖房、駐車2台可、地盤調査済、2沿線以上利用可、南向き、システムキッチン、浴室乾燥機、陽当り良好、全居室収納 |
| ■ We completed! weekend, Local briefings! ! Preview from 10:00 to 15 o'clock ・ Cost Description ・ Purchase of flow, etc., Since I will be announced Please feel free to visitors. ■ Located on the southeast corner lot, New homes filled to the lighting and ventilation. ■ The second floor is the floor plan considering the housework flow line in the LDK and the water around the about 18 quires. ■ Supermarkets and convenience stores, Park, such as living facilities are within walking distance, Fulfilling life environment. ■ It is also recommended for those who are focused on future asset value. ■ Higashi-ku ・ Many published in the new homes of the Chikusa Ward! ! Please check all means our homepage. http: / / www.s-style.ne.jp ■完成致しました!週末、現地説明会開催!!10時から15時まで内覧・費用説明・購入の流れ等、ご案内させていただきますのでお気軽にご来場ください。■東南角地に建つ、採光と通風に満たされた新築住宅。■2階は約18帖のLDKと水廻りで家事動線を考えた間取りです。■スーパーやコンビニ、公園など生活施設が徒歩圏内にあり、充実した生活環境。■将来的な資産価値を重視している方にもオススメです。■東区・千種区の新築住宅を多数掲載中!!弊社ホームページをぜひご確認ください。 http://www.s-style.ne.jp |
Features pickup 特徴ピックアップ | | Pre-ground survey / Parking two Allowed / 2 along the line more accessible / LDK18 tatami mats or more / Facing south / System kitchen / Bathroom Dryer / Yang per good / All room storage / Siemens south road / Corner lot / Washbasin with shower / Toilet 2 places / Warm water washing toilet seat / The window in the bathroom / TV monitor interphone / Mu front building / Ventilation good / All living room flooring / Dish washing dryer / Three-story or more / Living stairs / City gas / All rooms are two-sided lighting / Floor heating 地盤調査済 /駐車2台可 /2沿線以上利用可 /LDK18畳以上 /南向き /システムキッチン /浴室乾燥機 /陽当り良好 /全居室収納 /南側道路面す /角地 /シャワー付洗面台 /トイレ2ヶ所 /温水洗浄便座 /浴室に窓 /TVモニタ付インターホン /前面棟無 /通風良好 /全居室フローリング /食器洗乾燥機 /3階建以上 /リビング階段 /都市ガス /全室2面採光 /床暖房 | Property name 物件名 | | Higashi-ku, can-cho 3-chome D Building 東区出来町3丁目 D号棟 | Price 価格 | | 40,800,000 yen 4080万円 | Floor plan 間取り | | 4LDK 4LDK | Units sold 販売戸数 | | 1 units 1戸 | Total units 総戸数 | | 3 units 3戸 | Land area 土地面積 | | 70.65 sq m (21.37 square meters) 70.65m2(21.37坪) | Building area 建物面積 | | 128.45 sq m (38.85 square meters) 128.45m2(38.85坪) | Driveway burden-road 私道負担・道路 | | Nothing, South 4m width, East 7.9m width 無、南4m幅、東7.9m幅 | Completion date 完成時期(築年月) | | November 2013 2013年11月 | Address 住所 | | Nagoya, Aichi Prefecture, Higashi-ku, can cho 3 愛知県名古屋市東区出来町3 | Traffic 交通 | | JR Chuo Line "Ozone" walk 11 minutes Subway Meijo Line "Ozone" walk 13 minutes JR中央本線「大曽根」歩11分 地下鉄名城線「大曽根」歩13分
| Contact お問い合せ先 | | TEL: 052-751-5900 Please inquire as "saw SUUMO (Sumo)" TEL:052-751-5900「SUUMO(スーモ)を見た」と問い合わせください | Building coverage, floor area ratio 建ぺい率・容積率 | | 60% ・ 200% 60%・200% | Time residents 入居時期 | | Consultation 相談 | Land of the right form 土地の権利形態 | | Ownership 所有権 | Structure and method of construction 構造・工法 | | Wooden three-story 木造3階建 | Use district 用途地域 | | One dwelling 1種住居 | Overview and notices その他概要・特記事項 | | Facilities: Public Water Supply, This sewage, City gas, Building confirmation number: the H building certification Love Kenjuse No. 21365, Parking: car space 設備:公営水道、本下水、都市ガス、建築確認番号:第H確認建築愛建住セ21365号、駐車場:カースペース | Company profile 会社概要 | | <Mediation> Governor of Aichi Prefecture (2) the first 020,416 No. Trek group (stock) S-Styleyubinbango464-0821, Aichi Prefecture, Chikusa-ku, Nagoya Suemoritori 1-1 Kobo shop head office building 3B <仲介>愛知県知事(2)第020416号トレックグループ(株)S-Style〒464-0821 愛知県名古屋市千種区末盛通1-1弘法屋本店ビル3B |
Local appearance photo現地外観写真  Local (11 May 2013) Shooting
現地(2013年11月)撮影
Livingリビング  18.3 Pledge of floor heating equipped LDK (11 May 2013) Shooting
床暖房完備の18.3帖LDK(2013年11月)撮影
Local appearance photo現地外観写真  Local (11 May 2013) Shooting
現地(2013年11月)撮影
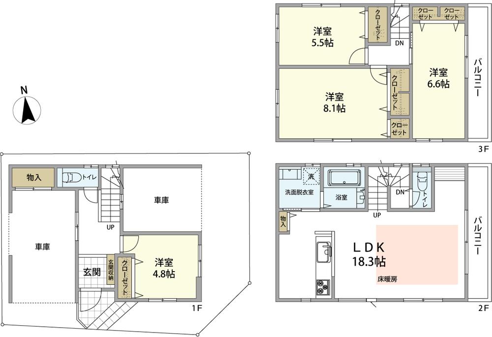
Floor plan間取り図  40,800,000 yen, 4LDK, Land area 70.65 sq m , Building area 128.45 sq m
4080万円、4LDK、土地面積70.65m2、建物面積128.45m2
Compartment figure区画図  40,800,000 yen, 4LDK, Land area 70.65 sq m , Building area 128.45 sq m
4080万円、4LDK、土地面積70.65m2、建物面積128.45m2
Kitchenキッチン  Dishwasher system Kitchen (November 2013) Shooting
食洗機付システムキッチン(2013年11月)撮影
Receipt収納  Kitchen pantry (11 May 2013) Shooting
キッチンパントリー(2013年11月)撮影
Bathroom浴室  Bathroom with bathroom dryer (November 2013) Shooting
浴室乾燥機付バスルーム(2013年11月)撮影
Wash basin, toilet洗面台・洗面所  Wash basin (November 2013) Shooting
洗面台(2013年11月)撮影
Toiletトイレ  (November 2013) Shooting
(2013年11月)撮影
Livingリビング  18.3 Pledge of LDK (11 May 2013) Shooting
18.3帖のLDK(2013年11月)撮影
Receipt収納  Compartment provided in the parking space (11 May 2013) Shooting
駐車スペースに設けた物入れ(2013年11月)撮影
Non-living roomリビング以外の居室  The third floor 8.1 Pledge of Western-style (11 May 2013) Shooting
3階8.1帖の洋室(2013年11月)撮影
Otherその他  How to use freedom of built-in table (November 2013) Shooting
使い方自由自在の作り付けテーブル(2013年11月)撮影
Local appearance photo現地外観写真  Local (11 May 2013) Shooting
現地(2013年11月)撮影
Local photos, including front road前面道路含む現地写真  Local (11 May 2013) Shooting
現地(2013年11月)撮影
Non-living roomリビング以外の居室  First floor 4.8 Pledge of Western-style (11 May 2013) Shooting
1階4.8帖の洋室(2013年11月)撮影
Livingリビング  Ah
あ
Local photos, including front road前面道路含む現地写真  There
い
Location
|