New Homes » Tokai » Aichi Prefecture » Nagoya, Minami-ku
 
| | Nagoya, Aichi Prefecture, Minami-ku, 愛知県名古屋市南区 |
| Meitetsu Tokoname Line "Toyodahon town" walk 6 minutes 名鉄常滑線「豊田本町」歩6分 |
| South-facing sun per good, 20 Pledge of LDK room, Face-to-face system open kitchen, W = 1600 with a large mirror front door storage, W = 900 large shampoo dresser, Entrance card key 南向き陽当り良好、LDKゆとりの20帖、 対面システムオープンキッチン、W=1600大型鏡付玄関収納、W=900大型シャンプードレッサー、玄関カードキー |
| ■ A solid foundation hard packing construction, Increase the underfloor air permeability, And reduce the vibration of an earthquake or the like. ■ Operation shelf kitchen counter of the LDK is popular. ■ Supermarket, station, In the hospital a walk-speaking living environment favorable. ■ Meitetsu line "Toyodahon town" Subway "Tenma-cho" 2 Station Available ■ Housing is using the latest fully equipped. ■ベタ基礎硬質パッキン施工で、床下通気性を高め、地震等の振動を軽減させます。■LDKの稼動棚付キッチンカウンターは好評です。■スーパー、駅、病院な徒歩圏で生活環境良好。■名鉄線「豊田本町」地下鉄「伝馬町」2駅利用可■住宅は最新の充実した設備を使用しています。 |
Features pickup 特徴ピックアップ | | Corresponding to the flat-35S / Parking three or more possible / LDK20 tatami mats or more / Land 50 square meters or more / Energy-saving water heaters / Super close / Facing south / System kitchen / Bathroom Dryer / Yang per good / All room storage / Siemens south road / Or more before road 6m / Japanese-style room / garden / Washbasin with shower / Face-to-face kitchen / Wide balcony / Barrier-free / Toilet 2 places / Natural materials / Bathroom 1 tsubo or more / 2-story / 2 or more sides balcony / Warm water washing toilet seat / Underfloor Storage / The window in the bathroom / Dish washing dryer / Or more ceiling height 2.5m / Water filter / City gas / All rooms are two-sided lighting / roof balcony フラット35Sに対応 /駐車3台以上可 /LDK20畳以上 /土地50坪以上 /省エネ給湯器 /スーパーが近い /南向き /システムキッチン /浴室乾燥機 /陽当り良好 /全居室収納 /南側道路面す /前道6m以上 /和室 /庭 /シャワー付洗面台 /対面式キッチン /ワイドバルコニー /バリアフリー /トイレ2ヶ所 /自然素材 /浴室1坪以上 /2階建 /2面以上バルコニー /温水洗浄便座 /床下収納 /浴室に窓 /食器洗乾燥機 /天井高2.5m以上 /浄水器 /都市ガス /全室2面採光 /ルーフバルコニー | Price 価格 | | 44,800,000 yen 4480万円 | Floor plan 間取り | | 4LDK 4LDK | Units sold 販売戸数 | | 1 units 1戸 | Total units 総戸数 | | 1 units 1戸 | Land area 土地面積 | | 199.6 sq m (60.37 tsubo) (Registration) 199.6m2(60.37坪)(登記) | Building area 建物面積 | | 118.26 sq m (35.77 tsubo) (measured) 118.26m2(35.77坪)(実測) | Completion date 完成時期(築年月) | | January 2014 late schedule 2014年1月下旬予定 | Address 住所 | | Nagoya, Aichi Prefecture, Minami-ku, Uchidabashi 1-1313 No. 愛知県名古屋市南区内田橋1-1313番 | Traffic 交通 | | Meitetsu Tokoname Line "Toyodahon town" walk 6 minutes Subway Meijo Line "Tenma-cho" walk 11 minutes 名鉄常滑線「豊田本町」歩6分 地下鉄名城線「伝馬町」歩11分
| Related links 関連リンク | | [Related Sites of this company] 【この会社の関連サイト】 | Person in charge 担当者より | | [Regarding this property.] Site area 60 square meters. LDK20 tatami, Western-style room 6 Pledge, 8 pledge, 9 Pledge, 4LDK of Japanese-style 6., There is also a big balcony of 8.5 tatami and 6.3 tatami mats from north to south, Parking was also provided with a space of four minutes. 【この物件について】敷地面積60坪。LDK20畳、洋間6帖、8帖、9帖、和室6の4LDK.、南北に8.5畳と6.3畳のビッグなバルコニーもあり、駐車場も4台分のスペースを設けました。 | Contact お問い合せ先 | | TEL: 0800-808-5192 [Toll free] mobile phone ・ Also available from PHS Caller ID is not notified Please contact the "saw SUUMO (Sumo)" If it does not lead, If the real estate company TEL:0800-808-5192【通話料無料】携帯電話・PHSからもご利用いただけます 発信者番号は通知されません 「SUUMO(スーモ)を見た」と問い合わせください つながらない方、不動産会社の方は
| Building coverage, floor area ratio 建ぺい率・容積率 | | Kenpei rate: 60%, Volume ratio: 200% 建ペい率:60%、容積率:200% | Time residents 入居時期 | | Consultation 相談 | Land of the right form 土地の権利形態 | | Ownership 所有権 | Structure and method of construction 構造・工法 | | Wooden 2-story (2 × 4 construction method) 木造2階建(2×4工法) | Use district 用途地域 | | One dwelling 1種住居 | Land category 地目 | | Residential land 宅地 | Other limitations その他制限事項 | | Height district, Quasi-fire zones 高度地区、準防火地域 | Overview and notices その他概要・特記事項 | | Building confirmation number: No. H25 confirmation architecture CI Tokai No. A01509 建築確認番号:第H25確認建築CI東海A01509号 | Company profile 会社概要 | | <Seller> Governor of Aichi Prefecture (7) No. 014547 (Ltd.) cable Wye Home Yubinbango460-0002 Nagoya, Aichi Prefecture, Naka-ku Marunouchi 3-16-11 Marunouchi Park Mansion 706, Room <売主>愛知県知事(7)第014547号(株)ケーワイホーム〒460-0002 愛知県名古屋市中区丸の内3-16-11 丸の内パークマンション706号室 |
Local appearance photo現地外観写真  ■ Site spacious 60 square meters
■敷地広々60坪
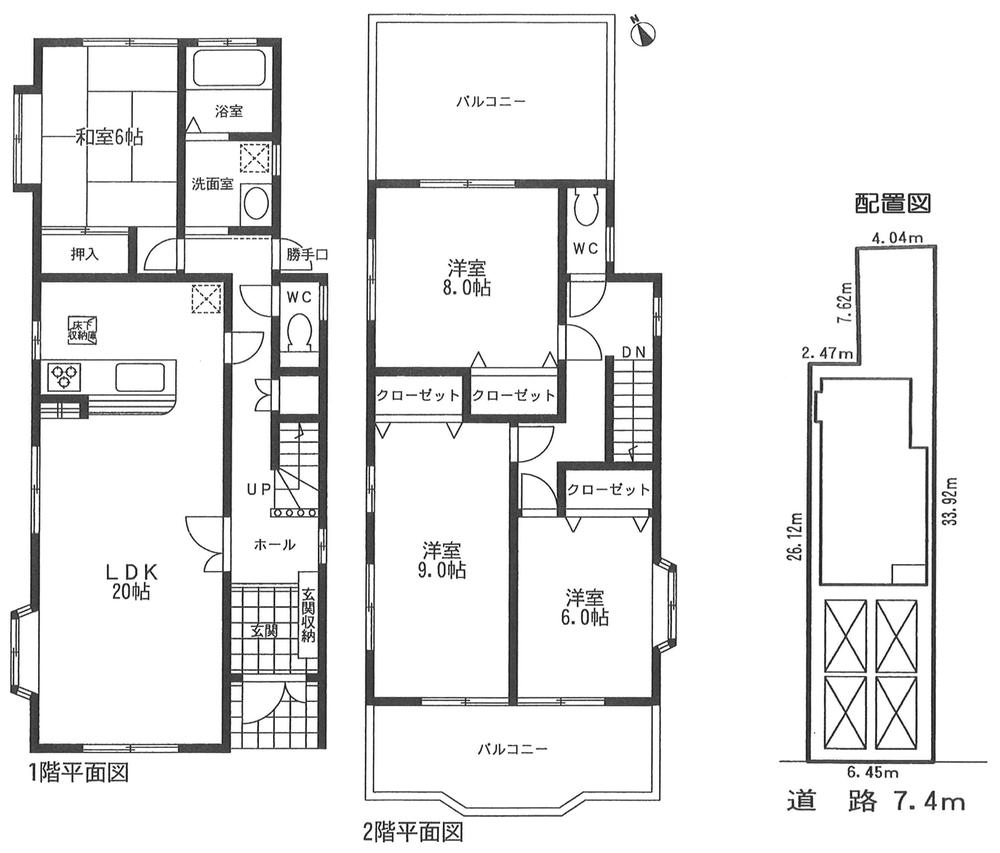
Floor plan間取り図  Price 44,800,000 yen, 4LDK, Land area 199.6 sq m , Building area 118.26 sq m
価格4480万円、4LDK、土地面積199.6m2、建物面積118.26m2
 Local guide map
現地案内図
Local appearance photo現地外観写真  ■ Parking 4 cars
■駐車4台分
 Local guide map
現地案内図
 Local appearance photo
現地外観写真
 Local appearance photo
現地外観写真
 Local photos, including front road
前面道路含む現地写真
Otherその他  ■ Foundation reinforcement
■基礎配筋
 Construction ・ Construction method ・ specification
構造・工法・仕様
 Construction ・ Construction method ・ specification
構造・工法・仕様
 Construction ・ Construction method ・ specification
構造・工法・仕様
 Other Equipment
その他設備
 Other Equipment
その他設備
 Construction ・ Construction method ・ specification
構造・工法・仕様
Station駅  Meitetsu Tokoname Line 480m to "Toyodahon cho" station
名鉄常滑線「豊田本町」駅まで480m
Supermarketスーパー  250m to Barrow Uchidabashi shop
バロー内田橋店まで250m
Other Equipmentその他設備  Between the foundation and the wood and the entire installation. Increasing the floor of the notification of and reduce the vibration of the earthquake. Our other site the same specification
基礎と木材の間全面設置します。床下の通知性を高め地震の振動を軽減させます。当社他現場同仕様
 Other Equipment
その他設備
 To absorb the vibration of an earthquake or the like. Our other site the same specification
地震等の振動を吸収します。当社他現場同仕様
 Other Equipment
その他設備
Otherその他  Stairs and corridors
階段と廊下
 Entrance
玄関
 Living
リビング
Non-living roomリビング以外の居室  Second floor Western-style room
2階洋間
 Second floor Western-style room
2階洋間
 Balcony
バルコニー
Other introspectionその他内観  Stairs
階段
Location
|