New Homes » Tokai » Aichi Prefecture » Nagoya, Minami-ku
 
| | Nagoya, Aichi Prefecture, Minami-ku, 愛知県名古屋市南区 |
| Nagoyahonsen Meitetsu "Moto Hoshizaki" walk 11 minutes 名鉄名古屋本線「本星崎」歩11分 |
| Nagoyahonsen Meitetsu "Moto Hoshizaki" station walk 11 minutes! Hoshizaki about up to elementary school 200m and Chikashi! Long-term high-quality housing! Housing with performance guarantee! 名鉄名古屋本線「本星崎」駅徒歩11分!星崎小学校まで約200mと近し!長期優良住宅!住宅性能保証付き! |
| Construction housing performance with evaluation, Design house performance with evaluation, Long-term high-quality housing, Corresponding to the flat-35S, Parking two Allowed, LDK18 tatami mats or more, Facing south, System kitchen, Bathroom Dryer, All room storage, Siemens south road, A quiet residential area, Or more before road 6mese-style room, Washbasin with shower, Face-to-face kitchen, Toilet 2 places, Bathroom 1 tsubo or more, 2-story, South balcony, Double-glazing, Zenshitsuminami direction, Underfloor Storage, The window in the bathroom, TV monitor interphone, All living room flooring, Walk-in closet, All room 6 tatami mats or more, City gas, All rooms are two-sided lighting 建設住宅性能評価付、設計住宅性能評価付、長期優良住宅、フラット35Sに対応、駐車2台可、LDK18畳以上、南向き、システムキッチン、浴室乾燥機、全居室収納、南側道路面す、閑静な住宅地、前道6m以上、和室、シャワー付洗面台、対面式キッチン、トイレ2ヶ所、浴室1坪以上、2階建、南面バルコニー、複層ガラス、全室南向き、床下収納、浴室に窓、TVモニタ付インターホン、全居室フローリング、ウォークインクロゼット、全居室6畳以上、都市ガス、全室2面採光 |
Features pickup 特徴ピックアップ | | Construction housing performance with evaluation / Design house performance with evaluation / Long-term high-quality housing / Corresponding to the flat-35S / Parking two Allowed / LDK18 tatami mats or more / Facing south / System kitchen / Bathroom Dryer / All room storage / Siemens south road / A quiet residential area / Or more before road 6m / Japanese-style room / Washbasin with shower / Face-to-face kitchen / Toilet 2 places / Bathroom 1 tsubo or more / 2-story / South balcony / Double-glazing / Zenshitsuminami direction / Underfloor Storage / The window in the bathroom / TV monitor interphone / All living room flooring / Walk-in closet / All room 6 tatami mats or more / City gas / All rooms are two-sided lighting 建設住宅性能評価付 /設計住宅性能評価付 /長期優良住宅 /フラット35Sに対応 /駐車2台可 /LDK18畳以上 /南向き /システムキッチン /浴室乾燥機 /全居室収納 /南側道路面す /閑静な住宅地 /前道6m以上 /和室 /シャワー付洗面台 /対面式キッチン /トイレ2ヶ所 /浴室1坪以上 /2階建 /南面バルコニー /複層ガラス /全室南向き /床下収納 /浴室に窓 /TVモニタ付インターホン /全居室フローリング /ウォークインクロゼット /全居室6畳以上 /都市ガス /全室2面採光 | Price 価格 | | 27,900,000 yen ~ 32,900,000 yen 2790万円 ~ 3290万円 | Floor plan 間取り | | 4LDK 4LDK | Units sold 販売戸数 | | 4 units 4戸 | Total units 総戸数 | | 4 units 4戸 | Land area 土地面積 | | 122.59 sq m ~ 126.39 sq m (37.08 tsubo ~ 38.23 square meters) 122.59m2 ~ 126.39m2(37.08坪 ~ 38.23坪) | Building area 建物面積 | | 97.71 sq m ~ 102.26 sq m (29.55 tsubo ~ 30.93 square meters) 97.71m2 ~ 102.26m2(29.55坪 ~ 30.93坪) | Driveway burden-road 私道負担・道路 | | Road width: 4m ・ 6.5m 道路幅:4m・6.5m | Completion date 完成時期(築年月) | | March 2014 schedule 2014年3月予定 | Address 住所 | | Nagoya, Aichi Prefecture, Minami-ku, Minamino 3 愛知県名古屋市南区南野3 | Traffic 交通 | | Nagoyahonsen Meitetsu "Moto Hoshizaki" walk 11 minutes 名鉄名古屋本線「本星崎」歩11分
| Related links 関連リンク | | [Related Sites of this company] 【この会社の関連サイト】 | Person in charge 担当者より | | Person in charge of real-estate and building Masato Kubota age: the goodness of cultivated footwork in the 20s for many years came football, Will you alive for our customers! Please your best goal (the house to choose) to assist. 担当者宅建久保田勝人年齢:20代長年やってきたサッカーで培ったフットワークの良さを、お客様のために生かしていきます!お客様の最高のゴール(住まい選び)をアシストさせて下さい。 | Contact お問い合せ先 | | TEL: 0800-603-7139 [Toll free] mobile phone ・ Also available from PHS Caller ID is not notified Please contact the "saw SUUMO (Sumo)" If it does not lead, If the real estate company TEL:0800-603-7139【通話料無料】携帯電話・PHSからもご利用いただけます 発信者番号は通知されません 「SUUMO(スーモ)を見た」と問い合わせください つながらない方、不動産会社の方は
| Building coverage, floor area ratio 建ぺい率・容積率 | | Kenpei rate: 60%, Volume ratio: 200% 建ペい率:60%、容積率:200% | Time residents 入居時期 | | March 2014 schedule 2014年3月予定 | Land of the right form 土地の権利形態 | | Ownership 所有権 | Structure and method of construction 構造・工法 | | Wooden 2-story 木造2階建 | Use district 用途地域 | | Industry 工業 | Land category 地目 | | Residential land 宅地 | Overview and notices その他概要・特記事項 | | Contact: Masato Kubota, Building confirmation number: No. H25SHC116707 other 担当者:久保田勝人、建築確認番号:第H25SHC116707号他 | Company profile 会社概要 | | <Mediation> Governor of Aichi Prefecture (2) the first 020,566 No. Century 21 Kowa Real Estate Co., Ltd. Yubinbango468-0015 Tempaku-ku original Nagoya, Aichi Prefecture 1-2401 <仲介>愛知県知事(2)第020566号センチュリー21興和不動産(株)〒468-0015 愛知県名古屋市天白区原1-2401 |
Otherその他  Kids Corner ・ We have parking space! More than 1,500 of the properties You can see. On the day since the guide is also available, Please stop by when some of your time
キッズコーナー・駐車場完備しております!1500件以上の物件がご覧いただけます。当日案内も可能ですので、お時間のある時にお立ち寄りください
Local photos, including front road前面道路含む現地写真  Local (12 May 2013) Shooting
現地(2013年12月)撮影
 Local (12 May 2013) Shooting
現地(2013年12月)撮影
Same specifications photo (kitchen)同仕様写真(キッチン)  Same specifications
同仕様
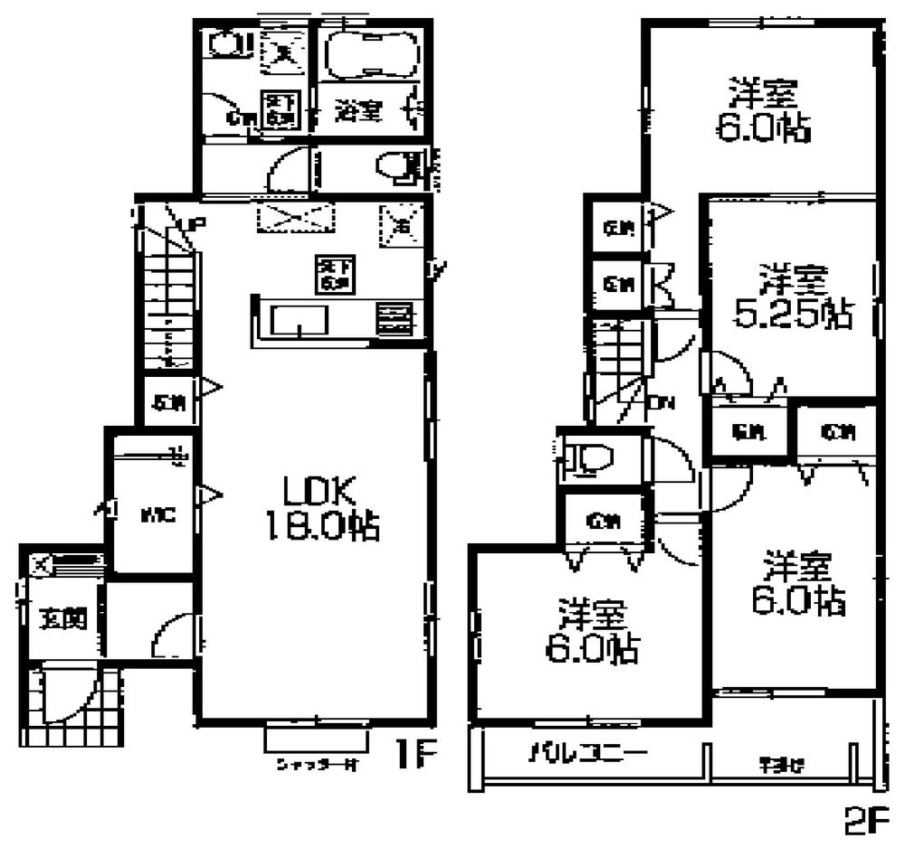
Floor plan間取り図  (1 Building), Price 28,900,000 yen, 4LDK, Land area 126.39 sq m , Building area 102.26 sq m
(1号棟)、価格2890万円、4LDK、土地面積126.39m2、建物面積102.26m2
Same specifications photo (bathroom)同仕様写真(浴室)  Same specifications
同仕様
Primary school小学校  Hoshizaki until elementary school 200m
星崎小学校まで200m
 The entire compartment Figure
全体区画図
Otherその他  Image is a photograph. It is different from the actual building.
イメージ写真です。実際の建物とは異なります。
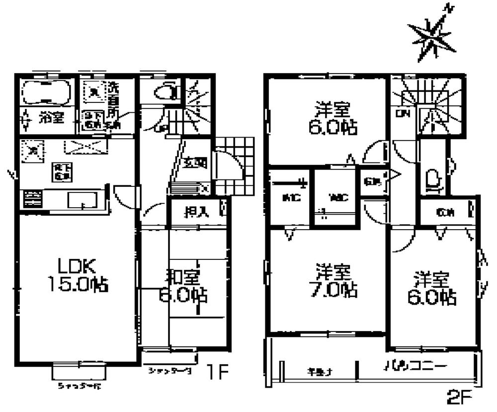
Floor plan間取り図  (Building 2), Price 27,900,000 yen, 4LDK, Land area 124.42 sq m , Building area 97.71 sq m
(2号棟)、価格2790万円、4LDK、土地面積124.42m2、建物面積97.71m2
Otherその他  Image is a photograph. It is different from the actual building.
イメージ写真です。実際の建物とは異なります。
Floor plan間取り図  (3 Building), Price 32,900,000 yen, 4LDK, Land area 123.88 sq m , Building area 100.19 sq m
(3号棟)、価格3290万円、4LDK、土地面積123.88m2、建物面積100.19m2
Otherその他  Image is a photograph. It is different from the actual building.
イメージ写真です。実際の建物とは異なります。
Floor plan間取り図  (4 Building), Price 29,900,000 yen, 4LDK, Land area 122.59 sq m , Building area 100.19 sq m
(4号棟)、価格2990万円、4LDK、土地面積122.59m2、建物面積100.19m2
Otherその他  Image is a photograph. It is different from the actual building.
イメージ写真です。実際の建物とは異なります。
 Image is a photograph. It is different from the actual building.
イメージ写真です。実際の建物とは異なります。
 Image is a photograph. It is different from the actual building.
イメージ写真です。実際の建物とは異なります。
Location
|