New Homes » Tokai » Aichi Prefecture » Nagoya Mizuho-ku
 
| | Nagoya, Aichi Prefecture Mizuho-ku, 愛知県名古屋市瑞穂区 |
| Subway Sakura-dori Line "Shinmizukyo" walk 3 minutes 地下鉄桜通線「新瑞橋」歩3分 |
| Subway Meijo Line ・ Sakura-dori Line "Shinmizukyo" station Walk about 3 minutes. Bright southeast corner lot, Open-minded all six buildings appeared urban RC house with rooftop on location. 地下鉄名城線・桜通線「新瑞橋」駅 徒歩約3分。 南東角地の明るく、開放的な立地に屋上付都市型RC住宅が全6棟登場。 |
| ■ Meijo ・ 2 lines of Sakura-dori Line available. 3-minute walk from "Shinmizukyo" station No. 3 entrance. ■ Surrounding environment blessed with a 9-minute walk to just ion mall rather than Aratamabashi station nearby. ■ Elementary school walk 6 minutes, Closeness of junior high school 9 minute walk. It is safe to go to school for children. ■名城線・桜通線の2路線利用可能。「新瑞橋」駅3番出入口より徒歩3分。■駅至近だけではなくイオンモール新瑞橋へも徒歩9分と恵まれた周辺環境。■小学校徒歩6分、中学校徒歩9分という近さ。お子様の通学にも安心です。 |
Features pickup 特徴ピックアップ | | Pre-ground survey / Parking two Allowed / LDK18 tatami mats or more / Fiscal year Available / Facing south / System kitchen / Bathroom Dryer / Yang per good / Flat to the station / Or more before road 6m / Corner lot / Washbasin with shower / Face-to-face kitchen / Toilet 2 places / Bathroom 1 tsubo or more / South balcony / Double-glazing / Warm water washing toilet seat / TV monitor interphone / All living room flooring / IH cooking heater / Dish washing dryer / Walk-in closet / Or more ceiling height 2.5m / Water filter / Three-story or more / All-electric / rooftop 地盤調査済 /駐車2台可 /LDK18畳以上 /年度内入居可 /南向き /システムキッチン /浴室乾燥機 /陽当り良好 /駅まで平坦 /前道6m以上 /角地 /シャワー付洗面台 /対面式キッチン /トイレ2ヶ所 /浴室1坪以上 /南面バルコニー /複層ガラス /温水洗浄便座 /TVモニタ付インターホン /全居室フローリング /IHクッキングヒーター /食器洗乾燥機 /ウォークインクロゼット /天井高2.5m以上 /浄水器 /3階建以上 /オール電化 /屋上 | Event information イベント情報 | | Model house (please make a reservation beforehand) schedule / During the public time / 10:00 ~ 17:00 published in !! to our property and a rooftop with a three-story reinforced concrete housing of equivalent specification ○ about 20 Pledge Rooftop balcony ○ 5LDK + 2 cars parking space ○ high sound insulation performance ・ Thermal insulation performance Etc. You can actually feel your. For more information please contact the Nagoya Branch. モデルハウス(事前に必ず予約してください)日程/公開中時間/10:00 ~ 17:00当物件と同等仕様の屋上付3階建鉄筋コンクリート住宅を公開中!! ○約20帖 屋上バルコニー ○5LDK+2台分の駐車スペース ○高い遮音性能・断熱性能 等実際にご体感頂けます。 詳細は名古屋支店までご連絡くださいませ。 | Property name 物件名 | | Deer stage Mizuho-ku, Ishida Aratamabashi (roof with reinforced concrete housing) ディアステージ瑞穂区石田新瑞橋(屋上付鉄筋コンクリート住宅) | Price 価格 | | 44,800,000 yen ~ 45,800,000 yen 4480万円 ~ 4580万円 | Floor plan 間取り | | 4LDK 4LDK | Units sold 販売戸数 | | 2 units 2戸 | Total units 総戸数 | | 6 units 6戸 | Land area 土地面積 | | 65.44 sq m ~ 73.15 sq m (19.79 tsubo ~ 22.12 tsubo) (measured) 65.44m2 ~ 73.15m2(19.79坪 ~ 22.12坪)(実測) | Building area 建物面積 | | 114.25 sq m (34.56 tsubo) (measured) 114.25m2(34.56坪)(実測) | Driveway burden-road 私道負担・道路 | | East about 9.1m, Sessu on the south side about 9.1m width on public roads 東側約9.1m、南側約9.1m幅公道に接す | Completion date 完成時期(築年月) | | 2014 end of March plan 2014年3月末予定 | Address 住所 | | Nagoya, Aichi Prefecture Mizuho-ku, Ishida-cho 1-36 愛知県名古屋市瑞穂区石田町1-36 | Traffic 交通 | | Subway Sakura-dori Line "Shinmizukyo" walk 3 minutes Subway Sakura-dori Line "Mizuho playground west" walk 5 minutes Subway Meijo Line "Myoontori" walk 14 minutes 地下鉄桜通線「新瑞橋」歩3分 地下鉄桜通線「瑞穂運動場西」歩5分 地下鉄名城線「妙音通」歩14分
| Related links 関連リンク | | [Related Sites of this company] 【この会社の関連サイト】 | Contact お問い合せ先 | | (Ltd.) RC housing Nagoya Branch TEL: 0800-600-8480 [Toll free] mobile phone ・ Also available from PHS Caller ID is not notified Please contact the "saw SUUMO (Sumo)" If it does not lead, If the real estate company (株)RCハウジング名古屋支店TEL:0800-600-8480【通話料無料】携帯電話・PHSからもご利用いただけます 発信者番号は通知されません 「SUUMO(スーモ)を見た」と問い合わせください つながらない方、不動産会社の方は
| Building coverage, floor area ratio 建ぺい率・容積率 | | Kenpei rate: 60% ・ 200% 建ペい率:60%・200% | Time residents 入居時期 | | Consultation 相談 | Land of the right form 土地の権利形態 | | Ownership 所有権 | Structure and method of construction 構造・工法 | | RC3 story RC3階建 | Construction 施工 | | Co., Ltd. RC housing 株式会社RCハウジング | Use district 用途地域 | | One dwelling 1種住居 | Land category 地目 | | Residential land 宅地 | Overview and notices その他概要・特記事項 | | Building confirmation number: first KS113-0120-00618 (A) 00619 (B) 建築確認番号:第KS113-0120-00618(A)00619(B) | Company profile 会社概要 | | <Seller> Minister of Land, Infrastructure and Transport (1) No. 007921 (Ltd.) RC housing Nagoya Branch Yubinbango464-0807, Aichi Prefecture, Chikusa-ku, Nagoya Higashiyamatori 5-20-1 <売主>国土交通大臣(1)第007921号(株)RCハウジング名古屋支店〒464-0807 愛知県名古屋市千種区東山通5-20-1 |
Rendering (appearance)完成予想図(外観)  Urban style of RC house with a roof is a total of 6 buildings appeared!
アーバンスタイルの屋上付RC住宅が全6棟登場!!
Same specifications photos (living)同仕様写真(リビング)  Ceiling height is set high and about 2.6m. Spread is some space.
天井高は約2.6mと高く設定。広がりある空間です。
 Second floor LDK can be life without having to worry about the eyes from the vehicle and passerby.
2階LDKは車両や通行人からの目線を気にせずに生活できます。
Same specifications photo (kitchen)同仕様写真(キッチン)  Kitchen same specifications Photos
キッチン同仕様写真
 Kitchen same specifications Photos
キッチン同仕様写真
Same specifications photos (living)同仕様写真(リビング)  Face-to-face kitchen overlooking the whole LDK.
LDK全体を見渡せる対面式キッチン。
Same specifications photos (Other introspection)同仕様写真(その他内観)  Just put a table set, The cafe terrace.
テーブルセットを置くだけで、カフェテラスに。
 You can also used as a dog run.
ドッグランとしても活用できます。
 Night, Also looking forward to that lull in the write-up rooftop.
夜、ライトアップした屋上で一服という楽しみも。
 Day, Also a good rooftop balcony ventilation optimal location as vegetable garden space.
日当たり、風通しもよい屋上バルコニーは菜園スペースとして最適な場所。
 Rooftop balcony same specifications Photos.
屋上バルコニー同仕様写真。
 Parking space Same specifications Photos
駐車スペース 同仕様写真
 The body is covered in the ceiling in the parking space, You can get in and out of the car without getting wet in the rain.
駐車スペースでは車体が天井に覆われ、雨に濡れずに車の乗り降りができます。
 DEN (study) space Same specifications photos (F Building)
DEN(書斎)スペース 同仕様写真(F棟)
 Same specifications photos (Other introspection)
同仕様写真(その他内観)
 In the high sound insulation of RC you can enjoy music and movies at high volume in the Western-style.
遮音性の高いRC造では洋室で音楽や映画を大音量で楽しむ事ができます。
Same specifications photo (bathroom)同仕様写真(浴室)  1 square meters or more wide, It is comfortable and relaxing bath.
広さ1坪以上、ゆったりくつろげる浴槽です。
Same specifications photos (Other introspection)同仕様写真(その他内観)  Adjacent shoe closet in the foyer.
玄関にはシューズクローゼットが隣接。
 Large capacity shoebox. (AB building and the same specifications)
大容量靴箱。(AB棟と同仕様)
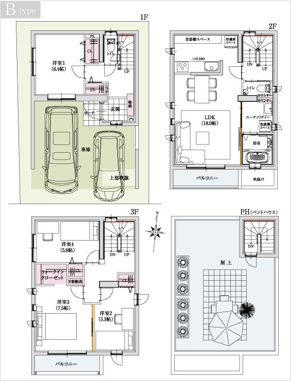
 Floor plan
間取り図
 Floor plan
間取り図
 The entire compartment Figure
全体区画図
Location
|