New Homes » Tokai » Aichi Prefecture » Showa-ku, Nagoya
 
| | Showa-ku Nagoya-shi, Aichi 愛知県名古屋市昭和区 |
| Subway Tsurumai "Kawana" walk 9 minutes 地下鉄鶴舞線「川名」歩9分 |
| [Forest Notes Showa-ku, Nagoya Minamibun town house Part2] Seller Property ■ Subway Tsurumai "Kawana" station / 9 minute walk ■ Hiroji elementary school / 870m walk 11 minutes ■ Komagata junior high school / 806m walk 11 minutes 【フォレストノート 名古屋市昭和区 南分町の家 Part2】売主物件■地下鉄鶴舞線「川名」駅/徒歩9分■広路小学校/870m 徒歩11分■駒方中学校/806m 徒歩11分 |
| ○ feature construction housing performance with evaluation, Design house performance with evaluation, Measures to conserve energy, Airtight high insulated houses, Pre-ground survey, Seismic fit, 2 along the line more accessible, Energy-saving water heaters, Super close, Facing south, System kitchen, Bathroom Dryer, Siemens south road, LDK15 tatami mats or more, Or more before road 6m, Washbasin with shower, Face-to-face kitchen, Toilet 2 places, Bathroom 1 tsubo or more, South balcony, Double-glazing, Warm water washing toilet seat, Underfloor Storage, The window in the bathroom, TV monitor interphone, High-function toilet, Dish washing dryer, Water filter, Three-story or more, City gas, Floor heating ● Other inquiries about property is, Please from "document request button" of orange! Tax saving ・ Also questions about such expenses, Than "Request button" ○特徴建設住宅性能評価付、設計住宅性能評価付、省エネルギー対策、高気密高断熱住宅、地盤調査済、耐震適合、2沿線以上利用可、省エネ給湯器、スーパーが近い、南向き、システムキッチン、浴室乾燥機、南側道路面す、LDK15畳以上、前道6m以上、シャワー付洗面台、対面式キッチン、トイレ2ヶ所、浴室1坪以上、南面バルコニー、複層ガラス、温水洗浄便座、床下収納、浴室に窓、TVモニタ付インターホン、高機能トイレ、食器洗乾燥機、浄水器、3階建以上、都市ガス、床暖房●そのほか物件に関するお問い合わせは、オレンジ色の「資料請求ボタン」からどうぞ!節税・諸費用などについてのご質問も、「資料請求ボタン」より |
Seller comments 売主コメント | | Building A A棟 | Local guide map 現地案内図 | | Local guide map 現地案内図 | Features pickup 特徴ピックアップ | | Construction housing performance with evaluation / Design house performance with evaluation / Measures to conserve energy / Airtight high insulated houses / Pre-ground survey / Seismic fit / Immediate Available / 2 along the line more accessible / Energy-saving water heaters / Super close / Facing south / System kitchen / Bathroom Dryer / Siemens south road / LDK15 tatami mats or more / Or more before road 6m / Washbasin with shower / Face-to-face kitchen / Toilet 2 places / Bathroom 1 tsubo or more / South balcony / Double-glazing / Warm water washing toilet seat / Underfloor Storage / The window in the bathroom / TV monitor interphone / High-function toilet / Dish washing dryer / Water filter / Three-story or more / City gas / Floor heating 建設住宅性能評価付 /設計住宅性能評価付 /省エネルギー対策 /高気密高断熱住宅 /地盤調査済 /耐震適合 /即入居可 /2沿線以上利用可 /省エネ給湯器 /スーパーが近い /南向き /システムキッチン /浴室乾燥機 /南側道路面す /LDK15畳以上 /前道6m以上 /シャワー付洗面台 /対面式キッチン /トイレ2ヶ所 /浴室1坪以上 /南面バルコニー /複層ガラス /温水洗浄便座 /床下収納 /浴室に窓 /TVモニタ付インターホン /高機能トイレ /食器洗乾燥機 /浄水器 /3階建以上 /都市ガス /床暖房 | Event information イベント情報 | | Local tours (Please be sure to ask in advance) time / 10:00 ~ 17:00 As you can see slowly, We will arrange. Than "Request button", Please inform the tour desired time in advance. 現地見学会(事前に必ずお問い合わせください)時間/10:00 ~ 17:00ゆっくりご覧いただけますよう、手配いたします。「資料請求ボタン」より、事前に見学希望時間をお知らせください。 | Property name 物件名 | | Forest Notes Showa-ku, Nagoya Minamibun town house Part2 Seller Property フォレストノート 名古屋市昭和区 南分町の家 Part2 売主物件 | Price 価格 | | 44,500,000 yen 4450万円 | Floor plan 間取り | | 2LDK + 3S (storeroom) 2LDK+3S(納戸) | Units sold 販売戸数 | | 1 units 1戸 | Total units 総戸数 | | 2 units 2戸 | Land area 土地面積 | | 71.45 sq m (21.61 square meters) 71.45m2(21.61坪) | Building area 建物面積 | | 125.55 sq m (37.97 square meters) 125.55m2(37.97坪) | Driveway burden-road 私道負担・道路 | | South 6.3m 南側6.3m | Completion date 完成時期(築年月) | | 2013 Late July 2013年7月下旬 | Address 住所 | | Showa-ku Nagoya-shi, Aichi Minamibun-cho, 4-7 No. 1 愛知県名古屋市昭和区南分町4-7番1 | Traffic 交通 | | Subway Tsurumai "Kawana" walk 9 minutes Subway Tsurumai "Gokisho" walk 13 minutes Subway Sakura-dori Line "Sakurayama" walk 21 minutes 地下鉄鶴舞線「川名」歩9分 地下鉄鶴舞線「御器所」歩13分 地下鉄桜通線「桜山」歩21分
| Related links 関連リンク | | [Related Sites of this company] 【この会社の関連サイト】 | Contact お問い合せ先 | | (Ltd.) Wood Friends TEL: 0800-603-1631 [Toll free] mobile phone ・ Also available from PHS Caller ID is not notified Please contact the "saw SUUMO (Sumo)" If it does not lead, If the real estate company (株)ウッドフレンズTEL:0800-603-1631【通話料無料】携帯電話・PHSからもご利用いただけます 発信者番号は通知されません 「SUUMO(スーモ)を見た」と問い合わせください つながらない方、不動産会社の方は
| Sale schedule 販売スケジュール | | Tax saving ・ Also questions about such expenses, Than "Request button", Please feel free to ask. 節税・諸費用などについてのご質問も、「資料請求ボタン」より、お気軽にお尋ねください。 | Building coverage, floor area ratio 建ぺい率・容積率 | | Building coverage: 60%, Volume ratio: 200% 建ぺい率:60%、容積率:200% | Time residents 入居時期 | | Immediate available 即入居可 | Land of the right form 土地の権利形態 | | Ownership 所有権 | Structure and method of construction 構造・工法 | | Wooden Galvalume steel Itabuki three-story 木造ガルバリウム鋼板葺3階建 | Construction 施工 | | Co., Ltd. Wood Friends 株式会社ウッドフレンズ | Use district 用途地域 | | Two mid-high 2種中高 | Land category 地目 | | Residential land 宅地 | Overview and notices その他概要・特記事項 | | Building confirmation number: No. H24 confirmation architecture Love Kenjuse No. 25796 建築確認番号:第H24確認建築愛建住セ25796号 | Company profile 会社概要 | | <Seller> Minister of Land, Infrastructure and Transport (3) No. 006013 (Corporation) Aichi Prefecture Building Lots and Buildings Transaction Business Association Tokai Real Estate Fair Trade Council member (Ltd.) Wood Friends Yubinbango460-0008 Sakae, Naka-ku, Nagoya, Aichi Prefecture 4-5-3 <売主>国土交通大臣(3)第006013号(公社)愛知県宅地建物取引業協会会員 東海不動産公正取引協議会加盟(株)ウッドフレンズ〒460-0008 愛知県名古屋市中区栄4-5-3 |
Livingリビング  The Building A second floor living dining kitchen wall and siding, Guests will enjoy the family gatherings in the space can feel the warmth of the wood.
A棟2階リビングダイニングキッチン壁を羽目板とし、木のぬくもりを感じられる空間で家族団欒をお楽しみ頂けます。
Local appearance photo現地外観写真  A Togaikan photo ※ 2013 / 7 / 17 shooting
A棟外観写真 ※2013/7/17撮影
Non-living roomリビング以外の居室  Building A, first floor free space First floor of calm here of the living room, which was placed in the position You can use it as a bedroom. Fixtures counter, It is very convenient as well as powder space of wife.
A棟1階フリースペース 1階の落ち着いた位置に配置したこちらの居室は寝室としてもお使い頂けます。造作カウンターは、奥様のパウダースペースとしても大変便利です。
 Building A 3 Kaiyoshitsu
A棟3階洋室
 Building A 3 Kaiyoshitsu Gradient ceiling of Western-style open space is spread.
A棟3階洋室 開放的な空間が広がる勾配天井の洋室。
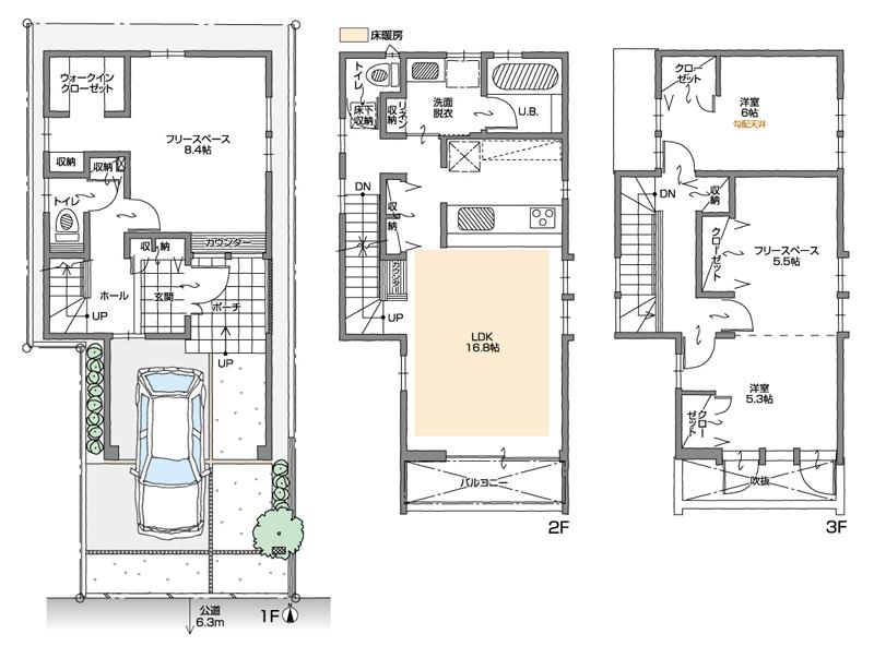
Floor plan間取り図  (A Building), Price 44,500,000 yen, 2LDK+3S, Land area 71.45 sq m , Building area 125.55 sq m
(A棟)、価格4450万円、2LDK+3S、土地面積71.45m2、建物面積125.55m2
The entire compartment Figure全体区画図  Compartment figure
区画図
Junior high school中学校  806m to Nagoya Municipal Komagata junior high school
名古屋市立駒方中学校まで806m
Primary school小学校  870m to Nagoya Municipal Hiroji Elementary School
名古屋市立広路小学校まで870m
Kindergarten ・ Nursery幼稚園・保育園  Shoei 799m to nursery school
松栄保育園まで799m
 880m to the desired kindergarten
希望幼稚園まで880m
Station駅  800m Metro Tsurumai "Kawana" station
地下鉄鶴舞線「川名」駅まで800m
Shopping centreショッピングセンター  Until Maxvalu 660m
マックスバリュまで660m
Otherその他  Performance evaluation certification Ranking (fiscal 2011) design performance evaluation nationwide 8th! Construction performance evaluation nationwide 7th!
性能評価認定ランキング(2011年度)設計性能評価 全国8位!建設性能評価 全国7位!
 Wood Friends Group Business Information
ウッドフレンズグループ事業案内
 Safe production of structural materials in our factory
自社工場で構造材を安心生産
Local guide map現地案内図  Wide-area view
広域図
 Detail view
詳細図
Location
|