New Homes » Tokai » Aichi Prefecture » Showa-ku, Nagoya
 
| | Showa-ku Nagoya-shi, Aichi 愛知県名古屋市昭和区 |
| Subway Tsurumai "Gokisho" walk 10 minutes 地下鉄鶴舞線「御器所」歩10分 |
| [Wood Friends Showa-ku, Nagoya Yukimi town house Part2] Seller Property * ◇ ◆ Complete sales meeting appointment ◆ ◇ * mansion that was the "real room" to form in the land of Showa-ku, Yukimi Town birth. 【ウッドフレンズ 名古屋市昭和区 雪見町の家 Part2】売主物件*◇◆ 完成販売会 完全予約制 ◆◇*昭和区雪見町の地に「本物のゆとり」を形にした邸宅が誕生。 |
| <Full appointment> completed sales events December 14 (Saturday) ・ 15 (Sunday) Reservation (Request) invite you to complete sales events with limited person who had. Prior to the home page, Please apply by phone. Relocation SHOP Sakae studio: 0120-911-866 ■ 2 along the line 3 station available! "Gokisho" station a 10-minute walk, "Arahata" station ・ "Blown" station walk 11 minutes ■ Fukiage park walk 7 minutes! A quiet residential area ■ kindergarten ・ Also safe to go to school for children in less than 10 minutes elementary school walk ■ LDK furnished by professional interior coordinator has been select <完全予約制> 完成販売会12月14日(土)・15日(日)ご予約(資料請求)頂いた方限定で完成販売会にご招待。事前にホームページ、お電話にてお申込みください。住みかえSHOP 栄スタジオ : 0120-911-866■2沿線3駅利用可能! 「御器所」駅徒歩10分、「荒畑」駅・「吹上」駅徒歩11分■吹上公園 徒歩7分!閑静な住宅地■幼稚園・小学校徒歩10分以内でお子様の通学にも安心■プロのインテリアコーディネーターがセレクトしたLDK家具付 |
Local guide map 現地案内図 | | Local guide map 現地案内図 | Features pickup 特徴ピックアップ | | Construction housing performance with evaluation / Design house performance with evaluation / Measures to conserve energy / Long-term high-quality housing / Airtight high insulated houses / Pre-ground survey / Seismic fit / Parking two Allowed / 2 along the line more accessible / LDK20 tatami mats or more / Energy-saving water heaters / Facing south / System kitchen / Bathroom Dryer / All room storage / Siemens south road / A quiet residential area / Or more before road 6m / Mist sauna / Washbasin with shower / Face-to-face kitchen / Shutter - garage / Toilet 2 places / Bathroom 1 tsubo or more / 2-story / Warm water washing toilet seat / Underfloor Storage / Atrium / TV monitor interphone / High-function toilet / Built garage / Dish washing dryer / Walk-in closet / Water filter / City gas / Storeroom / roof balcony / terrace 建設住宅性能評価付 /設計住宅性能評価付 /省エネルギー対策 /長期優良住宅 /高気密高断熱住宅 /地盤調査済 /耐震適合 /駐車2台可 /2沿線以上利用可 /LDK20畳以上 /省エネ給湯器 /南向き /システムキッチン /浴室乾燥機 /全居室収納 /南側道路面す /閑静な住宅地 /前道6m以上 /ミストサウナ /シャワー付洗面台 /対面式キッチン /シャッタ-車庫 /トイレ2ヶ所 /浴室1坪以上 /2階建 /温水洗浄便座 /床下収納 /吹抜け /TVモニタ付インターホン /高機能トイレ /ビルトガレージ /食器洗乾燥機 /ウォークインクロゼット /浄水器 /都市ガス /納戸 /ルーフバルコニー /テラス | Property name 物件名 | | Wood Friends Showa-ku, Nagoya Yukimi town house Part2 Seller Property ウッドフレンズ 名古屋市昭和区 雪見町の家 Part2 売主物件 | Price 価格 | | 94,800,000 yen 9480万円 | Floor plan 間取り | | 4LDK + 3S (storeroom) 4LDK+3S(納戸) | Units sold 販売戸数 | | 1 units 1戸 | Total units 総戸数 | | 1 units 1戸 | Land area 土地面積 | | 162.16 sq m 162.16m2 | Building area 建物面積 | | 192.62 sq m 192.62m2 | Driveway burden-road 私道負担・道路 | | South 7.2m 南側7.2m | Completion date 完成時期(築年月) | | 2013 mid-December 2013年12月中旬 | Address 住所 | | Showa-ku Nagoya-shi, Aichi Yukimi-cho 1-11 No. 1, 13 No. 2 愛知県名古屋市昭和区雪見町1-11番1、13番2 | Traffic 交通 | | Subway Tsurumai "Gokisho" walk 10 minutes Subway Tsurumai "Arahata" walk 11 minutes Subway Sakura-dori Line "blown" walk 11 minutes 地下鉄鶴舞線「御器所」歩10分 地下鉄鶴舞線「荒畑」歩11分 地下鉄桜通線「吹上」歩11分
| Related links 関連リンク | | [Related Sites of this company] 【この会社の関連サイト】 | Contact お問い合せ先 | | (Ltd.) Wood Friends TEL: 0800-603-1631 [Toll free] mobile phone ・ Also available from PHS Caller ID is not notified Please contact the "saw SUUMO (Sumo)" If it does not lead, If the real estate company (株)ウッドフレンズTEL:0800-603-1631【通話料無料】携帯電話・PHSからもご利用いただけます 発信者番号は通知されません 「SUUMO(スーモ)を見た」と問い合わせください つながらない方、不動産会社の方は
| Sale schedule 販売スケジュール | | Funds ・ Also, such as loan of worry, Than "Request button", Please feel free to ask. 資金・ローンのご心配なども、「資料請求ボタン」より、お気軽にお尋ねください。 | Building coverage, floor area ratio 建ぺい率・容積率 | | Building coverage: 60%, Volume ratio: 200% 建ぺい率:60%、容積率:200% | Time residents 入居時期 | | Mid-January 2014 2014年1月中旬予定 | Land of the right form 土地の権利形態 | | Ownership 所有権 | Structure and method of construction 構造・工法 | | Wooden Galvalume steel Itabuki 2 story 木造ガルバリウム鋼板葺2階建 | Construction 施工 | | Co., Ltd. Wood Friends 株式会社ウッドフレンズ | Use district 用途地域 | | Two mid-high 2種中高 | Land category 地目 | | Residential land 宅地 | Overview and notices その他概要・特記事項 | | Building confirmation number: No. H24 confirmation architecture Love Kenjuse No. 25933 建築確認番号:第H24確認建築愛建住セ25933号 | Company profile 会社概要 | | <Seller> Minister of Land, Infrastructure and Transport (3) No. 006013 (Corporation) Aichi Prefecture Building Lots and Buildings Transaction Business Association Tokai Real Estate Fair Trade Council member (Ltd.) Wood Friends Yubinbango460-0008 Sakae, Naka-ku, Nagoya, Aichi Prefecture 4-5-3 <売主>国土交通大臣(3)第006013号(公社)愛知県宅地建物取引業協会会員 東海不動産公正取引協議会加盟(株)ウッドフレンズ〒460-0008 愛知県名古屋市中区栄4-5-3 |
Rendering (introspection)完成予想図(内観)  Relaxed some LDK ・ Master bedroom ・ While directing a space in which relax calmly and slowly water around, etc., In was to enrich for storage such as functional high-capacity provided with a second floor storage.
ゆとりあるLDK・主寝室・水廻り等ゆっくりと落ち着いてくつろげる空間を演出しつつ、中2階収納を設けた大容量の収納等機能的にも充実させました。
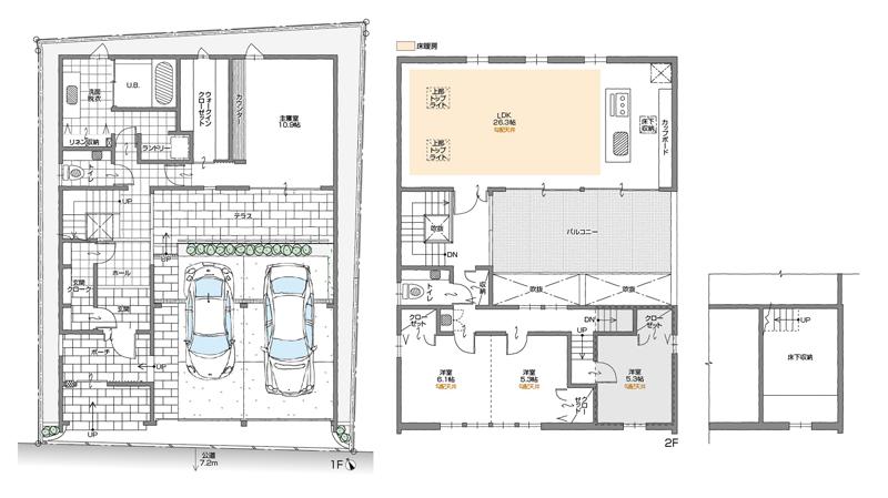
Floor plan間取り図  Price 94,800,000 yen, 4LDK+3S, Land area 162.16 sq m , Building area 192.62 sq m
価格9480万円、4LDK+3S、土地面積162.16m2、建物面積192.62m2
 The entire compartment Figure
全体区画図
Park公園  700m until Tsurumai park
鶴舞公園まで700m
Shopping centreショッピングセンター  1200m until the ion Town Chikusa
イオンタウン千種まで1200m
Rendering (introspection)完成予想図(内観)  Kitchen Image Take a wide frontage, By taking the sash to the ceiling of the high position, Very bright living room. Further open with a gradient ceiling.
キッチンイメージ: 間口を広くとり、天井の高い位置にもサッシをとることで、とても明るいリビングに。勾配天井でさらに開放的。
 Living Image Earned top light (skylights) in the living top, Produce a bright living room.
リビングイメージ: リビング上部にはトップライト(天窓)をもうけ、明るいリビングを演出。
 Balcony Image Use the FRP grating on the floor, It was also considered in the lighting of the first floor terrace part.
バルコニーイメージ: 床にはFRPグレーチングを使用し、1階テラス部分への採光にも配慮しました。
Rendering (appearance)完成予想図(外観)  Built-in garage Image Electric aluminum built-in garage with shutter 2 car is, Attractive can also be getting on and off without getting wet day of the crime prevention measures and rain.
ビルトインガレージイメージ: 2台分の電動アルミシャッター付ビルトインガレージは、防犯対策及び雨の日も濡れずに乗降でき魅力的。
Otherその他  Performance evaluation certification Ranking (fiscal 2011) design performance evaluation National # 8! Construction Performance Evaluation National # 7!
性能評価認定ランキング(2011年度)設計性能評価 全国8位!建設性能評価 全国7位!
 Peace of mind in the long-term high-quality housing ・ Favorable living
長期優良住宅で安心・有利な暮らし
 Safe production of structural materials in our factory
自社工場で構造材を安心生産
 Wood Friends Group Business Information
ウッドフレンズグループ事業案内
Station駅  880m Metro Tsurumai "Gokisho" station
地下鉄鶴舞線「御器所」駅まで880m
Primary school小学校  Blown up to elementary school 230m
吹上小学校まで230m
Kindergarten ・ Nursery幼稚園・保育園  Fukiage 460m to kindergarten
吹上幼稚園まで460m
 Local guide map
現地案内図
 Local guide map
現地案内図
Hospital病院  1100m to Nagoya University Hospital
名古屋大学病院まで1100m
Convenience storeコンビニ  325m to Circle K Showa Hazama-cho shop
サークルK昭和狭間町店まで325m
Kindergarten ・ Nursery幼稚園・保育園  1000m to Sunflower nursery school
ひまわり保育園まで1000m
Junior high school中学校  Kitayama 1080m until junior high school
北山中学校まで1080m
Location
|