New Homes » Tokai » Aichi Prefecture » Showa-ku, Nagoya


Showa-ku Nagoya-shi, Aichi
Subway Tsurumai "Kawana" walk 5 minutes
Subway Tsurumai "Kawana" station: a 5-minute walk! Convenience ・ Rich city of Nagoya high speed inter near a so also easy to popular area outing blessed with living environment! Hiroji elementary school ・ Komagata junior high school
"TOWA STAGE VILLA", "Towa House" premium grade. We will deliver the living space up a notch designed by architect. Beautiful look ・ Well is introspection, Pleasant sense of openness and good lighting, Towa is the confidence of construction commitment was to shape the Tokazesei. ● VILLA unique commitment facility ● ・ LDK floor heating ・ LDK Air Conditioning ・ Ecocarat ・ Bathroom TV ・ Entrance door touch key ・ Electric shutter ・ Dish washing dryer ・ Bathroom heating ventilation dryer ・ Monitor with intercom ・ Entrance cloak ・ Security glass Etc
Features pickup
Parking two Allowed / LDK20 tatami mats or more / Energy-saving water heaters / Super close / System kitchen / Bathroom Dryer / All room storage / Japanese-style room / Washbasin with shower / Face-to-face kitchen / 3 face lighting / Toilet 2 places / Bathroom 1 tsubo or more / 2-story / 2 or more sides balcony / South balcony / Warm water washing toilet seat / loft / TV with bathroom / Underfloor Storage / The window in the bathroom / TV monitor interphone / Ventilation good / Wood deck / Dish washing dryer / Walk-in closet / Or more ceiling height 2.5m / City gas / Floor heating
Property name
TOWA STAGE VILLA Showa-ku, Kawana-cho, VI
Price
64,800,000 yen
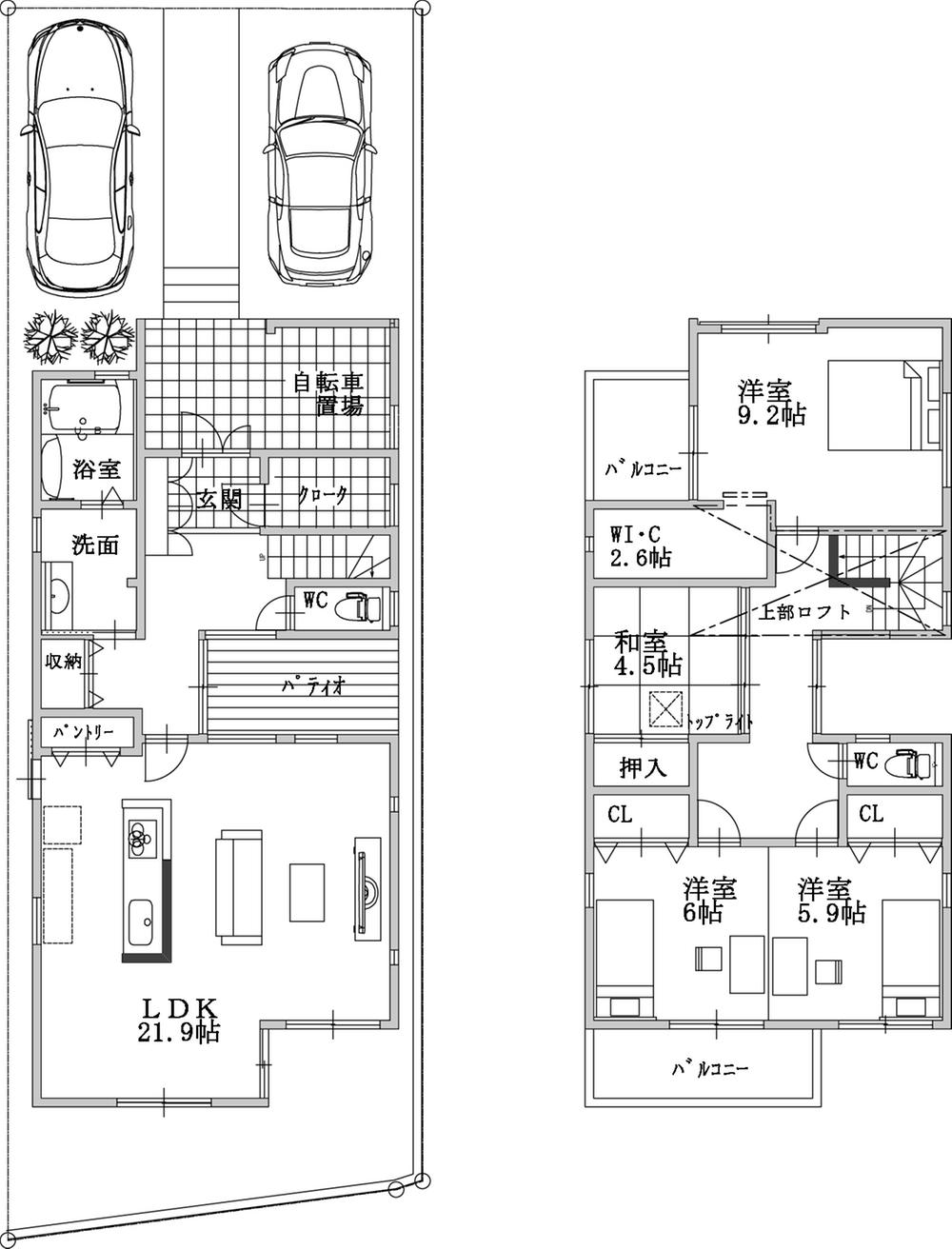
Floor plan
4LDK
Units sold
1 units
Total units
2 units
Land area
153.11 sq m (46.31 square meters)
Building area
136.88 sq m (41.40 square meters)
Driveway burden-road
North side road about 4.5m
Completion date
February 2014 schedule
Address
Showa-ku Nagoya-shi, Aichi Kawana cho 5-21 No. 2
Traffic
Subway Tsurumai "Kawana" walk 5 minutes
Related links
[Related Sites of this company]
Contact
TEL: 0800-603-3206 [Toll free] mobile phone ・ Also available from PHS
Caller ID is not notified
Please contact the "saw SUUMO (Sumo)"
If it does not lead, If the real estate company
Building coverage, floor area ratio
Kenpei rate: 60%, Volume ratio: 200%
Time residents
March 2014 schedule
Land of the right form
Ownership
Structure and method of construction
Wooden 2-story (framing method)
Use district
One dwelling
Land category
Residential land
Other limitations
Height district, Quasi-fire zones
Overview and notices
Building confirmation number: H25 Se 21526
Company profile
<Seller> Governor of Aichi Prefecture (3) No. 019170 (Corporation) All Japan Real Estate Association Tokai Real Estate Fair Trade Council member (Ltd.) Towa Construction Yubinbango465-0005 Nagoya, Aichi Prefecture Meito-ku, Canare 1-1009


Rendering (appearance)

Rendering (appearance). Image CG
Image CG

Floor plan

Floor plan. (East Building), Price 64,800,000 yen, 4LDK, Land area 153.11 sq m , Building area 136.88 sq m
(East Building), Price 64,800,000 yen, 4LDK, Land area 153.11 sq m , Building area 136.88 sq m

Supermarket

Supermarket. Until Yamanaka Yasuda shop 323m
Until Yamanaka Yasuda shop 323m

The entire compartment Figure

The entire compartment Figure. Compartment figure
Compartment figure

Supermarket

Supermarket. Until Maxvalu Kawahara shop 668m
Until Maxvalu Kawahara shop 668m

Junior high school

Junior high school. 1163m to Nagoya Municipal Komagata junior high school
1163m to Nagoya Municipal Komagata junior high school

Primary school

Primary school. 385m to Nagoya Municipal Hiroji Elementary School
385m to Nagoya Municipal Hiroji Elementary School

Hospital

Hospital. 717m to the medical law life hospital snares or Kotobuki meeting
717m to the medical law life hospital snares or Kotobuki meeting

Post office

post office. Nagoya Kawaharatori 326m to the post office
Nagoya Kawaharatori 326m to the post office

Bank

Bank. Bank of Nagoya Kawaharatori to the branch 520m
Bank of Nagoya Kawaharatori to the branch 520m

Park

park. 611m to Kawana park
611m to Kawana park



Location