|
|
Aichi Prefecture Obu
愛知県大府市
|
|
JR Tokaido Line "Republic" walk 21 minutes
JR東海道本線「共和」歩21分
|
|
☆ Parking two Allowed ☆ Yang per good ☆ All room storage ☆ LDK15 tatami mats or more ☆ Toilet 2 places ☆ 2-story ☆ Walk-in closet ☆
☆駐車2台可☆陽当り良好☆全居室収納☆LDK15畳以上☆トイレ2ヶ所☆2階建☆ウォークインクロゼット☆
|
Features pickup 特徴ピックアップ | | Parking two Allowed / Yang per good / All room storage / LDK15 tatami mats or more / Toilet 2 places / 2-story / Walk-in closet 駐車2台可 /陽当り良好 /全居室収納 /LDK15畳以上 /トイレ2ヶ所 /2階建 /ウォークインクロゼット |
Price 価格 | | 30,800,000 yen 3080万円 |
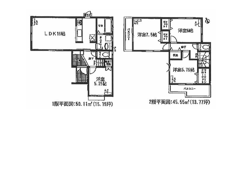
Floor plan 間取り | | 4LDK 4LDK |
Units sold 販売戸数 | | 1 units 1戸 |
Land area 土地面積 | | 115.72 sq m (registration) 115.72m2(登記) |
Building area 建物面積 | | 95.66 sq m (registration) 95.66m2(登記) |
Driveway burden-road 私道負担・道路 | | Nothing, West 3.6m width (contact the road width 10.8m) 無、西3.6m幅(接道幅10.8m) |
Completion date 完成時期(築年月) | | December 2013 2013年12月 |
Address 住所 | | Aichi Prefecture Obu Nagakusa cho welcomed 愛知県大府市長草町向江 |
Traffic 交通 | | JR Tokaido Line "Republic" walk 21 minutes JR東海道本線「共和」歩21分
|
Related links 関連リンク | | [Related Sites of this company] 【この会社の関連サイト】 |
Person in charge 担当者より | | [Regarding this property.] Please feel free to contact us for more details and preview of the property. We will carefully explain, such as mortgage and taxes. First of all we are waiting for the inquiry. 【この物件について】物件についての詳細や内覧についてはお気軽にご相談下さい。住宅ローンや税金なども丁寧にご説明致します。まずはお問い合わせをお待ちしております。 |
Contact お問い合せ先 | | TEL: 0800-603-9937 [Toll free] mobile phone ・ Also available from PHS Caller ID is not notified Please contact the "saw SUUMO (Sumo)" If it does not lead, If the real estate company TEL:0800-603-9937【通話料無料】携帯電話・PHSからもご利用いただけます 発信者番号は通知されません 「SUUMO(スーモ)を見た」と問い合わせください つながらない方、不動産会社の方は
|
Building coverage, floor area ratio 建ぺい率・容積率 | | 60% ・ 160% 60%・160% |
Time residents 入居時期 | | Consultation 相談 |
Land of the right form 土地の権利形態 | | Ownership 所有権 |
Structure and method of construction 構造・工法 | | Wooden 2-story 木造2階建 |
Use district 用途地域 | | One dwelling 1種住居 |
Other limitations その他制限事項 | | Sewage treatment in the area ・ Residential land development Regulation Law ・ Law Article 22 zone 下水道処理区域内・宅地造成等規制法・法22条区域 |
Overview and notices その他概要・特記事項 | | Facilities: Public Water Supply, This sewage, Building confirmation number: H25_nenkakuninsabisudai No. KS113-0110-02880 設備:公営水道、本下水、建築確認番号:H25年確認サービス第KS113-0110-02880号 |
Company profile 会社概要 | | <Mediation> Governor of Aichi Prefecture (1) No. 021569 Appurebo Real Estate Sales Co., Ltd. House Carrier Tokai shop Yubinbango476-0013 Aichi Prefecture Tokai Chuo-cho, 6-267 <仲介>愛知県知事(1)第021569号アップレボ不動産販売(株)ハウスボカン 東海店〒476-0013 愛知県東海市中央町6-267 |