New Homes » Tokai » Aichi Prefecture » Obu
 
| | Aichi Prefecture Obu 愛知県大府市 |
| JR Tokaido Line "Obu" walk 14 minutes JR東海道本線「大府」歩14分 |
| ● ○ ad first appearance properties !!! Supermarket ・ There are many convenience store living area. Nagoya Station direct connection of the JR Tokaido Line "Obu Station" walk about 14 minutes attractive ● ○ ●○広告初登場物件!!! スーパー・コンビニ生活圏内に多数あります.名古屋駅直結のJR東海道本線「大府駅」徒歩約14分も魅力的です●○ |
| Construction housing performance with evaluation, Design house performance with evaluation, Long-term high-quality housing, Solar power system, Parking two Allowed, Immediate Available, LDK18 tatami mats or more, Facing south, System kitchen, Bathroom Dryer, Yang per good, All room storage, 2-story, South balcony, Zenshitsuminami direction, Leafy residential area, IH cooking heater, Dish washing dryer, Walk-in closet, Water filter, City gas, Floor heating 建設住宅性能評価付、設計住宅性能評価付、長期優良住宅、太陽光発電システム、駐車2台可、即入居可、LDK18畳以上、南向き、システムキッチン、浴室乾燥機、陽当り良好、全居室収納、2階建、南面バルコニー、全室南向き、緑豊かな住宅地、IHクッキングヒーター、食器洗乾燥機、ウォークインクロゼット、浄水器、都市ガス、床暖房 |
Features pickup 特徴ピックアップ | | Construction housing performance with evaluation / Design house performance with evaluation / Long-term high-quality housing / Solar power system / Parking two Allowed / Immediate Available / LDK18 tatami mats or more / Facing south / System kitchen / Bathroom Dryer / Yang per good / All room storage / 2-story / South balcony / Zenshitsuminami direction / Leafy residential area / IH cooking heater / Dish washing dryer / Walk-in closet / Water filter / City gas / Floor heating 建設住宅性能評価付 /設計住宅性能評価付 /長期優良住宅 /太陽光発電システム /駐車2台可 /即入居可 /LDK18畳以上 /南向き /システムキッチン /浴室乾燥機 /陽当り良好 /全居室収納 /2階建 /南面バルコニー /全室南向き /緑豊かな住宅地 /IHクッキングヒーター /食器洗乾燥機 /ウォークインクロゼット /浄水器 /都市ガス /床暖房 | Event information イベント情報 | | Open House (Please visitors to direct local) schedule / Every Saturday, Sunday and public holidays time / 10:00 ~ 17:00 オープンハウス(直接現地へご来場ください)日程/毎週土日祝時間/10:00 ~ 17:00 | Price 価格 | | 36,900,000 yen 3690万円 | Floor plan 間取り | | 4LDK 4LDK | Units sold 販売戸数 | | 1 units 1戸 | Total units 総戸数 | | 5 units 5戸 | Land area 土地面積 | | 122.3 sq m (registration) 122.3m2(登記) | Building area 建物面積 | | 108.36 sq m (registration) 108.36m2(登記) | Driveway burden-road 私道負担・道路 | | Nothing, North 6m width 無、北6m幅 | Completion date 完成時期(築年月) | | June 2013 2013年6月 | Address 住所 | | Aichi Prefecture Obu Ebata-cho, 2 愛知県大府市江端町2 | Traffic 交通 | | JR Tokaido Line "Obu" walk 14 minutes JR Tokaido Line "Republic" walk 36 minutes JR taketoyo line "Owarimorioka" walk 36 minutes JR東海道本線「大府」歩14分 JR東海道本線「共和」歩36分 JR武豊線「尾張森岡」歩36分
| Contact お問い合せ先 | | Ltd. Quest TEL: 0800-809-8506 [Toll free] mobile phone ・ Also available from PHS Caller ID is not notified Please contact the "saw SUUMO (Sumo)" If it does not lead, If the real estate company (株)クエストTEL:0800-809-8506【通話料無料】携帯電話・PHSからもご利用いただけます 発信者番号は通知されません 「SUUMO(スーモ)を見た」と問い合わせください つながらない方、不動産会社の方は
| Building coverage, floor area ratio 建ぺい率・容積率 | | 60% ・ Hundred percent 60%・100% | Time residents 入居時期 | | Immediate available 即入居可 | Land of the right form 土地の権利形態 | | Ownership 所有権 | Structure and method of construction 構造・工法 | | Wooden 2-story 木造2階建 | Use district 用途地域 | | One low-rise 1種低層 | Overview and notices その他概要・特記事項 | | Facilities: Public Water Supply, This sewage, City gas, Parking: car space 設備:公営水道、本下水、都市ガス、駐車場:カースペース | Company profile 会社概要 | | <Marketing alliance (agency)> Governor of Aichi Prefecture (3) No. 019113 (Ltd.) Quest Yubinbango461-0005 Nagoya, Aichi Prefecture, Higashi-ku, Higashisakura 1-10-9 <販売提携(代理)>愛知県知事(3)第019113号(株)クエスト〒461-0005 愛知県名古屋市東区東桜1-10-9 |
Local photos, including front road前面道路含む現地写真  Exterior Photos
外観写真
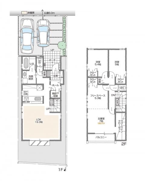
Floor plan間取り図  36,900,000 yen, 4LDK, Land area 122.3 sq m , Building area 108.36 sq m floor plan
3690万円、4LDK、土地面積122.3m2、建物面積108.36m2 間取図
 Kitchen
キッチン
 Living
リビング
Supermarketスーパー  416m to feel campus
フィールキャンパスまで416m
Other introspectionその他内観  Western style room
洋室
Compartment figure区画図  36,900,000 yen, 4LDK, Land area 122.3 sq m , Building area 108.36 sq m compartment view
3690万円、4LDK、土地面積122.3m2、建物面積108.36m2 区画図
Convenience storeコンビニ  STORE100 Obu Ebata the town to shop 339m
STORE100大府江端町店まで339m
 Circle K Obu to the central shop 786m
サークルK大府中央店まで786m
Junior high school中学校  Obu stand Obu 2161m to the West Junior High School
大府市立大府西中学校まで2161m
Primary school小学校  813m to Obu Tateishi Ke Seto elementary school
大府市立石ケ瀬小学校まで813m
Kindergarten ・ Nursery幼稚園・保育園  Obu Tatsuhiiragi mountain to nursery school 783m
大府市立柊山保育園まで783m
Hospital病院  2405m to Aichi Children's Health and Medical Center
あいち小児保健医療総合センターまで2405m
Park公園  528m until Ebata park
江端公園まで528m
Location
|