|
|
Aichi Prefecture Obu
愛知県大府市
|
|
JR Tokaido Line "Republic" walk 19 minutes
JR東海道本線「共和」歩19分
|
|
JR Tokaido Line "Republic" station Walk 19 minutes South-facing sunny solar power system installation housing
JR東海道本線「共和」駅 徒歩19分 南向き日当たり良好太陽光発電システム設置住宅
|
|
Solar power system installation System kitchen Unit bus with bathroom heating dryer Electrical locking smart control keys mounted entrance door EV for outdoor electrical outlet Intercom with color monitor Pair glass Flat 35S corresponding housing
太陽光発電システム設置 システムキッチン 浴室暖房乾燥機付ユニットバス 電気施錠スマートコントロールキー搭載玄関扉 EV用屋外コンセント カラーモニター付インターフォン ペアガラス フラット35S対応住宅
|
Features pickup 特徴ピックアップ | | Solar power system / Facing south / System kitchen / Bathroom Dryer / All room storage / Siemens south road / Face-to-face kitchen / Bathroom 1 tsubo or more / 2-story / All room 6 tatami mats or more / Water filter / City gas 太陽光発電システム /南向き /システムキッチン /浴室乾燥機 /全居室収納 /南側道路面す /対面式キッチン /浴室1坪以上 /2階建 /全居室6畳以上 /浄水器 /都市ガス |
Price 価格 | | 31,800,000 yen 3180万円 |
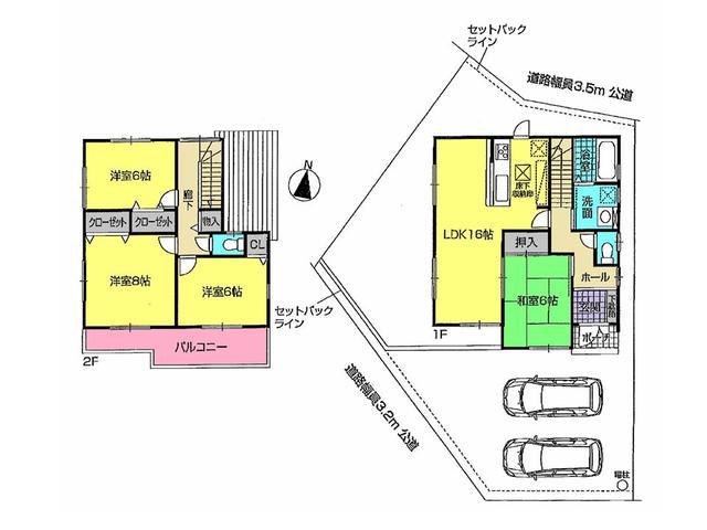
Floor plan 間取り | | 4LDK 4LDK |
Units sold 販売戸数 | | 1 units 1戸 |
Total units 総戸数 | | 1 units 1戸 |
Land area 土地面積 | | 148.09 sq m (measured) 148.09m2(実測) |
Building area 建物面積 | | 99.63 sq m (measured) 99.63m2(実測) |
Driveway burden-road 私道負担・道路 | | Nothing, South 3.2m width, North 3.5m width 無、南3.2m幅、北3.5m幅 |
Completion date 完成時期(築年月) | | April 2014 2014年4月 |
Address 住所 | | Aichi Prefecture Obu Kajita cho 5 愛知県大府市梶田町5 |
Traffic 交通 | | JR Tokaido Line "Republic" walk 19 minutes JR Tokaido Line "Republic of" 8 minutes Republic east nursery walk 5 minutes by bus JR東海道本線「共和」歩19分 JR東海道本線「共和」バス8分共和東保育所歩5分
|
Related links 関連リンク | | [Related Sites of this company] 【この会社の関連サイト】 |
Person in charge 担当者より | | Person in charge of real-estate and building Ishikawa YoshimiShin Age: If you have any questions about looking forties live, If you have any consultation, Please feel free to contact us. 担当者宅建石川 嘉紳年齢:40代お住まい探しに関するご質問、ご相談がございましたら、お気軽にお問い合わせ下さい。 |
Contact お問い合せ先 | | TEL: 0120-289108 [Toll free] Please contact the "saw SUUMO (Sumo)" TEL:0120-289108【通話料無料】「SUUMO(スーモ)を見た」と問い合わせください |
Building coverage, floor area ratio 建ぺい率・容積率 | | 60% ・ 200% 60%・200% |
Time residents 入居時期 | | Consultation 相談 |
Land of the right form 土地の権利形態 | | Ownership 所有権 |
Structure and method of construction 構造・工法 | | Wooden 2-story 木造2階建 |
Use district 用途地域 | | One dwelling 1種住居 |
Other limitations その他制限事項 | | Setback: upon 6.8 sq m , Including set-back area 6.8 sq m in land area セットバック:要6.8m2、土地面積にセットバック面積6.8m2含む |
Overview and notices その他概要・特記事項 | | Contact: Ishikawa YoshimiShin, Facilities: Public Water Supply, This sewage, City gas, Building confirmation number: No. KS113-0110-05076, Parking: car space 担当者:石川 嘉紳、設備:公営水道、本下水、都市ガス、建築確認番号:第KS113-0110-05076号、駐車場:カースペース |
Company profile 会社概要 | | <Marketing alliance (mediated)> Minister of Land, Infrastructure and Transport (6) No. 004224 (Ltd.) Towa House Nagoya Yubinbango468-0836 Nagoya, Aichi Prefecture Tempaku-ku Aikawa 1-34 <販売提携(媒介)>国土交通大臣(6)第004224号(株)藤和ハウス名古屋店〒468-0836 愛知県名古屋市天白区相川1-34 |