New Homes » Tokai » Aichi Prefecture » Okazaki
 
| | Okazaki, Aichi Prefecture 愛知県岡崎市 |
| Meitetsu bus "Takasu" walk 4 minutes 名鉄バス「高須」歩4分 |
| Corresponding to the flat-35S, Year Available, Parking two Allowed, System kitchen, Bathroom Dryer, Super close, Yang per good, Corner lotese-style room, Shaping land, Washbasin with shower, Face-to-face kitchen, Toilet 2 months フラット35Sに対応、年内入居可、駐車2台可、システムキッチン、浴室乾燥機、スーパーが近い、陽当り良好、角地、和室、整形地、シャワー付洗面台、対面式キッチン、トイレ2ヶ |
| Corresponding to the flat-35S, Year Available, Parking two Allowed, System kitchen, Bathroom Dryer, Super close, Yang per good, Corner lotese-style room, Shaping land, Washbasin with shower, Face-to-face kitchen, Toilet 2 places, 2-story, Double-glazing, Underfloor Storage, The window in the bathroom, TV monitor interphone, Ventilation good, City gas フラット35Sに対応、年内入居可、駐車2台可、システムキッチン、浴室乾燥機、スーパーが近い、陽当り良好、角地、和室、整形地、シャワー付洗面台、対面式キッチン、トイレ2ヶ所、2階建、複層ガラス、床下収納、浴室に窓、TVモニタ付インターホン、通風良好、都市ガス |
Features pickup 特徴ピックアップ | | Corresponding to the flat-35S / Year Available / Parking two Allowed / Super close / System kitchen / Bathroom Dryer / Yang per good / Corner lot / Japanese-style room / Shaping land / Washbasin with shower / Face-to-face kitchen / Toilet 2 places / 2-story / Double-glazing / Underfloor Storage / The window in the bathroom / TV monitor interphone / Ventilation good / City gas フラット35Sに対応 /年内入居可 /駐車2台可 /スーパーが近い /システムキッチン /浴室乾燥機 /陽当り良好 /角地 /和室 /整形地 /シャワー付洗面台 /対面式キッチン /トイレ2ヶ所 /2階建 /複層ガラス /床下収納 /浴室に窓 /TVモニタ付インターホン /通風良好 /都市ガス | Event information イベント情報 | | Local guide Board (Please be sure to ask in advance) schedule / During the public time / 9:00 ~ 20:00 in the open from 9 am to 8 pm! Weekday ・ It is being accepted the local preview regardless of Saturday and Sunday. Please feel free to contact us. "House coordinator Division" toll free: 0800-603-7349 現地案内会(事前に必ずお問い合わせください)日程/公開中時間/9:00 ~ 20:00朝9時から夜8時まで営業中!平日・土日問わず現地内覧を受付中です。お気軽にご連絡くださいませ。『ハウスコーディネーター課』通話料無料:0800‐603-7349 | Price 価格 | | 20,900,000 yen ~ 27,900,000 yen 2090万円 ~ 2790万円 | Floor plan 間取り | | 3LDK + S (storeroom) ~ 4LDK + S (storeroom) 3LDK+S(納戸) ~ 4LDK+S(納戸) | Units sold 販売戸数 | | 6 units 6戸 | Total units 総戸数 | | 6 units 6戸 | Land area 土地面積 | | 140.04 sq m ~ 199.75 sq m 140.04m2 ~ 199.75m2 | Building area 建物面積 | | 96.38 sq m ~ 105.3 sq m 96.38m2 ~ 105.3m2 | Completion date 完成時期(築年月) | | December 2013 schedule 2013年12月予定 | Address 住所 | | Under character Okazaki, Aichi Prefecture Fukuoka-cho Takasu 愛知県岡崎市福岡町字下高須 | Traffic 交通 | | Meitetsu bus "Takasu" walk 4 minutes, "observed phase" JR Tokaido Line walk 36 minutes JR Tokaido Line "Okazaki" walk 37 minutes 名鉄バス「高須」歩4分JR東海道本線「相見」歩36分 JR東海道本線「岡崎」歩37分
| Related links 関連リンク | | [Related Sites of this company] 【この会社の関連サイト】 | Person in charge 担当者より | | Person in charge of real-estate and building Inagaki Shingo Age: 20 Daigyokai Experience: Please leave me Plenty of Mikawa west three years! Very hard let me stray to your consultation. Please feel free to contact us in relation to that of real estate. 担当者宅建稲垣 信吾年齢:20代業界経験:3年西三河のことなら私にお任せ下さい!一所懸命お客様のご相談にのらせて頂きます。不動産のことに関してお気軽にご相談ください。 | Contact お問い合せ先 | | TEL: 0800-603-7349 [Toll free] mobile phone ・ Also available from PHS Caller ID is not notified Please contact the "saw SUUMO (Sumo)" If it does not lead, If the real estate company TEL:0800-603-7349【通話料無料】携帯電話・PHSからもご利用いただけます 発信者番号は通知されません 「SUUMO(スーモ)を見た」と問い合わせください つながらない方、不動産会社の方は
| Most price range 最多価格帯 | | 27 million yen (2 units) 2700万円台(2戸) | Building coverage, floor area ratio 建ぺい率・容積率 | | Kenpei rate: 60%, Volume rate of 164% (volume ratio: 1 Building 180.8% Building 2 179.2% Building 3 164.4% 4.5.6 Building 164.8%) 建ペい率:60%、容積率:164%(容積率:1号棟180.8% 2号棟179.2% 3号棟164.4% 4.5.6号棟164.8%) | Time residents 入居時期 | | December 2013 2013年12月 | Land of the right form 土地の権利形態 | | Ownership 所有権 | Structure and method of construction 構造・工法 | | Wooden 2-story 木造2階建 | Use district 用途地域 | | One dwelling 1種住居 | Other limitations その他制限事項 | | Advanced use district, TateHajimeho Article 22 designated area ・ The first kind altitude district 18m 高度利用地区、建基法22条指定区域・第1種高度地区18m | Overview and notices その他概要・特記事項 | | Contact: Inagaki Shingo, Building confirmation number: first H25SHC114578 ~ 114,583 No. 担当者:稲垣 信吾、建築確認番号:第H25SHC114578 ~ 114583号 | Company profile 会社概要 | | <Mediation> Governor of Aichi Prefecture (2) No. 020601 (Corporation) Aichi Prefecture Building Lots and Buildings Transaction Business Association Tokai Real Estate Fair Trade Council member (Ltd.) Property SHOP Nakajitsu House Division Yubinbango444-0831 Okazaki, Aichi Prefecture Hanekita cho 5-6-5 <仲介>愛知県知事(2)第020601号(公社)愛知県宅地建物取引業協会会員 東海不動産公正取引協議会加盟(株)不動産SHOPナカジツ ハウス事業部〒444-0831 愛知県岡崎市羽根北町5-6-5 |
Local photos, including front road前面道路含む現地写真  Local (12 May 2013) Shooting
現地(2013年12月)撮影
Rendering (appearance)完成予想図(外観)  ( 1 Building) Rendering
( 1号棟)完成予想図
Local appearance photo現地外観写真  Local (12 May 2013) Shooting
現地(2013年12月)撮影
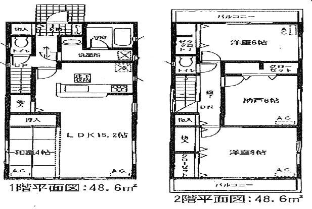
Floor plan間取り図  (1 Building), Price 27,900,000 yen, 4LDK, Land area 140.04 sq m , Building area 97.6 sq m
(1号棟)、価格2790万円、4LDK、土地面積140.04m2、建物面積97.6m2
 (Building 2), Price 27,900,000 yen, 4LDK+S, Land area 140.28 sq m , Building area 97.2 sq m
(2号棟)、価格2790万円、4LDK+S、土地面積140.28m2、建物面積97.2m2
 (3 Building), Price 26,900,000 yen, 4LDK, Land area 140.11 sq m , Building area 96.38 sq m
(3号棟)、価格2690万円、4LDK、土地面積140.11m2、建物面積96.38m2
 (4 Building), Price 22,900,000 yen, 3LDK+S, Land area 161.65 sq m , Building area 105.3 sq m
(4号棟)、価格2290万円、3LDK+S、土地面積161.65m2、建物面積105.3m2
 (5 Building), Price 20,900,000 yen, 3LDK+S, Land area 180.62 sq m , Building area 97.2 sq m
(5号棟)、価格2090万円、3LDK+S、土地面積180.62m2、建物面積97.2m2
 (6 Building), Price 23,900,000 yen, 4LDK+S, Land area 199.75 sq m , Building area 97.2 sq m
(6号棟)、価格2390万円、4LDK+S、土地面積199.75m2、建物面積97.2m2
Livingリビング  Rendering
完成予想図
Bathroom浴室  Rendering
完成予想図
Kitchenキッチン  Rendering
完成予想図
Location
|