New Homes » Tokai » Aichi Prefecture » Toyokawa
 
| | Toyokawa, Aichi Prefecture 愛知県豊川市 |
| JR Iida "Nagayama" walk 10 minutes JR飯田線「長山」歩10分 |
| Modern smart life of the house モダンスマートライフの家 |
| Pre-ground survey, Vibration Control ・ Seismic isolation ・ Earthquake resistant, Year Available, Parking two Allowed, Immediate Available, Energy-saving water heaters, See the mountain, System kitchen, Bathroom Dryer, All room storage, LDK15 tatami mats or more, Or more before road 6m, Corner lotese-style room, Washbasin with shower, Face-to-face kitchen, Security enhancement, Wide balcony, Toilet 2 places, Bathroom 1 tsubo or more, 2-story, South balcony, Warm water washing toilet seat, Nantei, The window in the bathroom, TV monitor interphone, Ventilation good, All living room flooring, Walk-in closet, Water filter, Living stairs, All rooms are two-sided lighting, Flat terrain 地盤調査済、制震・免震・耐震、年内入居可、駐車2台可、即入居可、省エネ給湯器、山が見える、システムキッチン、浴室乾燥機、全居室収納、LDK15畳以上、前道6m以上、角地、和室、シャワー付洗面台、対面式キッチン、セキュリティ充実、ワイドバルコニー、トイレ2ヶ所、浴室1坪以上、2階建、南面バルコニー、温水洗浄便座、南庭、浴室に窓、TVモニタ付インターホン、通風良好、全居室フローリング、ウォークインクロゼット、浄水器、リビング階段、全室2面採光、平坦地 |
Features pickup 特徴ピックアップ | | Pre-ground survey / Vibration Control ・ Seismic isolation ・ Earthquake resistant / Year Available / Parking two Allowed / Immediate Available / Energy-saving water heaters / See the mountain / System kitchen / Bathroom Dryer / All room storage / LDK15 tatami mats or more / Or more before road 6m / Corner lot / Japanese-style room / Washbasin with shower / Face-to-face kitchen / Security enhancement / Wide balcony / Toilet 2 places / Bathroom 1 tsubo or more / 2-story / South balcony / Warm water washing toilet seat / Nantei / The window in the bathroom / TV monitor interphone / Ventilation good / All living room flooring / Walk-in closet / Water filter / Living stairs / All rooms are two-sided lighting / Flat terrain 地盤調査済 /制震・免震・耐震 /年内入居可 /駐車2台可 /即入居可 /省エネ給湯器 /山が見える /システムキッチン /浴室乾燥機 /全居室収納 /LDK15畳以上 /前道6m以上 /角地 /和室 /シャワー付洗面台 /対面式キッチン /セキュリティ充実 /ワイドバルコニー /トイレ2ヶ所 /浴室1坪以上 /2階建 /南面バルコニー /温水洗浄便座 /南庭 /浴室に窓 /TVモニタ付インターホン /通風良好 /全居室フローリング /ウォークインクロゼット /浄水器 /リビング階段 /全室2面採光 /平坦地 | Price 価格 | | 27,900,000 yen 2790万円 | Floor plan 間取り | | 4LDK 4LDK | Units sold 販売戸数 | | 1 units 1戸 | Total units 総戸数 | | 2 units 2戸 | Land area 土地面積 | | 142.42 sq m (measured) 142.42m2(実測) | Building area 建物面積 | | 101.04 sq m 101.04m2 | Driveway burden-road 私道負担・道路 | | Road width: 6.0m, Asphaltic pavement 道路幅:6.0m、アスファルト舗装 | Completion date 完成時期(築年月) | | 2009 in late January 2009年1月下旬 | Address 住所 | | Toyokawa, Aichi Prefecture Kaminagayama-cho, Konan Kuchinohara 61 No. 21 愛知県豊川市上長山町小南口原61番21 | Traffic 交通 | | JR Iida "Nagayama" walk 10 minutes JR飯田線「長山」歩10分
| Related links 関連リンク | | [Related Sites of this company] 【この会社の関連サイト】 | Contact お問い合せ先 | | Grand Duke House Co., Ltd. Head Office TEL: 0800-603-7635 [Toll free] mobile phone ・ Also available from PHS Caller ID is not notified Please contact the "saw SUUMO (Sumo)" If it does not lead, If the real estate company タイコウハウス(株)本社TEL:0800-603-7635【通話料無料】携帯電話・PHSからもご利用いただけます 発信者番号は通知されません 「SUUMO(スーモ)を見た」と問い合わせください つながらない方、不動産会社の方は
| Time residents 入居時期 | | Immediate available 即入居可 | Land of the right form 土地の権利形態 | | Ownership 所有権 | Structure and method of construction 構造・工法 | | Wooden 2-story (framing method) 木造2階建(軸組工法) | Use district 用途地域 | | Industry 工業 | Land category 地目 | | Residential land 宅地 | Company profile 会社概要 | | <Seller> Minister of Land, Infrastructure and Transport (2) Grand Duke House Co., Ltd. headquarters Yubinbango441-8073 Toyohashi, Aichi Prefecture Osaki-cho, No. 007461-shaped north exit 53 <売主>国土交通大臣(2)第007461号タイコウハウス(株)本社〒441-8073 愛知県豊橋市大崎町字北出口53 |
Local appearance photo現地外観写真  Simple modern cool appearance.
シンプルモダンなカッコイイ佇まいです。
Livingリビング  Dining and Japanese-style room in front of the face-to-face kitchen, In addition is the LDK there spread to the living room.
対面キッチンの前にダイニングと和室、更にはリビングと広がりあるLDKです。
Bathroom浴室  It is a popular push water washing of INAX. Ease of use is outstanding.
INAXの人気のプッシュ水洗です。使い易さ抜群です。
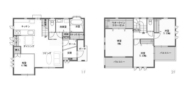
Floor plan間取り図  (A section), Price 27,900,000 yen, 4LDK, Land area 142.42 sq m , Building area 101.04 sq m
(A区画)、価格2790万円、4LDK、土地面積142.42m2、建物面積101.04m2
Livingリビング  Flow line is perfect for the family and from the entrance hall to the living room.
玄関ホールからリビングへと家族のための動線がバッチリです。
Kitchenキッチン  Kitchen layout overlooking the whole room.
部屋全体が見渡せるキッチン配置。
Non-living roomリビング以外の居室  WIC of 3 pledge is in the bedroom. Only the west side of the wall instead of attaching the cross has become the accent.
寝室には3帖のWIC。西側の壁だけクロスを貼り替えてアクセントになっています。
Location
|