New Homes » Tokai » Aichi Prefecture » Toyokawa
 
| | Toyokawa, Aichi Prefecture 愛知県豊川市 |
| Nagoyahonsen Meitetsu "Ina" walk 16 minutes 名鉄名古屋本線「伊奈」歩16分 |
| Screen door, With lighting equipment, Pre-ground survey, Parking two Allowed, Immediate Available, 2 along the line more accessible, Land 50 square meters or more, Energy-saving water heaters, System kitchen, Flat to the station, A quiet residential area, LDK15 tatami mats or more 網戸、照明器具付き、地盤調査済、駐車2台可、即入居可、2沿線以上利用可、土地50坪以上、省エネ給湯器、システムキッチン、駅まで平坦、閑静な住宅地、LDK15畳以上 |
| Screen door, With lighting equipment, Pre-ground survey, Parking two Allowed, Immediate Available, 2 along the line more accessible, Land 50 square meters or more, Energy-saving water heaters, System kitchen, Flat to the station, A quiet residential area, LDK15 tatami mats or more, Around traffic fewer, Or more before road 6mese-style room, Garden more than 10 square meters, Washbasin with shower, Face-to-face kitchen, Toilet 2 places, Bathroom 1 tsubo or more, 2-story, South balcony, Double-glazing, Otobasu, Warm water washing toilet seat, Nantei, Underfloor Storage, The window in the bathroom, All rooms are two-sided lighting, Flat terrain, Development subdivision in 網戸、照明器具付き、地盤調査済、駐車2台可、即入居可、2沿線以上利用可、土地50坪以上、省エネ給湯器、システムキッチン、駅まで平坦、閑静な住宅地、LDK15畳以上、周辺交通量少なめ、前道6m以上、和室、庭10坪以上、シャワー付洗面台、対面式キッチン、トイレ2ヶ所、浴室1坪以上、2階建、南面バルコニー、複層ガラス、オートバス、温水洗浄便座、南庭、床下収納、浴室に窓、全室2面採光、平坦地、開発分譲地内 |
Features pickup 特徴ピックアップ | | Pre-ground survey / Parking three or more possible / Immediate Available / 2 along the line more accessible / Land 50 square meters or more / Energy-saving water heaters / Facing south / System kitchen / Yang per good / Flat to the station / Siemens south road / A quiet residential area / LDK15 tatami mats or more / Around traffic fewer / Or more before road 6m / Japanese-style room / Shaping land / Garden more than 10 square meters / Washbasin with shower / Face-to-face kitchen / Toilet 2 places / Bathroom 1 tsubo or more / 2-story / South balcony / Double-glazing / Otobasu / Warm water washing toilet seat / Nantei / Underfloor Storage / The window in the bathroom / TV monitor interphone / Mu front building / Or more ceiling height 2.5m / Storeroom / All rooms are two-sided lighting / Flat terrain / Development subdivision in 地盤調査済 /駐車3台以上可 /即入居可 /2沿線以上利用可 /土地50坪以上 /省エネ給湯器 /南向き /システムキッチン /陽当り良好 /駅まで平坦 /南側道路面す /閑静な住宅地 /LDK15畳以上 /周辺交通量少なめ /前道6m以上 /和室 /整形地 /庭10坪以上 /シャワー付洗面台 /対面式キッチン /トイレ2ヶ所 /浴室1坪以上 /2階建 /南面バルコニー /複層ガラス /オートバス /温水洗浄便座 /南庭 /床下収納 /浴室に窓 /TVモニタ付インターホン /前面棟無 /天井高2.5m以上 /納戸 /全室2面採光 /平坦地 /開発分譲地内 | Price 価格 | | 25,800,000 yen 2580万円 | Floor plan 間取り | | 4LDK + S (storeroom) 4LDK+S(納戸) | Units sold 販売戸数 | | 1 units 1戸 | Total units 総戸数 | | 3 units 3戸 | Land area 土地面積 | | 177.7 sq m 177.7m2 | Building area 建物面積 | | 104.35 sq m 104.35m2 | Driveway burden-road 私道負担・道路 | | Nothing, South 6m width 無、南6m幅 | Completion date 完成時期(築年月) | | March 2013 2013年3月 | Address 住所 | | Toyokawa, Aichi Prefecture Ina Machisa WakiGen 626-63 愛知県豊川市伊奈町佐脇原626-63 | Traffic 交通 | | Nagoyahonsen Meitetsu "Ina" walk 16 minutes Nagoyahonsen Meitetsu "Odabuchi" walk 20 minutes 名鉄名古屋本線「伊奈」歩16分 名鉄名古屋本線「小田渕」歩20分
| Related links 関連リンク | | [Related Sites of this company] 【この会社の関連サイト】 | Contact お問い合せ先 | | TEL: 0800-602-6534 [Toll free] mobile phone ・ Also available from PHS Caller ID is not notified Please contact the "saw SUUMO (Sumo)" If it does not lead, If the real estate company TEL:0800-602-6534【通話料無料】携帯電話・PHSからもご利用いただけます 発信者番号は通知されません 「SUUMO(スーモ)を見た」と問い合わせください つながらない方、不動産会社の方は
| Building coverage, floor area ratio 建ぺい率・容積率 | | 60% ・ 200% 60%・200% | Time residents 入居時期 | | Immediate available 即入居可 | Land of the right form 土地の権利形態 | | Ownership 所有権 | Structure and method of construction 構造・工法 | | Wooden 2-story (framing method) 木造2階建(軸組工法) | Use district 用途地域 | | One dwelling 1種住居 | Overview and notices その他概要・特記事項 | | Facilities: Public Water Supply, Individual septic tank, Individual LPG, Parking: car space 設備:公営水道、個別浄化槽、個別LPG、駐車場:カースペース | Company profile 会社概要 | | <Mediation> Governor of Aichi Prefecture (1) pallet House Co., No. 021959 Yubinbango440-0012 Toyohashi, Aichi Prefecture Higashiodakano 4-17-8 <仲介>愛知県知事(1)第021959号パレットハウス(株)〒440-0012 愛知県豊橋市東小鷹野4-17―8 |
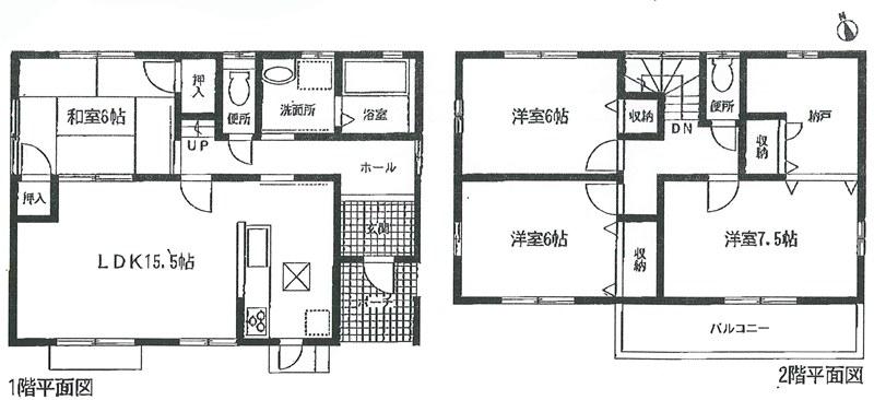
Floor plan間取り図  25,800,000 yen, 4LDK + S (storeroom), Land area 177.7 sq m , Building area 104.35 sq m
2580万円、4LDK+S(納戸)、土地面積177.7m2、建物面積104.35m2
Local appearance photo現地外観写真  Local (May 2013) Shooting
現地(2013年5月)撮影
Livingリビング  Local (May 2013) Shooting
現地(2013年5月)撮影
Bathroom浴室  Room (May 2013) Shooting
室内(2013年5月)撮影
Kitchenキッチン  Room (May 2013) Shooting
室内(2013年5月)撮影
Non-living roomリビング以外の居室  Room (May 2013) Shooting
室内(2013年5月)撮影
Receipt収納  Room (May 2013) Shooting
室内(2013年5月)撮影
Toiletトイレ  Room (May 2013) Shooting
室内(2013年5月)撮影
Location
|