New Homes » Tokai » Aichi Prefecture » Toyokawa
 
| | Toyokawa, Aichi Prefecture 愛知県豊川市 |
| Community Bus "Aichimito" walk 9 minutes コミュニティバス「愛知御津」歩9分 |
| Corresponding to the flat-35S, Parking two Allowed, System kitchen, Washbasin with shower, Toilet 2 places, 2-story, 2 or more sides balcony, Double-glazing, Underfloor Storage, The window in the bathroom, TV monitor interphone フラット35Sに対応、駐車2台可、システムキッチン、シャワー付洗面台、トイレ2ヶ所、2階建、2面以上バルコニー、複層ガラス、床下収納、浴室に窓、TVモニタ付インターホン |
| Corresponding to the flat-35S, Parking two Allowed, System kitchen, Washbasin with shower, Toilet 2 places, 2-story, 2 or more sides balcony, Double-glazing, Underfloor Storage, The window in the bathroom, TV monitor interphone, City gas フラット35Sに対応、駐車2台可、システムキッチン、シャワー付洗面台、トイレ2ヶ所、2階建、2面以上バルコニー、複層ガラス、床下収納、浴室に窓、TVモニタ付インターホン、都市ガス |
Features pickup 特徴ピックアップ | | Corresponding to the flat-35S / Parking two Allowed / System kitchen / Washbasin with shower / Toilet 2 places / 2-story / 2 or more sides balcony / Double-glazing / Underfloor Storage / The window in the bathroom / TV monitor interphone / City gas フラット35Sに対応 /駐車2台可 /システムキッチン /シャワー付洗面台 /トイレ2ヶ所 /2階建 /2面以上バルコニー /複層ガラス /床下収納 /浴室に窓 /TVモニタ付インターホン /都市ガス | Event information イベント情報 | | Local guide Board (Please be sure to ask in advance) schedule / During the public time / 9:00 ~ 20:00 in the open from 9 am to 8 pm! Weekday ・ It is being accepted the local preview regardless of Saturday and Sunday. Please feel free to contact us. "House coordinator Division" toll free: 0800-603-7349 現地案内会(事前に必ずお問い合わせください)日程/公開中時間/9:00 ~ 20:00朝9時から夜8時まで営業中!平日・土日問わず現地内覧を受付中です。お気軽にご連絡くださいませ。『ハウスコーディネーター課』通話料無料:0800‐603-7349 | Price 価格 | | 20,900,000 yen ~ 23,900,000 yen 2090万円 ~ 2390万円 | Floor plan 間取り | | 3LDK + S (storeroom) ・ 4LDK 3LDK+S(納戸)・4LDK | Units sold 販売戸数 | | 4 units 4戸 | Total units 総戸数 | | 4 units 4戸 | Land area 土地面積 | | 108.98 sq m ~ 127.5 sq m 108.98m2 ~ 127.5m2 | Building area 建物面積 | | 91.12 sq m ~ 96.79 sq m 91.12m2 ~ 96.79m2 | Completion date 完成時期(築年月) | | January 2014 will 2014年1月予定 | Address 住所 | | Toyokawa, Aichi Prefecture Tameto cho Shiiki 愛知県豊川市為当町椎木 | Traffic 交通 | | Community Bus "Aichimito" walk 9 minutes JR Tokaido Line "Aichimito" walk 9 minutes Nagoyahonsen Meitetsu "Odabuchi" walk 40 minutes コミュニティバス「愛知御津」歩9分JR東海道本線「愛知御津」歩9分 名鉄名古屋本線「小田渕」歩40分
| Related links 関連リンク | | [Related Sites of this company] 【この会社の関連サイト】 | Person in charge 担当者より | | Person in charge of real-estate and building Inagaki Shingo Age: 20 Daigyokai Experience: Please leave me Plenty of Mikawa west three years! Very hard let me stray to your consultation. Please feel free to contact us in relation to that of real estate. 担当者宅建稲垣 信吾年齢:20代業界経験:3年西三河のことなら私にお任せ下さい!一所懸命お客様のご相談にのらせて頂きます。不動産のことに関してお気軽にご相談ください。 | Contact お問い合せ先 | | TEL: 0800-603-7349 [Toll free] mobile phone ・ Also available from PHS Caller ID is not notified Please contact the "saw SUUMO (Sumo)" If it does not lead, If the real estate company TEL:0800-603-7349【通話料無料】携帯電話・PHSからもご利用いただけます 発信者番号は通知されません 「SUUMO(スーモ)を見た」と問い合わせください つながらない方、不動産会社の方は
| Most price range 最多価格帯 | | 22 million yen (2 units) 2200万円台(2戸) | Building coverage, floor area ratio 建ぺい率・容積率 | | Kenpei rate: 60%, Volume ratio: 200% 建ペい率:60%、容積率:200% | Time residents 入居時期 | | January 2014 will 2014年1月予定 | Land of the right form 土地の権利形態 | | Ownership 所有権 | Structure and method of construction 構造・工法 | | Wooden 2-story 木造2階建 | Use district 用途地域 | | One dwelling 1種住居 | Other limitations その他制限事項 | | TateHajimeho Article 22 designated area 建基法22条指定区域 | Overview and notices その他概要・特記事項 | | Contact: Inagaki Shingo, Building confirmation number: No. H25SHC117632, No. 35, No. 37, No. 38 担当者:稲垣 信吾、建築確認番号:H25SHC117632号、35号、37号、38号 | Company profile 会社概要 | | <Mediation> Governor of Aichi Prefecture (2) No. 020601 (Corporation) Aichi Prefecture Building Lots and Buildings Transaction Business Association Tokai Real Estate Fair Trade Council member (Ltd.) Property SHOP Nakajitsu House Division Yubinbango444-0831 Okazaki, Aichi Prefecture Hanekita cho 5-6-5 <仲介>愛知県知事(2)第020601号(公社)愛知県宅地建物取引業協会会員 東海不動産公正取引協議会加盟(株)不動産SHOPナカジツ ハウス事業部〒444-0831 愛知県岡崎市羽根北町5-6-5 |
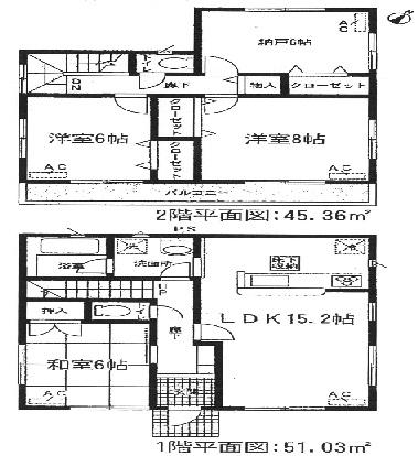
Floor plan間取り図  (1 Building), Price 20,900,000 yen, 3LDK+S, Land area 127.5 sq m , Building area 91.12 sq m
(1号棟)、価格2090万円、3LDK+S、土地面積127.5m2、建物面積91.12m2
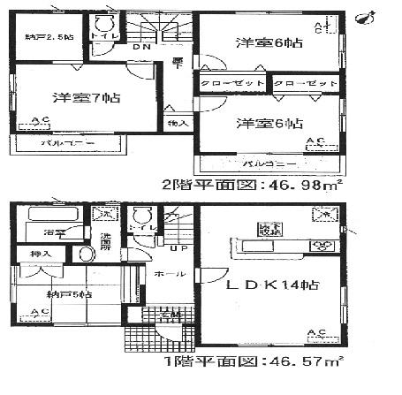
 (Building 2), Price 22,900,000 yen, 3LDK+S, Land area 113.25 sq m , Building area 96.39 sq m
(2号棟)、価格2290万円、3LDK+S、土地面積113.25m2、建物面積96.39m2
 (3 Building), Price 23,900,000 yen, 4LDK, Land area 108.98 sq m , Building area 96.79 sq m
(3号棟)、価格2390万円、4LDK、土地面積108.98m2、建物面積96.79m2
 (4 Building), Price 22,900,000 yen, 3LDK+S, Land area 113.53 sq m , Building area 93.55 sq m
(4号棟)、価格2290万円、3LDK+S、土地面積113.53m2、建物面積93.55m2
Location
|