New Homes » Tokai » Aichi Prefecture » Toyota City
 
| | Toyota City, Aichi Prefecture 愛知県豊田市 |
| Mikawa Meitetsu "Takemura" walk 16 minutes 名鉄三河線「竹村」歩16分 |
Local guide map 現地案内図 | | Local guide map 現地案内図 | Features pickup 特徴ピックアップ | | Measures to conserve energy / Long-term high-quality housing / Corresponding to the flat-35S / Solar power system / Pre-ground survey / Parking three or more possible / LDK20 tatami mats or more / Fiscal year Available / Energy-saving water heaters / It is close to the city / System kitchen / Bathroom Dryer / Yang per good / All room storage / Flat to the station / Siemens south road / A quiet residential area / Or more before road 6m / Japanese-style room / Washbasin with shower / Face-to-face kitchen / Toilet 2 places / Bathroom 1 tsubo or more / 2-story / South balcony / Warm water washing toilet seat / Nantei / The window in the bathroom / TV monitor interphone / Ventilation good / Dish washing dryer / Walk-in closet / Or more ceiling height 2.5m / Water filter / City gas / Flat terrain / Floor heating / terrace 省エネルギー対策 /長期優良住宅 /フラット35Sに対応 /太陽光発電システム /地盤調査済 /駐車3台以上可 /LDK20畳以上 /年度内入居可 /省エネ給湯器 /市街地が近い /システムキッチン /浴室乾燥機 /陽当り良好 /全居室収納 /駅まで平坦 /南側道路面す /閑静な住宅地 /前道6m以上 /和室 /シャワー付洗面台 /対面式キッチン /トイレ2ヶ所 /浴室1坪以上 /2階建 /南面バルコニー /温水洗浄便座 /南庭 /浴室に窓 /TVモニタ付インターホン /通風良好 /食器洗乾燥機 /ウォークインクロゼット /天井高2.5m以上 /浄水器 /都市ガス /平坦地 /床暖房 /テラス | Event information イベント情報 | | (Please be sure to ask in advance) time / 9:00 ~ 17:00 (事前に必ずお問い合わせください)時間/9:00 ~ 17:00 | Property name 物件名 | | Sala Garden Takemoto-cho サーラガーデン竹元町 | Price 価格 | | 42,300,000 yen ・ 42,800,000 yen 4230万円・4280万円 | Floor plan 間取り | | 4LDK 4LDK | Units sold 販売戸数 | | 2 units 2戸 | Total units 総戸数 | | 2 units 2戸 | Land area 土地面積 | | 199.68 sq m ・ 212.8 sq m (60.40 tsubo ・ 64.37 tsubo) (measured) 199.68m2・212.8m2(60.40坪・64.37坪)(実測) | Building area 建物面積 | | 122.13 sq m ・ 124.25 sq m (36.94 tsubo ・ 37.58 tsubo) (measured) 122.13m2・124.25m2(36.94坪・37.58坪)(実測) | Completion date 完成時期(築年月) | | 2013 late October 2013年10月下旬 | Address 住所 | | Toyota City, Aichi Prefecture Takemoto-cho, Oda 31 No. 3 愛知県豊田市竹元町小田31番3他 | Traffic 交通 | | Mikawa Meitetsu "Takemura" walk 16 minutes 名鉄三河線「竹村」歩16分
| Related links 関連リンク | | [Related Sites of this company] 【この会社の関連サイト】 | Contact お問い合せ先 | | Sala Housing Co., Ltd. Toyota sales office TEL: 0800-603-1814 [Toll free] mobile phone ・ Also available from PHS Caller ID is not notified Please contact the "saw SUUMO (Sumo)" If it does not lead, If the real estate company サーラ住宅(株)豊田営業所TEL:0800-603-1814【通話料無料】携帯電話・PHSからもご利用いただけます 発信者番号は通知されません 「SUUMO(スーモ)を見た」と問い合わせください つながらない方、不動産会社の方は
| Most price range 最多価格帯 | | 42 million yen (2 units) 4200万円台(2戸) | Building coverage, floor area ratio 建ぺい率・容積率 | | Building coverage: 50%, Volume of 80% 建蔽率:50%、容積率80% | Time residents 入居時期 | | 1 month after the contract 契約後1ヶ月 | Land of the right form 土地の権利形態 | | Ownership 所有権 | Use district 用途地域 | | One low-rise 1種低層 | Land category 地目 | | Residential land 宅地 | Overview and notices その他概要・特記事項 | | Building confirmation number: No. KS113-0110-02202 建築確認番号:第KS113-0110-02202号 | Company profile 会社概要 | | <Seller> Minister of Land, Infrastructure and Transport (10) No. 002 744 (Company) Central Real Estate Association Tokai Real Estate Fair Trade Council member Sala residential Co. Toyota sales office Yubinbango471-0832 Toyota City, Aichi Prefecture Maruyama-cho, 3-48-1 <売主>国土交通大臣(10)第002744号(社)中部不動産協会会員 東海不動産公正取引協議会加盟サーラ住宅(株)豊田営業所〒471-0832 愛知県豊田市丸山町3-48-1 |
Local appearance photo現地外観写真  Local (August 2013) Shooting
現地(2013年8月)撮影
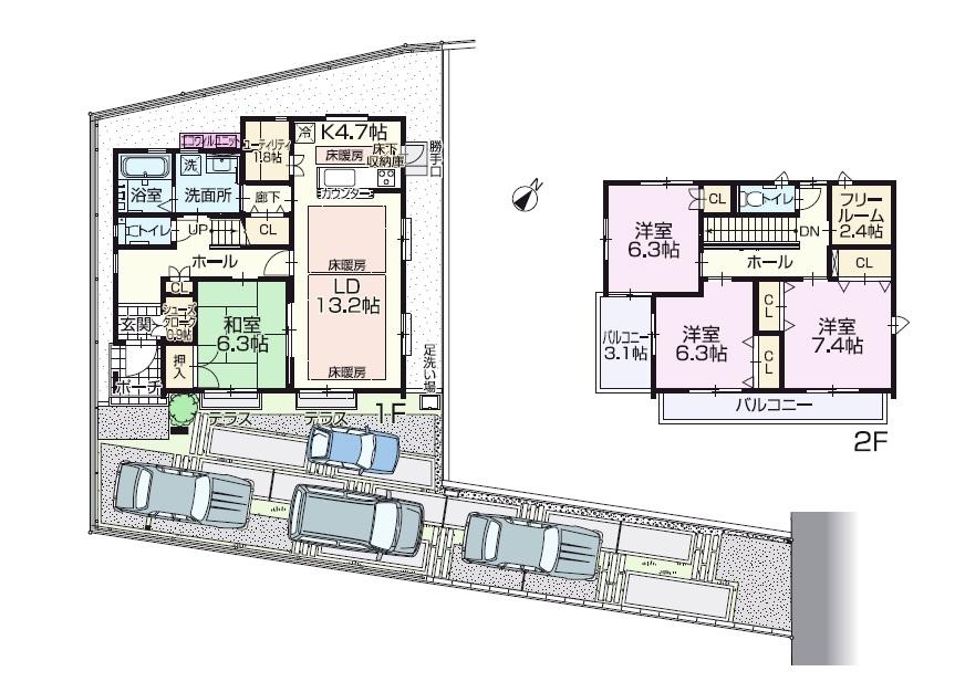
Floor plan間取り図  (No.2), Price 42,800,000 yen, 4LDK, Land area 199.68 sq m , Building area 124.25 sq m
(No.2)、価格4280万円、4LDK、土地面積199.68m2、建物面積124.25m2
The entire compartment Figure全体区画図  Compartment figure
区画図
 Local guide map
現地案内図
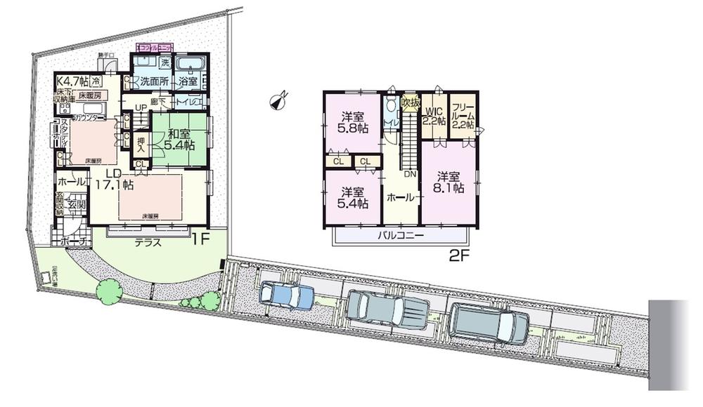
Floor plan間取り図  (No.3), Price 42,300,000 yen, 4LDK, Land area 212.8 sq m , Building area 122.13 sq m
(No.3)、価格4230万円、4LDK、土地面積212.8m2、建物面積122.13m2
Location
|