|
|
Toyota City, Aichi Prefecture
愛知県豊田市
|
|
Meitetsu bus "Maruyama-cho 6-chome" walk 9 minutes
名鉄バス「丸山町六丁目」歩9分
|
|
■ Uptown walk to the elementary school about 14 minutes ■ Dragon walk about 32 minutes until junior high school ■ About a 10-minute walk from Maruyama children Garden ■ Uptown walk about 13 minutes to children Garden ■ About a 20-minute walk from the Dmitrievich uptown store ■ Apita walk from Motomachi Toyota shop
■山之手小学校まで徒歩約14分■竜神中学校まで徒歩約32分■丸山こども園まで徒歩約10分■山之手こども園まで徒歩約13分■ドミー山之手店まで徒歩約20分■アピタ豊田元町店まで徒歩
|
|
Parking two Allowed, System kitchen, Face-to-face kitchen, All room 6 tatami mats or more, It is close to the city, Super close, Corresponding to the flat-35S, Year Available, 2 along the line more accessibleese-style room, Washbasin with shower, Toilet 2 places, 2-story, 2 or more sides balcony, Double-glazing, Warm water washing toilet seat, Underfloor Storage, The window in the bathroom, TV monitor interphone, City gas
駐車2台可、システムキッチン、対面式キッチン、全居室6畳以上、市街地が近い、スーパーが近い、フラット35Sに対応、年内入居可、2沿線以上利用可、和室、シャワー付洗面台、トイレ2ヶ所、2階建、2面以上バルコニー、複層ガラス、温水洗浄便座、床下収納、浴室に窓、TVモニタ付インターホン、都市ガス
|
Features pickup 特徴ピックアップ | | Corresponding to the flat-35S / Year Available / Parking two Allowed / 2 along the line more accessible / Super close / It is close to the city / System kitchen / Japanese-style room / Washbasin with shower / Face-to-face kitchen / Toilet 2 places / 2-story / 2 or more sides balcony / Double-glazing / Warm water washing toilet seat / Underfloor Storage / The window in the bathroom / TV monitor interphone / All room 6 tatami mats or more / City gas フラット35Sに対応 /年内入居可 /駐車2台可 /2沿線以上利用可 /スーパーが近い /市街地が近い /システムキッチン /和室 /シャワー付洗面台 /対面式キッチン /トイレ2ヶ所 /2階建 /2面以上バルコニー /複層ガラス /温水洗浄便座 /床下収納 /浴室に窓 /TVモニタ付インターホン /全居室6畳以上 /都市ガス |
Price 価格 | | 27,800,000 yen 2780万円 |
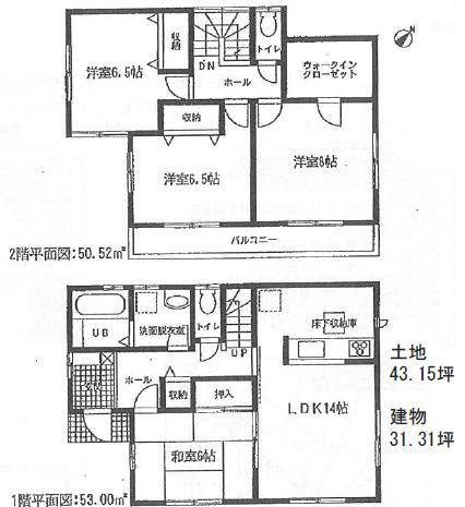
Floor plan 間取り | | 4LDK 4LDK |
Units sold 販売戸数 | | 1 units 1戸 |
Total units 総戸数 | | 2 units 2戸 |
Land area 土地面積 | | 143.86 sq m (43.51 tsubo) (Registration) 143.86m2(43.51坪)(登記) |
Building area 建物面積 | | 103.52 sq m (31.31 tsubo) (Registration) 103.52m2(31.31坪)(登記) |
Driveway burden-road 私道負担・道路 | | Nothing, Southeast 5.4m width (contact the road width 3.5m) 無、南東5.4m幅(接道幅3.5m) |
Completion date 完成時期(築年月) | | October 2013 2013年10月 |
Address 住所 | | Toyota City, Aichi Prefecture Midorigaoka 2 愛知県豊田市緑ケ丘2 |
Traffic 交通 | | Meitetsu bus "Maruyama-cho 6-chome" walk 9 minutes Aichi circular railway "New Uwagoromo" walk 15 minutes Mikawa Meitetsu "Uwagoromo" walk 19 minutes 名鉄バス「丸山町六丁目」歩9分愛知環状鉄道「新上挙母」歩15分 名鉄三河線「上挙母」歩19分
|
Related links 関連リンク | | [Related Sites of this company] 【この会社の関連サイト】 |
Person in charge 担当者より | | Person in charge of real-estate and building Soichi Kojiro Age: 30 Daigyokai Experience: 7 years real estate SHOP Nakajitsu we have served as the Toyota Uwagoromo store manager, Kojiro is (Institute of Technology). Order to fulfill the customer's wish, In all sincerity we are your correspondence is not. Please, Real estate of your worries, please contact us to Nakajitsu !! 担当者宅建神代壮一年齢:30代業界経験:7年不動産SHOPナカジツトヨタ上挙母店の店長を務めております、神代(コウダイ)です。お客様のご希望を叶える為、誠心誠意ご対応させていただいております。ぜひ、不動産のお悩みはナカジツへご相談ください!! |
Contact お問い合せ先 | | TEL: 0800-805-5803 [Toll free] mobile phone ・ Also available from PHS Caller ID is not notified Please contact the "saw SUUMO (Sumo)" If it does not lead, If the real estate company TEL:0800-805-5803【通話料無料】携帯電話・PHSからもご利用いただけます 発信者番号は通知されません 「SUUMO(スーモ)を見た」と問い合わせください つながらない方、不動産会社の方は
|
Building coverage, floor area ratio 建ぺい率・容積率 | | 60% ・ 200% 60%・200% |
Time residents 入居時期 | | Consultation 相談 |
Land of the right form 土地の権利形態 | | Ownership 所有権 |
Structure and method of construction 構造・工法 | | Wooden 2-story (framing method) 木造2階建(軸組工法) |
Construction 施工 | | (Ltd.) one construction (株)一建設 |
Use district 用途地域 | | Semi-industrial 準工業 |
Overview and notices その他概要・特記事項 | | Contact: Soichi Kojiro, Building confirmation number: first KS113-1310-00964, Parking: car space 担当者:神代壮一、建築確認番号:第KS113-1310-00964、駐車場:カースペース |
Company profile 会社概要 | | <Mediation> Governor of Aichi Prefecture (2) No. 020601 (Ltd.) Property SHOP Nakajitsu Toyoda Uwagoromo shop Yubinbango471-0851 Toyota City, Aichi Prefecture trees cho 5-70 <仲介>愛知県知事(2)第020601号(株)不動産SHOPナカジツ豊田上挙母店〒471-0851 愛知県豊田市樹木町5-70 |