New Homes » Kanto » Chiba Prefecture » Inage


Chiba, Chiba Prefecture Inage-ku
JR Sobu Line Rapid "Inage" walk 15 minutes
2014 / 1 / 18 (Sat) ・ 19 (Sun) prior guidance Board [Appointment] Held decision! JR Sobu Line Rapid stop "Inage" station a 15-minute walk. 4 minutes to the "Chiba" station, "Tokyo" 35 minutes of comfortable access to the station!
■ From JR Sobu Line "Inage" station to "Otemachi" station 36 minutes, "Kasumigaseki" 40 minutes to the station, Nimble footwork of 47 minutes to "Shinagawa" station! ■ Located in the south tiers led to the beautiful tree-lined street. It was also considered to sunshine, Detached city block in the complex development ■ Around the kitchen and dining, I was raised to draw a live ease, Offer a wide variety of plan ■ A short walk from the kindergarten 4 minutes, Good location, a 5-minute walk to the park. Particularly recommended living environment for child-rearing generation ■ Now click on the "material to charge (Free) button" in the upper right is the person who would like to know more!
Local guide map
Local guide map
Features pickup
Measures to conserve energy / Pre-ground survey / Vibration Control ・ Seismic isolation ・ Earthquake resistant / Seismic fit / LDK18 tatami mats or more / Fiscal year Available / Energy-saving water heaters / It is close to the city / Facing south / System kitchen / Bathroom Dryer / Yang per good / All room storage / Siemens south road / A quiet residential area / LDK15 tatami mats or more / Corner lot / Japanese-style room / Shaping land / garden / Washbasin with shower / Face-to-face kitchen / Security enhancement / Toilet 2 places / 2-story / Southeast direction / South balcony / Zenshitsuminami direction / Otobasu / Warm water washing toilet seat / Nantei / Underfloor Storage / The window in the bathroom / TV monitor interphone / High-function toilet / Leafy residential area / Urban neighborhood / Ventilation good / Southwestward / Dish washing dryer / Walk-in closet / water filter / Living stairs / Storeroom / Located on a hill / roof balcony / Attic storage / Floor heating / terrace
Event information
■ January 18, 2014 (Saturday) ・ 19 (Sunday) in advance guidance Board [Appointment] Held decision! ! January 18 (Saturday) ・ 19 days from (day), It became a carry where I am allowed to finally hold a pre-meeting information. So you can see the actual building as a model house, Please consider all means on this occasion. Because there is only to your seat, I have been to the reservation system. Since reservations available at the toll-free, Please feel free to contact us. ■ Document request being accepted
Property name
Mitsui detached Fine coat Inage Konakadai First stage / Notice advertising
Price
Undecided
Floor plan
4LDK
Units sold
Undecided
Total units
28 units
Land area
110.04 sq m ~ 115.25 sq m
Building area
99.71 sq m ~ 119.5 sq m
Driveway burden-road
Road: about 5m ~ 6m asphalt pavement, Driveway burden: No, Other cleaning facility 3.91 sq m × 1 / 14 Yes
Completion date
January 2014 late schedule
Address
Chiba City, Chiba Prefecture Inage Konakadai 5-830-12
Traffic
JR Sobu Line Rapid "Inage" walk 15 minutes
JR Sobu Line "Inage" walk 15 minutes
Related links
[Related Sites of this company]
Contact
Mitsui Fudosan Residential Co., Ltd. <Fine coat Inage Konakadai> Information Desk TEL: 0120-321-570 [Toll free] (mobile phone ・ Also available from PHS. ) Please contact the "saw SUUMO (Sumo)"
Sale schedule
■ Sales scheduled to begin in late January 2014 ※ price ・ Units sold is undecided. Property data for sale dwelling unit has not yet been finalized are inscribed things of all sales target dwelling unit (building certification already acquired 18 units). Determination information will be explicit in the new sale advertising. Acts that lead to secure the contract or reservation of the application and the application order to sale can not be absolutely.
Building coverage, floor area ratio
Kenpei rate: 60%, Volume ratio: 200%
Time residents
March 2014 in late schedule
Land of the right form
Ownership
Structure and method of construction
Wooden 2-story (2 × 4 construction method)
Construction
Estates Home
Use district
One middle and high
Land category
Residential land
Overview and notices
Building confirmation number: H25SHC110066 other, Facilities: TEPCO, Tokyo Gas, Chiba Prefectural Waterworks Bureau, Rainwater sewage confluence system, Car space (one all households minute)
Company profile
<Seller> Minister of Land, Infrastructure and Transport (2) No. 7259 (one company) Real Estate Association (one company) Property Distribution Management Association (Corporation) metropolitan area real estate Fair Trade Council member Mitsui Fudosan Residential Co., Ltd. Chiba branch Yubinbango260-0013 Chiba Chuo 1-11-1 Chiba center twin building 1 Building 11th floor


Cityscape Rendering

Cityscape Rendering. JR Sobu Line Rapid stop "Inage" station a 15-minute walk. Mansion garden districts of south terraced led to the beautiful tree-lined street. The green light and Inage Konakadai of a hill watered in the wind, Rooftops of all 28 House is born (streetscape Rendering)
JR Sobu Line Rapid stop "Inage" station a 15-minute walk. Mansion garden districts of south terraced led to the beautiful tree-lined street. The green light and Inage Konakadai of a hill watered in the wind, Rooftops of all 28 House is born (streetscape Rendering)

Other

Other. 9 minute walk of Central Park Anagawa. The park, Spacious multi-purpose open space, In addition to Osamukeichi, Large playground equipment, There are tennis courts. Also it looks good to spend a relaxing time at a remote space from the hustle and bustle.
9 minute walk of Central Park Anagawa. The park, Spacious multi-purpose open space, In addition to Osamukeichi, Large playground equipment, There are tennis courts. Also it looks good to spend a relaxing time at a remote space from the hustle and bustle.

Other. 7 am ~ Open until 11 pm 13-minute walk from the ion Inage shop that (except for some stores) and. Food from Fashion, Boarding kennel, Visiting a variety of stores, such as clinic. Is convenient to large-scale commercial facilities are within walking distance.
7 am ~ Open until 11 pm 13-minute walk from the ion Inage shop that (except for some stores) and. Food from Fashion, Boarding kennel, Visiting a variety of stores, such as clinic. Is convenient to large-scale commercial facilities are within walking distance.

Other. Ensei kindergarten just a distance of a 4-minute walk. Day care and pick up Ease of this distance if children. Likely to say that especially glad location in your home or your home that now there are children of this generation.
Ensei kindergarten just a distance of a 4-minute walk. Day care and pick up Ease of this distance if children. Likely to say that especially glad location in your home or your home that now there are children of this generation.

Other. The peripheral local, kindergarten, Nursery, primary school, Junior high school, Trimmed familiar educational facilities and parks and libraries. Also, Chiba University (photo) is also not located at a distance of 23 minutes walk.
The peripheral local, kindergarten, Nursery, primary school, Junior high school, Trimmed familiar educational facilities and parks and libraries. Also, Chiba University (photo) is also not located at a distance of 23 minutes walk.

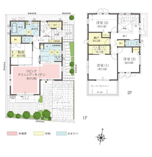
Floor plan

Floor plan. Inage sunny spot until the nursery 750m
Inage sunny spot until the nursery 750m

Floor plan. Inage sunny spot until the nursery 750m
Inage sunny spot until the nursery 750m

Floor plan. Inage sunny spot until the nursery 750m
Inage sunny spot until the nursery 750m

Kindergarten ・ Nursery

kindergarten ・ Nursery. Inage sunny spot until the nursery 750m
Inage sunny spot until the nursery 750m

Primary school

Primary school. 680m until the Chiba Municipal Konakadai Elementary School
680m until the Chiba Municipal Konakadai Elementary School

Park

park. 500m to good friends park
500m to good friends park

Local guide map

Local guide map. "Inage" is from the station to the development land entrance, In a broad approach of the sidewalk in the flat, Commute ・ Convenient to go to school (local guide map)
"Inage" is from the station to the development land entrance, In a broad approach of the sidewalk in the flat, Commute ・ Convenient to go to school (local guide map)

Access view

Access view.  ※ Weekday ・ During the daytime normal 11:00 AM ~ 4:00 PM Most duration of the, () In the time of commuting 7:30 AM ~ 9:00 AM most time required. transfer, Waiting time is not included. Also depends on the time of day, etc. (Access view)
※ Weekday ・ During the daytime normal 11:00 AM ~ 4:00 PM Most duration of the, () In the time of commuting 7:30 AM ~ 9:00 AM most time required. transfer, Waiting time is not included. Also depends on the time of day, etc. (Access view)

The entire compartment Figure

The entire compartment Figure. It embraced around the sound of the wind park (in the town), Southern mansion garden city block of terraced. Road around the city wards in the center of the park is, Directing the road, such as the garden variety of planting is continuous (site plan illustration)
It embraced around the sound of the wind park (in the town), Southern mansion garden city block of terraced. Road around the city wards in the center of the park is, Directing the road, such as the garden variety of planting is continuous (site plan illustration)

Park

park. Anagawa to Central Park 650m
Anagawa to Central Park 650m

Shopping centre

Shopping centre. 1000m until the ion Inage shop
1000m until the ion Inage shop

Supermarket

Supermarket. Maruetsu to Inage shop 1180m
Maruetsu to Inage shop 1180m

Library

library. 630m to Chiba Inage library
630m to Chiba Inage library

Government office

Government office. Inage 850m to ward office
Inage 850m to ward office

Station

station. Inage Station (station building ・ Perrier Inage) up to 1140m
Inage Station (station building ・ Perrier Inage) up to 1140m



Location