|
|
Chiba, Chiba Prefecture Inage-ku
千葉県千葉市稲毛区
|
|
JR Sobu Line "Inage" bus 18 minutes Ones mall walk 5 minutes
JR総武線「稲毛」バス18分ワンズモール歩5分
|
|
● all 16 compartments, Development subdivision in the well-equipped compartment, Thanks to the final subdivision sale ● facing south road, Good per sun! ● Because you can also building your tour, Please have a look once.
●全16区画、区画の整った開発分譲地内、おかげさまで最終分譲販売開始●南道路に面し、陽当たり良好!●建物内ご見学もできますので、ぜひ一度ご覧くださいませ。
|
|
● 2013 November completed ● Site area: 122.80 sq m (about 37.1 square meters) ● near a quiet residential area ● living and second floor of the room to which an units denominated lined faces on the south side, Sunny and bright house ● nearby shopping: Super "incitement" (about 250m), Shopping mall "Ones Mall" ・ "Daiei" (about 250m), There is a super "BigA" and drugstores "Create" is also within walking distance, Is a convenient environment to life ● living-dining ・ The kitchen is wide of the room, About 16 Pledge ● Each Western-style flooring clad ● adopt a multi-layer glass is in face-to-face counter kitchen ● each window that conversation also bouncy family ● There are two car spaces (one is a light car)
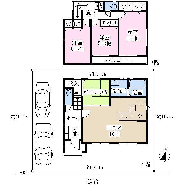
●平成25年11月完成●敷地面積:122.80m2(約37.1坪)●周辺は一戸建が建ち並ぶ静かな住宅地●リビングと2階の居室は南側に面し、日当たりの良い明るいお家です●近隣のお買い物:スーパー「せんどう」(約250m)、ショッピングモール「ワンズモール」・「ダイエー」(約250m)、スーパー「BigA」やドラッグストア「クリエイト」も徒歩圏にあり、生活に便利な環境です●リビングダイニング・キッチンはゆとりの広さ、約16帖●各洋室はフローリング張り●家族の会話も弾む対面式カウンターキッチン●各窓には複層ガラスを採用●カースペース2台有り(1台は軽自動車となります)
|
Features pickup 特徴ピックアップ | | Corresponding to the flat-35S / Parking two Allowed / Immediate Available / Super close / System kitchen / Yang per good / All room storage / Siemens south road / A quiet residential area / LDK15 tatami mats or more / Japanese-style room / Shaping land / Washbasin with shower / Face-to-face kitchen / Toilet 2 places / 2-story / South balcony / Double-glazing / Warm water washing toilet seat / Underfloor Storage / The window in the bathroom / TV monitor interphone / Ventilation good / Development subdivision in フラット35Sに対応 /駐車2台可 /即入居可 /スーパーが近い /システムキッチン /陽当り良好 /全居室収納 /南側道路面す /閑静な住宅地 /LDK15畳以上 /和室 /整形地 /シャワー付洗面台 /対面式キッチン /トイレ2ヶ所 /2階建 /南面バルコニー /複層ガラス /温水洗浄便座 /床下収納 /浴室に窓 /TVモニタ付インターホン /通風良好 /開発分譲地内 |
Event information イベント情報 | | Local sales meetings (please visitors to direct local) schedule / January 11 (Saturday) ・ January 12 (Sunday) time / 13:00 ~ 16:30 Inage-ku, Naganuma-cho Newly built one detached «In the development subdivision of all 16 compartments» Finally the final sale! Finished already ・ Immediate Available (3 ・ 4 Building) Saturday and Sunday 13:00 ~ We hold 16:30 local sales meeting! Your reservation is not needed. Please feel free to visitors! 現地販売会(直接現地へご来場ください)日程/1月11日(土曜日)・1月12日(日曜日)時間/13:00 ~ 16:30稲毛区長沼町 新築一戸建 ≪全16区画の開発分譲地内≫ いよいよ最終分譲!完成済・即入居可 (3・4号棟)土日13:00 ~ 16:30現地販売会を開催してます!ご予約は不要です。お気軽にご来場ください! |
Price 価格 | | 28,700,000 yen 2870万円 |
Floor plan 間取り | | 4LDK 4LDK |
Units sold 販売戸数 | | 1 units 1戸 |
Total units 総戸数 | | 16 houses 16戸 |
Land area 土地面積 | | 122.8 sq m (37.14 tsubo) (Registration) 122.8m2(37.14坪)(登記) |
Building area 建物面積 | | 97.15 sq m (29.38 tsubo) (Registration) 97.15m2(29.38坪)(登記) |
Driveway burden-road 私道負担・道路 | | Nothing, South 5.5m width (contact the road width 12.1m) 無、南5.5m幅(接道幅12.1m) |
Completion date 完成時期(築年月) | | November 2013 2013年11月 |
Address 住所 | | Chiba City, Chiba Prefecture Inage-ku, Naganuma-cho 千葉県千葉市稲毛区長沼町 |
Traffic 交通 | | JR Sobu Line "Inage" bus 18 minutes Ones mall walk 5 minutes JR総武線「稲毛」バス18分ワンズモール歩5分 |
Related links 関連リンク | | [Related Sites of this company] 【この会社の関連サイト】 |
Person in charge 担当者より | | Rep SugiFuchi Toshikazu Age: 30 Daigyokai Experience: 6 years anxiety in real estate buying and selling is the inherent. Guidance clarity to the customer even a little ・ It will be your description, I would like to help hand so that you can trade with confidence. 担当者杉渕 寿一年齢:30代業界経験:6年不動産売買に不安はつきものです。少しでもお客様に分かりやすくご案内・ご説明をさせて頂き、安心してお取引頂けるようお手伝いさせて頂きたいと思います。 |
Contact お問い合せ先 | | TEL: 0800-603-0217 [Toll free] mobile phone ・ Also available from PHS Caller ID is not notified Please contact the "we saw SUUMO (Sumo)" If it does not lead, If the real estate company TEL:0800-603-0217【通話料無料】携帯電話・PHSからもご利用いただけます 発信者番号は通知されません 「SUUMO(スーモ)を見た」と問い合わせください つながらない方、不動産会社の方は
|
Building coverage, floor area ratio 建ぺい率・容積率 | | 60% ・ 200% 60%・200% |
Time residents 入居時期 | | Immediate available 即入居可 |
Land of the right form 土地の権利形態 | | Ownership 所有権 |
Structure and method of construction 構造・工法 | | Wooden 2-story 木造2階建 |
Use district 用途地域 | | Industry 工業 |
Overview and notices その他概要・特記事項 | | Contact: SugiFuchi Juichi, Facilities: Public Water Supply, This sewage, City gas, Building confirmation number: SenKenju No. 1301077, Parking: car space 担当者:杉渕 寿一、設備:公営水道、本下水、都市ガス、建築確認番号:千建住第1301077号、駐車場:カースペース |
Company profile 会社概要 | | <Mediation> Minister of Land, Infrastructure and Transport (8) No. 003,394 (one company) Real Estate Association (Corporation) metropolitan area real estate Fair Trade Council member Taisei the back Real Estate Sales Co., Ltd. Inage office Yubinbango263-0043 Chiba City, Chiba Prefecture Inage Konakadai 2-4-10 peer ・ Tenbiru 5th floor <仲介>国土交通大臣(8)第003394号(一社)不動産協会会員 (公社)首都圏不動産公正取引協議会加盟大成有楽不動産販売(株)稲毛営業所〒263-0043 千葉県千葉市稲毛区小仲台2-4-10 ピア・テンビル5階 |