New Homes » Kanto » Chiba Prefecture » Inage
 
| | Chiba, Chiba Prefecture Inage-ku 千葉県千葉市稲毛区 |
| Keisei Chiba line "Keisei Inage" walk 7 minutes 京成千葉線「京成稲毛」歩7分 |
| Safe quiet residential for children, 3-wire available commute ・ Convenient to go to school! お子様にも安心な閑静な住宅、3線利用可能で通勤・通学に便利! |
| LDK15 tatami mats or more, 2 along the line more accessible, Parking two Allowed, South balcony, Walk-in closet, All room storage, System kitchen, Face-to-face kitchen, Bathroom 1 tsubo or more, 2-story, Living stairs, City gas LDK15畳以上、2沿線以上利用可、駐車2台可、南面バルコニー、ウォークインクロゼット、全居室収納、システムキッチン、対面式キッチン、浴室1坪以上、2階建、リビング階段、都市ガス |
Features pickup 特徴ピックアップ | | Parking two Allowed / 2 along the line more accessible / System kitchen / All room storage / LDK15 tatami mats or more / Face-to-face kitchen / Bathroom 1 tsubo or more / 2-story / South balcony / Walk-in closet / Living stairs / City gas 駐車2台可 /2沿線以上利用可 /システムキッチン /全居室収納 /LDK15畳以上 /対面式キッチン /浴室1坪以上 /2階建 /南面バルコニー /ウォークインクロゼット /リビング階段 /都市ガス | Property name 物件名 | | [WISH TOWN] Inage ☆ New residential housing ☆ 【WISH TOWN】 稲毛 ☆新築住宅☆ | Price 価格 | | 29,990,000 yen 2999万円 | Floor plan 間取り | | 4LDK 4LDK | Units sold 販売戸数 | | 1 units 1戸 | Total units 総戸数 | | 7 units 7戸 | Land area 土地面積 | | 129.86 sq m (39.28 tsubo) (measured) 129.86m2(39.28坪)(実測) | Building area 建物面積 | | 99.36 sq m (30.05 tsubo) (measured) 99.36m2(30.05坪)(実測) | Driveway burden-road 私道負担・道路 | | Nothing, Southeast 4m width 無、南東4m幅 | Completion date 完成時期(築年月) | | 4 months after the contract 契約後4ヶ月 | Address 住所 | | Chiba City, Chiba Prefecture Inage-ku Inage-cho 5 千葉県千葉市稲毛区稲毛町5 | Traffic 交通 | | Keisei Chiba line "Keisei Inage" walk 7 minutes JR Sobu Line "Inage" walk 14 minutes JR Keiyo Line "Inagekaigan" walk 22 minutes 京成千葉線「京成稲毛」歩7分 JR総武線「稲毛」歩14分JR京葉線「稲毛海岸」歩22分
| Related links 関連リンク | | [Related Sites of this company] 【この会社の関連サイト】 | Person in charge 担当者より | | Rep Chosa Eishi Age: 40 Daigyokai experience: We propose to stand in 10 years your position. 担当者帖佐 英史年齢:40代業界経験:10年お客様の立場に立ってご提案いたします。 | Contact お問い合せ先 | | TEL: 0800-805-6628 [Toll free] mobile phone ・ Also available from PHS Caller ID is not notified Please contact the "we saw SUUMO (Sumo)" If it does not lead, If the real estate company TEL:0800-805-6628【通話料無料】携帯電話・PHSからもご利用いただけます 発信者番号は通知されません 「SUUMO(スーモ)を見た」と問い合わせください つながらない方、不動産会社の方は
| Building coverage, floor area ratio 建ぺい率・容積率 | | Fifty percent ・ 160% 50%・160% | Time residents 入居時期 | | 4 months after the contract 契約後4ヶ月 | Land of the right form 土地の権利形態 | | Ownership 所有権 | Structure and method of construction 構造・工法 | | Wooden 2-story (framing method) 木造2階建(軸組工法) | Construction 施工 | | Foundation Ju販 (Ltd.) 創建住販(株) | Use district 用途地域 | | One low-rise 1種低層 | Overview and notices その他概要・特記事項 | | Contact: Chosa Eishi, Facilities: Public Water Supply, This sewage, City gas, Building confirmation number: SenKenju No. 1303655 issue, Parking: car space 担当者:帖佐 英史、設備:公営水道、本下水、都市ガス、建築確認番号:千建住 第1303655 号、駐車場:カースペース | Company profile 会社概要 | | <Seller> Governor of Chiba Prefecture (7) No. 010645 (the Company), Chiba Prefecture Building Lots and Buildings Transaction Business Association (Corporation) metropolitan area real estate Fair Trade Council member foundation Ju販 Ltd. Suehiro head office Yubinbango260-0843 Chiba City, Chiba Prefecture, Chuo-ku, Suehiro 3-3-9 <売主>千葉県知事(7)第010645号(社)千葉県宅地建物取引業協会会員 (公社)首都圏不動産公正取引協議会加盟創建住販(株)末広本店〒260-0843 千葉県千葉市中央区末広3-3-9 |
 Cityscape Rendering
街並完成予想図
Rendering (appearance)完成予想図(外観)  ( 1 Building) Rendering
( 1号棟)完成予想図
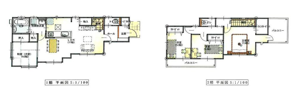
Floor plan間取り図  29,990,000 yen, 4LDK, Land area 129.86 sq m , Building area 99.36 sq m
2999万円、4LDK、土地面積129.86m2、建物面積99.36m2
Sale already cityscape photo分譲済街並み写真  Sale already the city average
分譲済街並
Local photos, including front road前面道路含む現地写真  Local (March 2013) Shooting
現地(2013年3月)撮影
Station駅  1100m until the JR Sobu Line "Inage" station
JR総武線「稲毛」駅まで1100m
The entire compartment Figure全体区画図  Compartment figure
区画図
Station駅  Keisei line "Keisei Inage" 420m to the station
京成線「京成稲毛」駅まで420m
 1700m until the JR Keiyo Line "Inagekaigan" station
JR京葉線「稲毛海岸」駅まで1700m
Kindergarten ・ Nursery幼稚園・保育園  Inage 640m to kindergarten
稲毛幼稚園まで640m
Primary school小学校  Inage to elementary school 10m
稲毛小学校まで10m
Junior high school中学校  Inage 840m until junior high school
稲毛中学校まで840m
Location
|