New Homes » Kanto » Chiba Prefecture » Chuo-ku
 
| | Chiba, Chiba Prefecture, Chuo-ku, 千葉県千葉市中央区 |
| Keisei Chihara line "Omoridai" walk 20 minutes 京成千原線「大森台」歩20分 |
| H25.7 completed already! On the day the guide can also be calm residential parking spaces 2 units can be! H25.7完成済!当日案内も可能です落ち着いた住環境駐車スペース2台可能です! |
| ▼ Hoshiguki elementary school walk 13 minutes ▼ Hoshiguki junior high school 3-minute walk ▼ Hoshiguki nursery walk 11 minutes ▼ Seimusu a 10-minute walk ▼ Seven-Eleven 3-minute walk ▼ Hoshiguki post office walk 7 minutes ▼星久喜小学校徒歩13分▼星久喜中学校徒歩3分▼星久喜保育園徒歩11分▼セイムス徒歩10分▼セブンイレブン徒歩3分▼星久喜郵便局徒歩7分 |
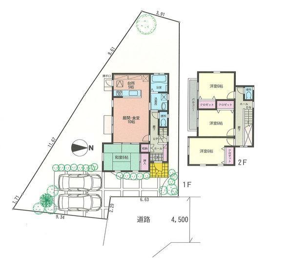
Features pickup 特徴ピックアップ | | Parking two Allowed / Immediate Available / Land 50 square meters or more / Facing south / System kitchen / Yang per good / LDK15 tatami mats or more / Japanese-style room / Washbasin with shower / Face-to-face kitchen / Barrier-free / Toilet 2 places / Bathroom 1 tsubo or more / 2-story / Double-glazing / Otobasu / Warm water washing toilet seat / Underfloor Storage / TV monitor interphone / All room 6 tatami mats or more / City gas 駐車2台可 /即入居可 /土地50坪以上 /南向き /システムキッチン /陽当り良好 /LDK15畳以上 /和室 /シャワー付洗面台 /対面式キッチン /バリアフリー /トイレ2ヶ所 /浴室1坪以上 /2階建 /複層ガラス /オートバス /温水洗浄便座 /床下収納 /TVモニタ付インターホン /全居室6畳以上 /都市ガス | Price 価格 | | 18,800,000 yen 1880万円 | Floor plan 間取り | | 4LDK 4LDK | Units sold 販売戸数 | | 1 units 1戸 | Land area 土地面積 | | 189 sq m (registration) 189m2(登記) | Building area 建物面積 | | 98.55 sq m (registration) 98.55m2(登記) | Driveway burden-road 私道負担・道路 | | Nothing, East 4.5m width 無、東4.5m幅 | Completion date 完成時期(築年月) | | July 2013 2013年7月 | Address 住所 | | Chiba City, Chiba Prefecture, Chuo-ku, Hoshiguki cho 千葉県千葉市中央区星久喜町 | Traffic 交通 | | Keisei Chihara line "Omoridai" walk 20 minutes 京成千原線「大森台」歩20分
| Related links 関連リンク | | [Related Sites of this company] 【この会社の関連サイト】 | Contact お問い合せ先 | | Century 21 (Ltd.) Ernest Chiba shop TEL: 0800-603-9349 [Toll free] mobile phone ・ Also available from PHS Caller ID is not notified Please contact the "we saw SUUMO (Sumo)" If it does not lead, If the real estate company センチュリー21(株)アーネスト千葉店TEL:0800-603-9349【通話料無料】携帯電話・PHSからもご利用いただけます 発信者番号は通知されません 「SUUMO(スーモ)を見た」と問い合わせください つながらない方、不動産会社の方は
| Building coverage, floor area ratio 建ぺい率・容積率 | | 60% ・ 150% 60%・150% | Time residents 入居時期 | | Immediate available 即入居可 | Land of the right form 土地の権利形態 | | Ownership 所有権 | Structure and method of construction 構造・工法 | | Wooden 2-story 木造2階建 | Use district 用途地域 | | One low-rise 1種低層 | Overview and notices その他概要・特記事項 | | Facilities: Public Water Supply, This sewage, City gas, Parking: car space 設備:公営水道、本下水、都市ガス、駐車場:カースペース | Company profile 会社概要 | | <Mediation> Minister of Land, Infrastructure and Transport (1) the first 008,512 No. Century 21 (Ltd.) Ernest Chiba shop Yubinbango260-0805 Chiba City, Chiba Prefecture, Chuo-ku, Miyazaki-cho, 456-2 green pioneer ring building first floor <仲介>国土交通大臣(1)第008512号センチュリー21(株)アーネスト千葉店〒260-0805 千葉県千葉市中央区宮崎町456-2 ミドリパイオニアリングビル1階 |
 Local appearance photo
現地外観写真
Floor plan間取り図  18,800,000 yen, 4LDK, Land area 189 sq m , Building area 98.55 sq m
1880万円、4LDK、土地面積189m2、建物面積98.55m2
 Living
リビング
 Living
リビング
 Bathroom
浴室
 Kitchen
キッチン
 Non-living room
リビング以外の居室
 Entrance
玄関
 Wash basin, toilet
洗面台・洗面所
 Toilet
トイレ
 Local photos, including front road
前面道路含む現地写真
 Parking lot
駐車場
Primary school小学校  556m until the Chiba Municipal Hoshiguki Elementary School
千葉市立星久喜小学校まで556m
 Other
その他
 Living
リビング
 Non-living room
リビング以外の居室
Junior high school中学校  1021m to the Chiba Municipal Hoshiguki junior high school
千葉市立星久喜中学校まで1021m
 Non-living room
リビング以外の居室
Kindergarten ・ Nursery幼稚園・保育園  433m to Chiba Hoshiguki nursery
千葉市星久喜保育所まで433m
Location
|