|
|
Chiba, Chiba Prefecture, Chuo-ku,
千葉県千葉市中央区
|
|
Keisei Chihara line "Omoridai" walk 25 minutes
京成千原線「大森台」歩25分
|
|
Parking space three Allowed. With home garden
駐車スペース3台可。 家庭菜園付き
|
|
Good views per hill
高台につき眺望良好
|
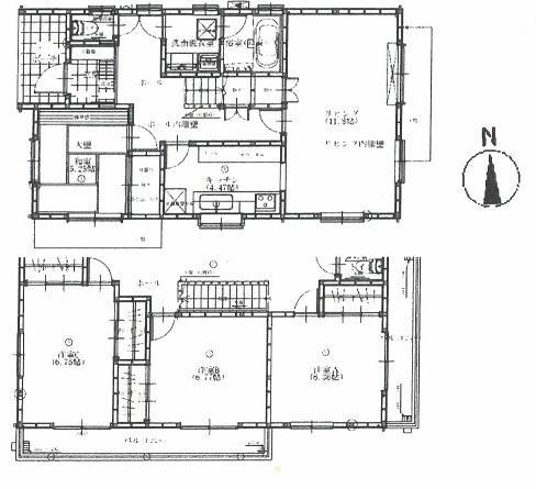
Features pickup 特徴ピックアップ | | Parking three or more possible / Land 50 square meters or more / LDK15 tatami mats or more / Japanese-style room / 2-story / City gas / Located on a hill 駐車3台以上可 /土地50坪以上 /LDK15畳以上 /和室 /2階建 /都市ガス /高台に立地 |
Price 価格 | | 25 million yen 2500万円 |
Floor plan 間取り | | 4LDK 4LDK |
Units sold 販売戸数 | | 1 units 1戸 |
Land area 土地面積 | | 225.08 sq m (measured) 225.08m2(実測) |
Building area 建物面積 | | 111.78 sq m 111.78m2 |
Driveway burden-road 私道負担・道路 | | Nothing, East 4m width (contact the road width 10.6m) 無、東4m幅(接道幅10.6m) |
Completion date 完成時期(築年月) | | January 2014 2014年1月 |
Address 住所 | | Chiba City, Chiba Prefecture, Chuo-ku, Kawato cho 千葉県千葉市中央区川戸町 |
Traffic 交通 | | Keisei Chihara line "Omoridai" walk 25 minutes 京成千原線「大森台」歩25分
|
Related links 関連リンク | | [Related Sites of this company] 【この会社の関連サイト】 |
Contact お問い合せ先 | | TEL: 0800-603-3224 [Toll free] mobile phone ・ Also available from PHS Caller ID is not notified Please contact the "we saw SUUMO (Sumo)" If it does not lead, If the real estate company TEL:0800-603-3224【通話料無料】携帯電話・PHSからもご利用いただけます 発信者番号は通知されません 「SUUMO(スーモ)を見た」と問い合わせください つながらない方、不動産会社の方は
|
Building coverage, floor area ratio 建ぺい率・容積率 | | Fifty percent ・ Hundred percent 50%・100% |
Time residents 入居時期 | | Consultation 相談 |
Land of the right form 土地の権利形態 | | Ownership 所有権 |
Structure and method of construction 構造・工法 | | Wooden 2-story 木造2階建 |
Use district 用途地域 | | One low-rise 1種低層 |
Overview and notices その他概要・特記事項 | | Facilities: Public Water Supply, This sewage, City gas, Building confirmation number: SenKenju No. 1303900 設備:公営水道、本下水、都市ガス、建築確認番号:千建住第1303900号 |
Company profile 会社概要 | | <Mediation> Minister of Land, Infrastructure and Transport (2) the first 007,161 No. Century 21 (Ltd.) Create Home Shinkemigawa shop Yubinbango262-0025 Chiba Hanamigawa-ku, Chiba Garden 1-20-7 <仲介>国土交通大臣(2)第007161号センチュリー21(株)クリエイトホーム新検見川店〒262-0025 千葉県千葉市花見川区花園1-20-7 |