|
|
Chiba, Chiba Prefecture, Chuo-ku,
千葉県千葉市中央区
|
|
JR Sobu Line "Chiba" a 25-minute three-way intersection walk 3 minutes by bus
JR総武線「千葉」バス25分三叉路歩3分
|
|
Property Management Number: 201048-717
物件管理番号:201048-717
|
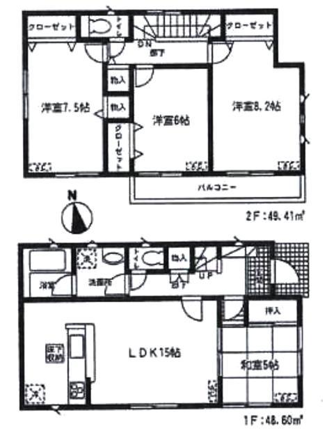
Features pickup 特徴ピックアップ | | System kitchen / Bathroom Dryer / LDK15 tatami mats or more / Or more before road 6m / Japanese-style room / Washbasin with shower / 2-story / Warm water washing toilet seat / TV monitor interphone / City gas システムキッチン /浴室乾燥機 /LDK15畳以上 /前道6m以上 /和室 /シャワー付洗面台 /2階建 /温水洗浄便座 /TVモニタ付インターホン /都市ガス |
Price 価格 | | 21,800,000 yen 2180万円 |
Floor plan 間取り | | 4LDK 4LDK |
Units sold 販売戸数 | | 1 units 1戸 |
Land area 土地面積 | | 140.04 sq m (measured) 140.04m2(実測) |
Building area 建物面積 | | 98.01 sq m (measured) 98.01m2(実測) |
Driveway burden-road 私道負担・道路 | | Nothing, East 6m width 無、東6m幅 |
Completion date 完成時期(築年月) | | February 2014 2014年2月 |
Address 住所 | | Chiba City, Chiba Prefecture, Chuo-ku, Hoshiguki cho 千葉県千葉市中央区星久喜町 |
Traffic 交通 | | JR Sobu Line "Chiba" a 25-minute three-way intersection walk 3 minutes by bus JR総武線「千葉」バス25分三叉路歩3分 |
Related links 関連リンク | | [Related Sites of this company] 【この会社の関連サイト】 |
Contact お問い合せ先 | | Pitattohausu Chiba Chuo Co. Kamatori housing TEL: 0800-603-2589 [Toll free] mobile phone ・ Also available from PHS Caller ID is not notified Please contact the "we saw SUUMO (Sumo)" If it does not lead, If the real estate company ピタットハウス千葉中央店(株)かまとり住宅TEL:0800-603-2589【通話料無料】携帯電話・PHSからもご利用いただけます 発信者番号は通知されません 「SUUMO(スーモ)を見た」と問い合わせください つながらない方、不動産会社の方は
|
Building coverage, floor area ratio 建ぺい率・容積率 | | 60% ・ 150% 60%・150% |
Time residents 入居時期 | | February 2014 schedule 2014年2月予定 |
Land of the right form 土地の権利形態 | | Ownership 所有権 |
Structure and method of construction 構造・工法 | | Wooden 2-story 木造2階建 |
Use district 用途地域 | | One low-rise 1種低層 |
Overview and notices その他概要・特記事項 | | Facilities: Public Water Supply, This sewage, City gas, Building confirmation number: No. H25SHC113436, Parking: car space 設備:公営水道、本下水、都市ガス、建築確認番号:第H25SHC113436号、駐車場:カースペース |
Company profile 会社概要 | | <Mediation> Governor of Chiba Prefecture (3) The 013,689 No. Pitattohausu Chiba Chuo Co. Kamatori housing Yubinbango260-0012 Chiba City, Chiba Prefecture, Chuo-ku Honcho 3-2-2 <仲介>千葉県知事(3)第013689号ピタットハウス千葉中央店(株)かまとり住宅〒260-0012 千葉県千葉市中央区本町3-2-2 |