Investing in Japanese real estate
Funabashi, Chiba Prefecture Oanaminami 5
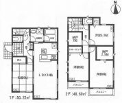
2014January 22,800,000 yen, 3LDK + S (storeroom), 97.71 sq m | ||
Funabashi, Chiba Prefecture Ninomiya 2-11-16
10.8 million yen, 97.52 sq m | Funabashi, Chiba Prefecture Nishinarashino 1
2014 34,800,000 yen ・ 36,800,000 yen, 4LDK, 97.71 sq m ・ 98.95 sq m | |
Funabashi, Chiba Prefecture Tsuboi east 6
2013September 31,900,000 yen, 4LDK + S (storeroom), 97.2 sq m | ||
Funabashi, Chiba Prefecture Oanaminami 3
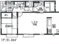
9.6 million yen, 179.47 sq m | ||
Funabashi, Chiba Prefecture Maekaizuka cho
12.2 million yen, 116.43 sq m | ||
Funabashi, Chiba Prefecture Komuro-cho, 1250
2014June 29 million yen ~ 41 million yen, 3LDK ~ 5LDK, 100.6 sq m ~ 110.67 sq m | ||
Funabashi, Chiba Prefecture Misaki 2-1
2014 22,900,000 yen ~ 26,900,000 yen, 4LDK, 84.06 sq m ~ 99.76 sq m | Funabashi, Chiba Prefecture Tsuboi east 6
2013October 31,900,000 yen, 4LDK + S (storeroom), 98.82 sq m | |
Funabashi, Chiba Prefecture Misaki 1
16,750,000 yen ~ 24,750,000 yen, 165.3 sq m ~ 173.98 sq m | ||