New Homes » Kanto » Chiba Prefecture » Funabashi
 
| | Funabashi, Chiba Prefecture 千葉県船橋市 |
| Tobu Noda line "Tsukada" walk 10 minutes 東武野田線「塚田」歩10分 |
| Station 10-minute walk. 2 station 4 minutes to the "bridge" station of the rapid stop. Convenient Funabashi Station is living area. Building completed sneak preview held that comfortable to live can be confirmed. Eco Jaws, Fully equipped, such as TES floor heating 駅徒歩10分。快速停車の「船橋」駅へ2駅4分。便利な船橋駅前が生活圏。住み心地が確認できる建物完成内覧会開催。エコジョーズ、TES床暖房など設備充実 |
Local guide map 現地案内図 | | Local guide map 現地案内図 | Features pickup 特徴ピックアップ | | Year Available / LDK18 tatami mats or more / Energy-saving water heaters / System kitchen / Bathroom Dryer / Yang per good / All room storage / Japanese-style room / Washbasin with shower / Toilet 2 places / Bathroom 1 tsubo or more / 2-story / Double-glazing / Underfloor Storage / The window in the bathroom / TV monitor interphone / Dish washing dryer / Or more ceiling height 2.5m / water filter / City gas / A large gap between the neighboring house / Floor heating / Development subdivision in 年内入居可 /LDK18畳以上 /省エネ給湯器 /システムキッチン /浴室乾燥機 /陽当り良好 /全居室収納 /和室 /シャワー付洗面台 /トイレ2ヶ所 /浴室1坪以上 /2階建 /複層ガラス /床下収納 /浴室に窓 /TVモニタ付インターホン /食器洗乾燥機 /天井高2.5m以上 /浄水器 /都市ガス /隣家との間隔が大きい /床暖房 /開発分譲地内 | Property name 物件名 | | Town of Shikisai Ciel Town Funabashi Tsukada B Street District 四季彩の街 シエルタウン船橋塚田B街区 | Price 価格 | | 37,300,000 yen ~ 55,150,000 yen 3730万円 ~ 5515万円 | Floor plan 間取り | | 4LDK 4LDK | Units sold 販売戸数 | | 12 units 12戸 | Total units 総戸数 | | 147 units 147戸 | Land area 土地面積 | | 135.78 sq m ~ 213.19 sq m (registration) 135.78m2 ~ 213.19m2(登記) | Building area 建物面積 | | 99.37 sq m ~ 120.27 sq m 99.37m2 ~ 120.27m2 | Driveway burden-road 私道負担・道路 | | Road: 5.5m ・ 8m width asphalt paving, Driveway burden: No 道路:5.5m・8m幅アスファルト舗装、私道負担:無 | Completion date 完成時期(築年月) | | January 2014 late schedule 2014年1月下旬予定 | Address 住所 | | Funabashi, Chiba Prefecture Asahimachi 5-501-12 千葉県船橋市旭町5-501-12他(地番) | Traffic 交通 | | Tobu Noda Line "Tsukada" walk 10 minutes Tobu Noda line "new bridge" walk 27 minutes JR Sobu Line "Funabashi" walk 38 minutes 東武野田線「塚田」歩10分東武野田線「新船橋」歩27分JR総武線「船橋」歩38分 | Related links 関連リンク | | [Related Sites of this company] 【この会社の関連サイト】 | Person in charge 担当者より | | [Regarding this property.] Please enter 【この物件について】入力してください | Contact お問い合せ先 | | Ciel Town Funabashi Tsukada sales center TEL: 0120-321-902 [Toll free] (mobile phone ・ Also available from PHS. ) Please contact the "saw SUUMO (Sumo)" シエルタウン船橋塚田販売センターTEL:0120-321-902【通話料無料】(携帯電話・PHSからもご利用いただけます。)「SUUMO(スーモ)を見た」と問い合わせください | Sale schedule 販売スケジュール | | ※ Time is 10:00 AM ~ 5:00 PM, The location is the local sales center. ※ At the time of application is required seal and the application fee 100,000 yen. ※時間は10:00AM ~ 5:00PM、場所は現地販売センターです。※申し込みの際には印鑑と申込金10万円が必要です。 | Most price range 最多価格帯 | | 37 million yen ・ 39 million yen ・ If the 40 million yen supplementary information, Please enter (each 2 units) 3700万円台・3900万円台・4000万円台補足事項はあれば、入力してください(各2戸) | Building coverage, floor area ratio 建ぺい率・容積率 | | Building coverage: 50%, Volume ratio: 100% 建ぺい率:50%、容積率:100% | Time residents 入居時期 | | February 2014 late schedule 2014年2月下旬予定 | Land of the right form 土地の権利形態 | | Ownership 所有権 | Structure and method of construction 構造・工法 | | Wooden 2-story (framing method) 木造2階建(軸組工法) | Construction 施工 | | Construction company: East Construction Co., Ltd. 施工会社:東日本建設(株) | Use district 用途地域 | | One low-rise 1種低層 | Land category 地目 | | Residential land 宅地 | Other limitations その他制限事項 | | Easement: under high-voltage lines 12.88 sq m ~ 47.58 sq m ・ Inclined portion: 27.14 sq m ~ 42.24 sq m (some) 地役権:高圧線下 12.88m2 ~ 47.58m2・傾斜部分: 27.14m2 ~ 42.24m2(一部) | Overview and notices その他概要・特記事項 | | Building confirmation number: 122-2 Building No. BVJ-C13-10-0029, Building area: Some first floor garage 17.56 sq m including, Completion date, July 1, 2013, Total units Note: Of B Street District 49 units, Development total area: 36009.01 sq m , Car space (5 units), Garage (5 units), Tokyo Electric Power Co., Public Water Supply, This sewage, City gas, Development permit number: Funabashi City home instruction No. 211 (H14.12.18) 建築確認番号:122-2号棟 第BVJ-C13-10-0029号、建物面積:一部1階車庫17.56m2含、完成時期:、2013年7月1日、総戸数補足:うちB街区49戸、開発総面積:36009.01m2、カースペース(5戸)、車庫(5戸)、東京電力、公営水道、本下水、都市ガス、開発許可番号:船橋市宅指令第211号(H14.12.18) | Company profile 会社概要 | | <Seller> Governor of Chiba Prefecture (5) No. 12253 Governor of Chiba Prefecture (JP -18) No. 2376 (the company), Chiba Prefecture Building Lots and Buildings Transaction Business Association (Corporation) metropolitan area real estate Fair Trade Council member East Construction Co., Ltd. Yubinbango273-0005 Funabashi, Chiba Prefecture Honcho 1-3-1 Face the 11th floor <売主>千葉県知事(5)第12253号 千葉県知事(特-18)第2376号(社)千葉県宅地建物取引業協会会員 (公社)首都圏不動産公正取引協議会加盟東日本建設株式会社〒273-0005 千葉県船橋市本町1-3-1 フェイス11階 |
 Local (12 May 2013) Shooting
現地(2013年12月)撮影
 14 Building Local (12 May 2013) Shooting
14号棟 現地(2013年12月)撮影
Livingリビング  77 Building Local (12 May 2013) Shooting
77号棟 現地(2013年12月)撮影
 77 Building Local (12 May 2013) Shooting
77号棟 現地(2013年12月)撮影
 122-2 Building Local (12 May 2013) Shooting
122-2号棟 現地(2013年12月)撮影
The entire compartment Figure全体区画図  Compartment figure
区画図
 Local guide map
現地案内図
Access view交通アクセス図  ※ Tobu Noda Line "Tsukada" 2 station 4 minutes from the station to the "bridge" station. "Tokyo" is a 25-minute Sobu Line rapid use than Funabashi to the station
※東武野田線「塚田」駅より「船橋」駅へ2駅4分。「東京」駅へ船橋より総武線快速利用で25分
Power generation ・ Hot water equipment発電・温水設備  living, Equipped with dining
リビング、ダイニングに装備
Shopping centreショッピングセンター  Seibu Department Stores other loft also, Lined large stores such as Ito-Yokado.
西武百貨店 他にもロフト、イトーヨーカドーなど大型店舗が立ち並ぶ。
Local guide map現地案内図  B Street District Compartment Figure
B街区 区画図
Other Equipmentその他設備  Dishwasher, Water purifier integrated faucet
食洗機、浄水器一体型水栓
Power generation ・ Hot water equipment発電・温水設備  Thermos bathtub
魔法びん浴槽
Other Equipmentその他設備  Frontage 900 with hanging cupboard
間口900 吊戸棚付
 Water-saving With Washlet
節水型 ウォシュレット付
Floor plan間取り図  Funabashi Station of Tobu Department Store basement food floor assortment attractive department store unique.
船橋駅前の東武百貨店 地下の食品フロアは百貨店ならではの品揃えが魅力。
 Funabashi Station of Tobu Department Store basement food floor assortment attractive department store unique.
船橋駅前の東武百貨店 地下の食品フロアは百貨店ならではの品揃えが魅力。
 Funabashi Station of Tobu Department Store basement food floor assortment attractive department store unique.
船橋駅前の東武百貨店 地下の食品フロアは百貨店ならではの品揃えが魅力。
 Funabashi Station of Tobu Department Store basement food floor assortment attractive department store unique.
船橋駅前の東武百貨店 地下の食品フロアは百貨店ならではの品揃えが魅力。
 Funabashi Station of Tobu Department Store basement food floor assortment attractive department store unique.
船橋駅前の東武百貨店 地下の食品フロアは百貨店ならではの品揃えが魅力。
 Funabashi Station of Tobu Department Store basement food floor assortment attractive department store unique.
船橋駅前の東武百貨店 地下の食品フロアは百貨店ならではの品揃えが魅力。
 Funabashi Station of Tobu Department Store basement food floor assortment attractive department store unique.
船橋駅前の東武百貨店 地下の食品フロアは百貨店ならではの品揃えが魅力。
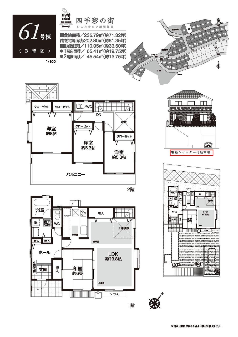
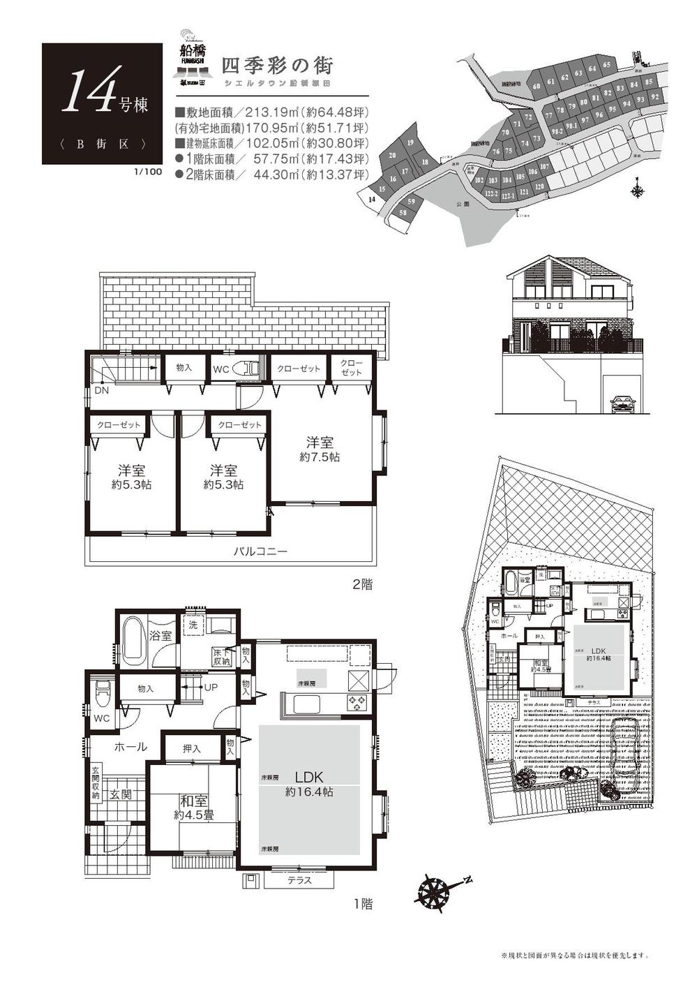
 (14 Building), Price 39,500,000 yen, 4LDK, Land area 170.95 sq m , Building area 102.05 sq m
(14号棟)、価格3950万円、4LDK、土地面積170.95m2、建物面積102.05m2
Shopping centreショッピングセンター  Funabashi Station of Tobu Department Store basement food floor assortment attractive department store unique.
船橋駅前の東武百貨店 地下の食品フロアは百貨店ならではの品揃えが魅力。
Park公園  Oasis of local residents to enjoy a stroll through the seasons 150m four seasons until Nagatsugawa water park.
長津川親水公園まで150m 四季折々の散策が楽しめる地域住民の憩いの場。
Other Equipmentその他設備  Card key specification
カードキー仕様
You will receive this brochureこんなパンフレットが届きます  You will receive a listing of the concept and a detailed floor plan plan. Now Request!
物件のコンセプトや詳細な間取りプランが届きます。今すぐ資料請求!
 Floor plan
間取り図
 Floor plan
間取り図
 Floor plan
間取り図
 Floor plan
間取り図
Park公園  And tennis courts with a 1200m citizen pool and night game equipment to Funabashi Sports Park also been developed.
船橋運動公園まで1200m 市民プールやナイター設備のあるテニスコートなども整備されている。
Primary school小学校  Tsukada distance of school vigorously every day and 900m walk 12 minutes to the elementary school.
塚田小学校まで900m 徒歩12分と毎日元気に通学できる距離。
Kindergarten ・ Nursery幼稚園・保育園  Encouraging the two-income family be in 800m familiar to Funabashi Asahi nursery school.
船橋旭保育園まで800m 身近にあって共働き家族には心強い。
Supermarketスーパー  To York Mart 870m
ヨークマートまで870m
 Kojima ・ Consumer electronics is also familiar Easy Align of 1200m new life to Tobu Store.
コジマ・東武ストアまで1200m 新生活の家電揃えも身近でラクラク。
Park公園  Also recommended picnic and bathing in the family on holiday 1400m to Gyoda park.
行田公園まで1400m 休日には家族でピクニックや森林浴もオススメ。
Location
|