New Homes » Kanto » Chiba Prefecture » Funabashi
 
| | Funabashi, Chiba Prefecture 千葉県船橋市 |
| JR Sobu Line "Higashifunahashi" walk 25 minutes JR総武線「東船橋」歩25分 |
| Sunny, Wide site. 2 Station Available. 日当たり良好、広い敷地。2駅利用可。 |
Price 価格 | | 27,800,000 yen 2780万円 | Floor plan 間取り | | 4LDK 4LDK | Units sold 販売戸数 | | 1 units 1戸 | Land area 土地面積 | | 204.21 sq m (registration) 204.21m2(登記) | Building area 建物面積 | | 102.47 sq m 102.47m2 | Driveway burden-road 私道負担・道路 | | Nothing 無 | Completion date 完成時期(築年月) | | August 2013 2013年8月 | Address 住所 | | Funabashi, Chiba Prefecture Komegasaki cho 千葉県船橋市米ケ崎町 | Traffic 交通 | | JR Sobu Line "Higashifunahashi" Ayumu 25 Bunhigashiha high-speed railway, "sandwiched" walk 19 minutes JR Sobu Line "Funabashi" 15 minutes Yonegasaki bus stop walk 2 minutes by bus JR総武線「東船橋」歩25分東葉高速鉄道「飯山満」歩19分 JR総武線「船橋」バス15分米ヶ崎バス停歩2分 | Related links 関連リンク | | [Related Sites of this company] 【この会社の関連サイト】 | Contact お問い合せ先 | | (Ltd.) Housing ProduceTEL: 0800-603-3384 [Toll free] mobile phone ・ Also available from PHS Caller ID is not notified Please contact the "we saw SUUMO (Sumo)" If it does not lead, If the real estate company (株)Housing ProduceTEL:0800-603-3384【通話料無料】携帯電話・PHSからもご利用いただけます 発信者番号は通知されません 「SUUMO(スーモ)を見た」と問い合わせください つながらない方、不動産会社の方は
| Time residents 入居時期 | | Consultation 相談 | Land of the right form 土地の権利形態 | | Ownership 所有権 | Structure and method of construction 構造・工法 | | Wooden 2-story (framing method) 木造2階建(軸組工法) | Overview and notices その他概要・特記事項 | | Facilities: private water, Individual septic tank, Individual LPG, Building confirmation number: KK-1293, Parking: car space 設備:私設水道、個別浄化槽、個別LPG、建築確認番号:KK-1293、駐車場:カースペース | Company profile 会社概要 | | <Mediation> Governor of Chiba Prefecture (2) No. 014631 (the company), Chiba Prefecture Building Lots and Buildings Transaction Business Association (Corporation) metropolitan area real estate Fair Trade Council member (Ltd.) Housing Produceyubinbango273-0035 Funabashi, Chiba Prefecture Motonakayama 2-23-1 <仲介>千葉県知事(2)第014631号(社)千葉県宅地建物取引業協会会員 (公社)首都圏不動産公正取引協議会加盟(株)Housing Produce〒273-0035 千葉県船橋市本中山2-23-1 |
Local appearance photo現地外観写真  Variability that can respond to changes in the family structure of the people who live, Diversity, Fun and comfort, It is packed house a lot thought that would say that you want to personality representation.
住まう人の家族構成の変化に対応できる可変性、多様性、快適性を楽しく、個性的に表現したいというう想いがたくさん詰まった住まいです。
Livingリビング  Spacious living room It captures the light to feel good in from the south.
広々としたリビングは 南側からにいい感じに光を取り込みます。
Bathroom浴室  Since it located on a hill From the window of the bathroom, which was provided on the second floor Spread the views of the more heal at once the fatigue of the day.
高台にあるので 2階に設けた浴室の窓からは 一日の疲れを一気に癒すほどの眺望が広がります。
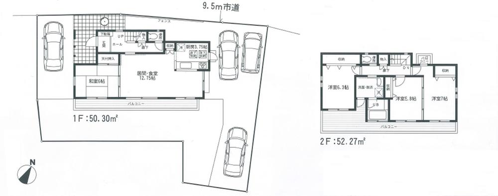
Floor plan間取り図  27,800,000 yen, 4LDK, Land area 204.21 sq m , Building area 102.47 sq m car space has provided generous. Distant customers Ya Family members can also be supported by your use of the multiple car.
2780万円、4LDK、土地面積204.21m2、建物面積102.47m2 カースペースが多めにもうけられています。遠方のお客様や 家族が複数お車をご利用でも対応できます。
Otherその他  Japanese-style Come to customers play from afar It can also be used as a guest room when it becomes and accommodation. Simple but lovely Japanese-style soul of Japan is felt.
和室は 遠方からのお客様が遊びに来て 宿泊となった場合客間としても使えます。シンプルながらも日本の魂が感じられる素敵な和室です。
Location
|