|
|
Funabashi, Chiba Prefecture
千葉県船橋市
|
|
AzumaYo high-speed rail, "Funabashi Nihon before" walk 16 minutes
東葉高速鉄道「船橋日大前」歩16分
|
|
Seifu drifts Narashinodai on the site 40 square meters more than the subdivision! !
清風が漂う習志野台に敷地40坪超の分譲地!!
|
Features pickup 特徴ピックアップ | | Construction housing performance with evaluation / 2 along the line more accessible / Facing south / System kitchen / A quiet residential area / LDK15 tatami mats or more / Shaping land / Washbasin with shower / Face-to-face kitchen / Toilet 2 places / 2-story / Warm water washing toilet seat / Underfloor Storage / City gas 建設住宅性能評価付 /2沿線以上利用可 /南向き /システムキッチン /閑静な住宅地 /LDK15畳以上 /整形地 /シャワー付洗面台 /対面式キッチン /トイレ2ヶ所 /2階建 /温水洗浄便座 /床下収納 /都市ガス |
Price 価格 | | 37,800,000 yen 3780万円 |
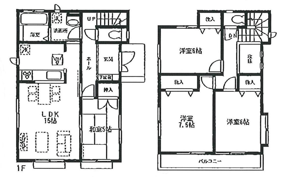
Floor plan 間取り | | 4LDK 4LDK |
Units sold 販売戸数 | | 1 units 1戸 |
Total units 総戸数 | | 1 units 1戸 |
Land area 土地面積 | | 139.23 sq m (registration) 139.23m2(登記) |
Building area 建物面積 | | 96.67 sq m (registration) 96.67m2(登記) |
Driveway burden-road 私道負担・道路 | | Nothing, Northeast 6m width 無、北東6m幅 |
Completion date 完成時期(築年月) | | December 2013 2013年12月 |
Address 住所 | | Funabashi, Chiba Prefecture Narashinodai 6 千葉県船橋市習志野台6 |
Traffic 交通 | | AzumaYo high-speed rail, "Funabashi Nihon before" walk 16 minutes AzumaYo high-speed rail "Kitanarashino" walk 15 minutes Shinkeiseisen "Narashino" walk 22 minutes 東葉高速鉄道「船橋日大前」歩16分 東葉高速鉄道「北習志野」歩15分 新京成線「習志野」歩22分
|
Person in charge 担当者より | | Personnel Katsumata Kazuhiko Age: 40 Daigyokai experience: that in mind five years most is to give your suggestions in your eyes. However, Satisfy all of the customers demand conditions real estate does not exist. What do I have to compromise but will propose how best best if what the compromise 担当者勝俣 和彦年齢:40代業界経験:5年一番心がけていることはお客様目線でご提案を差し上げることです。しかし、お客様が求める条件をすべて満たす不動産は存在しません。何かを妥協しなければならないのですが何を妥協すれば一番ベストかをご提案します |
Contact お問い合せ先 | | TEL: 0800-603-3605 [Toll free] mobile phone ・ Also available from PHS Caller ID is not notified Please contact the "we saw SUUMO (Sumo)" If it does not lead, If the real estate company TEL:0800-603-3605【通話料無料】携帯電話・PHSからもご利用いただけます 発信者番号は通知されません 「SUUMO(スーモ)を見た」と問い合わせください つながらない方、不動産会社の方は
|
Building coverage, floor area ratio 建ぺい率・容積率 | | 60% ・ 200% 60%・200% |
Time residents 入居時期 | | 4 months after the contract 契約後4ヶ月 |
Land of the right form 土地の権利形態 | | Ownership 所有権 |
Structure and method of construction 構造・工法 | | Wooden 2-story (framing method) 木造2階建(軸組工法) |
Construction 施工 | | (Ltd.) Idasangyo (株)飯田産業 |
Use district 用途地域 | | One middle and high 1種中高 |
Overview and notices その他概要・特記事項 | | Contact: Katsumata Kazuhiko, Facilities: Public Water Supply, This sewage, City gas, Building confirmation number: HPA-13-04938-1 担当者:勝俣 和彦、設備:公営水道、本下水、都市ガス、建築確認番号:HPA-13-04938-1 |
Company profile 会社概要 | | <Mediation> Governor of Chiba Prefecture (3) The 014,533 No. Pitattohausu Shimousa Nakayama store episode (Ltd.) Yubinbango272-0814 Ichikawa, Chiba Prefecture Takaishigami 31-17 <仲介>千葉県知事(3)第014533号ピタットハウス下総中山店エピソード(株)〒272-0814 千葉県市川市高石神31-17 |