|
|
Funabashi, Chiba Prefecture
千葉県船橋市
|
|
Shinkeiseisen "Takanekido" walk 7 minutes
新京成線「高根木戸」歩7分
|
|
Family is always amicably in storage rich floor plan living-in stairs to luxuries!
豪華設備に収納豊富な間取りリビングイン階段で家族はいつも円満!
|
|
Kazasuki the door insulation door (card), The LDK floor heating, Dishwasher, For a house on the electric shutter three places and so on upscale model house building, Please have a look on this occasion.
玄関断熱ドアにカザスキー(カード)、LDKには床暖房、食洗器、電動シャッター3箇所等々ワンランク上の住宅をモデルハウス棟の為、この機会に是非ご覧ください。
|
Features pickup 特徴ピックアップ | | Measures to conserve energy / Corresponding to the flat-35S / Airtight high insulated houses / Year Available / Parking two Allowed / 2 along the line more accessible / Energy-saving water heaters / It is close to Tennis Court / Facing south / System kitchen / Bathroom Dryer / All room storage / A quiet residential area / LDK15 tatami mats or more / Around traffic fewer / Japanese-style room / Shaping land / Face-to-face kitchen / Wide balcony / 3 face lighting / Barrier-free / Natural materials / Bathroom 1 tsubo or more / 2-story / 2 or more sides balcony / Double-glazing / Zenshitsuminami direction / Otobasu / Nantei / Underfloor Storage / The window in the bathroom / TV monitor interphone / All living room flooring / Good view / IH cooking heater / Walk-in closet / All room 6 tatami mats or more / water filter / Living stairs / All-electric / All rooms are two-sided lighting / A large gap between the neighboring house / Attic storage / Floor heating 省エネルギー対策 /フラット35Sに対応 /高気密高断熱住宅 /年内入居可 /駐車2台可 /2沿線以上利用可 /省エネ給湯器 /テニスコートが近い /南向き /システムキッチン /浴室乾燥機 /全居室収納 /閑静な住宅地 /LDK15畳以上 /周辺交通量少なめ /和室 /整形地 /対面式キッチン /ワイドバルコニー /3面採光 /バリアフリー /自然素材 /浴室1坪以上 /2階建 /2面以上バルコニー /複層ガラス /全室南向き /オートバス /南庭 /床下収納 /浴室に窓 /TVモニタ付インターホン /全居室フローリング /眺望良好 /IHクッキングヒーター /ウォークインクロゼット /全居室6畳以上 /浄水器 /リビング階段 /オール電化 /全室2面採光 /隣家との間隔が大きい /屋根裏収納 /床暖房 |
Price 価格 | | 35,800,000 yen 3580万円 |
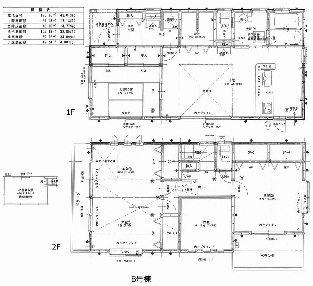
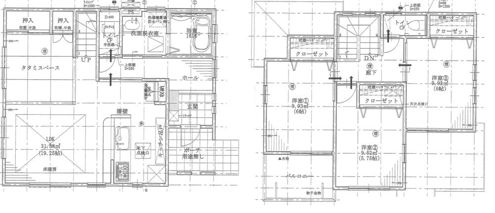
Floor plan 間取り | | 4LDK + S (storeroom) 4LDK+S(納戸) |
Units sold 販売戸数 | | 2 units 2戸 |
Total units 総戸数 | | 2 units 2戸 |
Land area 土地面積 | | 163.73 sq m ~ 170.86 sq m 163.73m2 ~ 170.86m2 |
Building area 建物面積 | | 105.98 sq m ~ 110.96 sq m (measured) 105.98m2 ~ 110.96m2(実測) |
Completion date 完成時期(築年月) | | 2013 mid-November 2013年11月中旬 |
Address 住所 | | Funabashi, Chiba Prefecture Nishinarashino 1-19-14 千葉県船橋市西習志野1-19-14 |
Traffic 交通 | | Shinkeiseisen "Takanekido" walk 7 minutes AzumaYo high-speed rail "Kitanarashino" walk 15 minutes 新京成線「高根木戸」歩7分 東葉高速鉄道「北習志野」歩15分
|
Person in charge 担当者より | | [Regarding this property.] All the more than 50 square meters of the site electrification 33 square meters large house, Station is also nearby life convenient. 【この物件について】50坪以上の敷地にオール電化33坪大型住宅、駅も近く生活便利です。 |
Contact お問い合せ先 | | Ltd. Ai link Home TEL: 0800-809-8688 [Toll free] mobile phone ・ Also available from PHS Caller ID is not notified Please contact the "we saw SUUMO (Sumo)" If it does not lead, If the real estate company (株)アイリンクホームTEL:0800-809-8688【通話料無料】携帯電話・PHSからもご利用いただけます 発信者番号は通知されません 「SUUMO(スーモ)を見た」と問い合わせください つながらない方、不動産会社の方は
|
Building coverage, floor area ratio 建ぺい率・容積率 | | Building coverage: 60%, Volume ratio: 200% 建ぺい率:60%、容積率:200% |
Time residents 入居時期 | | Consultation 相談 |
Land of the right form 土地の権利形態 | | Ownership 所有権 |
Structure and method of construction 構造・工法 | | Wooden (framing method) 木造(軸組工法) |
Use district 用途地域 | | One middle and high 1種中高 |
Land category 地目 | | Residential land 宅地 |
Overview and notices その他概要・特記事項 | | Building confirmation number: No. 030545 建築確認番号:030545号 |
Company profile 会社概要 | | <Mediation> Governor of Chiba Prefecture (1) No. 016457 (Ltd.) eye link Home Yubinbango274-0065 Funabashi, Chiba Prefecture Takanedai 7-16-7 <仲介>千葉県知事(1)第016457号(株)アイリンクホーム〒274-0065 千葉県船橋市高根台7-16-7 |