New Homes » Kanto » Chiba Prefecture » Funabashi
 
| | Funabashi, Chiba Prefecture 千葉県船橋市 |
| Shinkeiseisen "Maehara" walk 6 minutes 新京成線「前原」歩6分 |
| ■ ■ Century Garden Tsudanuma ■ ■ JR Sobu Line "Tsudanuma" station 15 minutes / Shinkeiseisen "Maehara" station 5 minutes. Sub-living, Large storage, A house with a free space. ■■センチュリーガーデン津田沼■■JR総武線「津田沼」駅15分/新京成線「前原」駅5分。サブリビング、大型収納、フリースペースのある家。 |
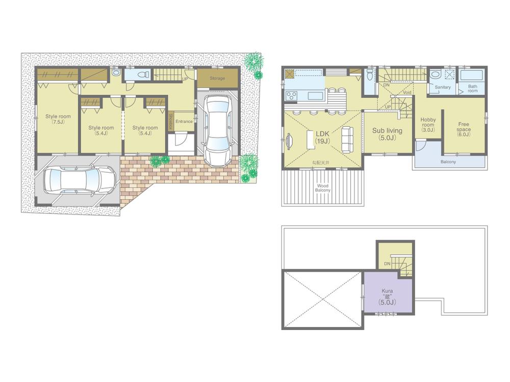
| ◆ Site area 39 square meters more than. The location of the southeast-facing 6m road. Car spaces are reserved 2 car, Multi-purpose storage that leads directly from the built-in garage will be able to store plenty well as maintenance supplies. ◆ From the size 19 Pledge of LDK can approach to the sub-living of a large warehouse storage and skip floor of about 5 quires, It has become a three-dimensional space with change. Enjoy the originality, It has become a certain space floor plan. ◆敷地面積39坪超。東南向き6m道路の立地。カースペースは2台分確保、ビルトインガレージから直接繋がる多目的収納はメンテナンス用品などもたっぷり収納することができます。◆広さ19帖のLDKからは約5帖の大型蔵収納とスキップフロアのサブリビングにアプローチでき、変化のある立体的な空間になっています。オリジナリティを楽しめる、ゆとりある間取りとなっています。 |
Features pickup 特徴ピックアップ | | Parking two Allowed / 2 along the line more accessible / LDK18 tatami mats or more / Facing south / System kitchen / Bathroom Dryer / Yang per good / All room storage / Flat to the station / A quiet residential area / Around traffic fewer / Or more before road 6m / Shaping land / Washbasin with shower / Face-to-face kitchen / Toilet 2 places / Bathroom 1 tsubo or more / 2-story / 2 or more sides balcony / Double-glazing / Zenshitsuminami direction / Underfloor Storage / The window in the bathroom / Atrium / Mu front building / Ventilation good / All living room flooring / Wood deck / Dish washing dryer / Or more ceiling height 2.5m / Located on a hill / Flat terrain 駐車2台可 /2沿線以上利用可 /LDK18畳以上 /南向き /システムキッチン /浴室乾燥機 /陽当り良好 /全居室収納 /駅まで平坦 /閑静な住宅地 /周辺交通量少なめ /前道6m以上 /整形地 /シャワー付洗面台 /対面式キッチン /トイレ2ヶ所 /浴室1坪以上 /2階建 /2面以上バルコニー /複層ガラス /全室南向き /床下収納 /浴室に窓 /吹抜け /前面棟無 /通風良好 /全居室フローリング /ウッドデッキ /食器洗乾燥機 /天井高2.5m以上 /高台に立地 /平坦地 | Price 価格 | | 53,800,000 yen 5380万円 | Floor plan 間取り | | 4LDK + 3S (storeroom) 4LDK+3S(納戸) | Units sold 販売戸数 | | 1 units 1戸 | Total units 総戸数 | | 1 units 1戸 | Land area 土地面積 | | 129.51 sq m (39.17 tsubo) (Registration) 129.51m2(39.17坪)(登記) | Building area 建物面積 | | 139.52 sq m (42.20 tsubo) (Registration) 139.52m2(42.20坪)(登記) | Driveway burden-road 私道負担・道路 | | Nothing, Southeast 6m width 無、南東6m幅 | Completion date 完成時期(築年月) | | December 2013 2013年12月 | Address 住所 | | Funabashi, Chiba Prefecture Maeharanishi 7 千葉県船橋市前原西7 | Traffic 交通 | | Shinkeiseisen "Maehara" walk 6 minutes JR Sobu Line "Tsudanuma" walk 15 minutes 新京成線「前原」歩6分 JR総武線「津田沼」歩15分 | Related links 関連リンク | | [Related Sites of this company] 【この会社の関連サイト】 | Contact お問い合せ先 | | Century 21 (Ltd.) House Pro TEL: 0800-603-6835 [Toll free] mobile phone ・ Also available from PHS Caller ID is not notified Please contact the "we saw SUUMO (Sumo)" If it does not lead, If the real estate company センチュリー21(株)ハウスプロTEL:0800-603-6835【通話料無料】携帯電話・PHSからもご利用いただけます 発信者番号は通知されません 「SUUMO(スーモ)を見た」と問い合わせください つながらない方、不動産会社の方は
| Building coverage, floor area ratio 建ぺい率・容積率 | | 60% ・ 200% 60%・200% | Time residents 入居時期 | | Consultation 相談 | Land of the right form 土地の権利形態 | | Ownership 所有権 | Structure and method of construction 構造・工法 | | Wooden 2-story 木造2階建 | Use district 用途地域 | | One middle and high 1種中高 | Overview and notices その他概要・特記事項 | | Facilities: Public Water Supply, This sewage, City gas, Building confirmation number: No. UDI3C Ken 01162, Parking: car space 設備:公営水道、本下水、都市ガス、建築確認番号:第UDI3C建01162号、駐車場:カースペース | Company profile 会社概要 | | <Marketing alliance (agency)> Governor of Chiba Prefecture (2) No. 015213 (the company), Chiba Prefecture Building Lots and Buildings Transaction Business Association (Corporation) metropolitan area real estate Fair Trade Council member Century 21 (Ltd.) House Pro Yubinbango274-0063 Funabashi, Chiba Prefecture Narashinodai 3-18-9 <販売提携(代理)>千葉県知事(2)第015213号(社)千葉県宅地建物取引業協会会員 (公社)首都圏不動産公正取引協議会加盟センチュリー21(株)ハウスプロ〒274-0063 千葉県船橋市習志野台3-18-9 |
Rendering (appearance)完成予想図(外観)  Wood deck is secured 2 car stylish appearance !! car space eye-catching, South-facing property !!
ウッドデッキが目を引くオシャレな外観!!カースペース2台分確保した、南向きの物件!!
Floor plan間取り図  53,800,000 yen, 4LDK + 3S (storeroom), Land area 129.51 sq m , Building area 139.52 sq m Zenshitsuminami facing floor area of about 38 square meters plan !! Car space two Allowed ・ Gradient ceiling, LDK space was space production in the split-level home is a 24-quires more than space.
5380万円、4LDK+3S(納戸)、土地面積129.51m2、建物面積139.52m2 全室南向きの建坪約38坪プラン!! カースペース2台可・勾配天井、スキップフロアで空間演出したLDKスペースは24帖超の空間です。
Same specifications photos (living)同仕様写真(リビング)  Living example of construction LDK19 Pledge of gradient ceiling. Face-to-face kitchen fixtures counter
リビング施工例 勾配天井のLDK19帖。 対面式キッチン造作カウンター
Same specifications photos (appearance)同仕様写真(外観)  Wood balcony construction cases
ウッドバルコニー施工例
Same specifications photos (living)同仕様写真(リビング)  Sub living example of construction Large storage in sub-living bottom !! 1 roles but to clean your room!
サブリビング施工例 サブリビング下部には大型収納!! お部屋をすっきりさせるのに1役!!
Local photos, including front road前面道路含む現地写真  Local (September 2013) Shooting
現地(2013年9月)撮影
Same specifications photos (Other introspection)同仕様写真(その他内観)  Skip floor staircase also produce fashionable.
スキップフロア階段室もオシャレに演出。
 Stairwell space construction cases
吹抜け階段スペース施工例
Same specifications photos (living)同仕様写真(リビング)  Sub living bottom ・ Warehouse ・ Large storage
サブリビング下部・蔵・大型収納
Shopping centreショッピングセンター  1300m to ion Tsudanuma
イオン津田沼まで1300m
 Tsudanuma to Parco 1200m
津田沼パルコまで1200m
Station駅  JR Sobu Line Tsudanuma 1200m to the Train Station
JR総武線津田沼駅まで1200m
Shopping centreショッピングセンター  Until Morishia Tsudanuma 1200m
モリシア津田沼まで1200m
Junior high school中学校  850m to Funabashi City Maehara junior high school
船橋市立前原中学校まで850m
Station駅  Shinkeiseisen "Maehara" 400m to the station
新京成線「前原」駅まで400m
Location
|