|
|
Funabashi, Chiba Prefecture
千葉県船橋市
|
|
JR Musashino Line "Funabashi Code" walk 11 minutes
JR武蔵野線「船橋法典」歩11分
|
|
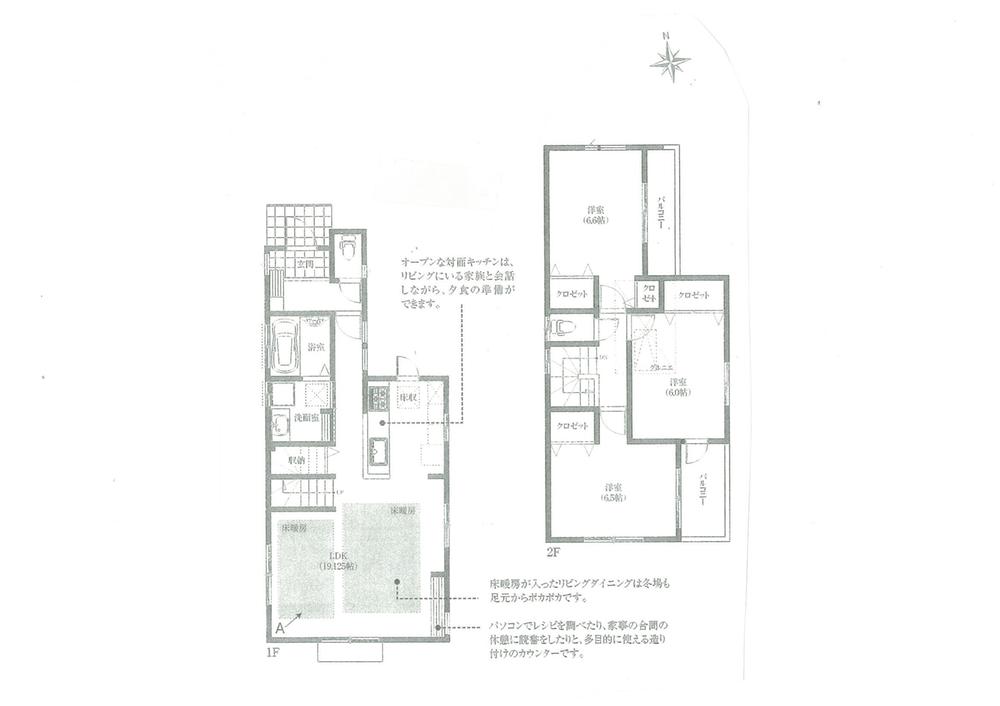
New House for with with friendly floor heating in the family. First floor LDK is spacious 19.125 Pledge, Because the floor heating is attached to the dining and living room, Become a recreation offices of nature and your family, You momentum conversation of family.
家族に優しい床暖房付付の新築戸建て。1階LDKは広々19.125帖、ダイニングとリビングに床暖房が付いているので、自然とご家族の憩いの場所となり、家族の会話が弾みます。
|
|
Because on the second floor balcony is attached in two places Defend also family privacy, You can use functionally the balcony. or, It comes with a attic storage, You can store for the future of the goods to become a precious memories of seasonal and children.
2階にはバルコニーが2ヶ所付いているので家族のプライバシーも守れ、機能的にバルコニーを使えます。又、屋根裏収納が付いており、季節物やお子様の大切な思い出になる品を将来に向け保管出来ます。
|
Features pickup 特徴ピックアップ | | Pre-ground survey / LDK18 tatami mats or more / System kitchen / Bathroom Dryer / Yang per good / All room storage / A quiet residential area / Shaping land / Washbasin with shower / Toilet 2 places / Bathroom 1 tsubo or more / 2-story / 2 or more sides balcony / Double-glazing / Warm water washing toilet seat / Underfloor Storage / The window in the bathroom / TV monitor interphone / Ventilation good / All living room flooring / All room 6 tatami mats or more / water filter / City gas / Flat terrain / Attic storage / Floor heating 地盤調査済 /LDK18畳以上 /システムキッチン /浴室乾燥機 /陽当り良好 /全居室収納 /閑静な住宅地 /整形地 /シャワー付洗面台 /トイレ2ヶ所 /浴室1坪以上 /2階建 /2面以上バルコニー /複層ガラス /温水洗浄便座 /床下収納 /浴室に窓 /TVモニタ付インターホン /通風良好 /全居室フローリング /全居室6畳以上 /浄水器 /都市ガス /平坦地 /屋根裏収納 /床暖房 |
Price 価格 | | 27,800,000 yen 2780万円 |
Floor plan 間取り | | 3LDK 3LDK |
Units sold 販売戸数 | | 1 units 1戸 |
Total units 総戸数 | | 2 units 2戸 |
Land area 土地面積 | | 80.58 sq m (24.37 tsubo) (Registration) 80.58m2(24.37坪)(登記) |
Building area 建物面積 | | 89.23 sq m (26.99 tsubo) (Registration) 89.23m2(26.99坪)(登記) |
Driveway burden-road 私道負担・道路 | | Nothing, North 4m width 無、北4m幅 |
Completion date 完成時期(築年月) | | December 2013 2013年12月 |
Address 住所 | | Funabashi, Chiba Prefecture Fujiwara 1 千葉県船橋市藤原1 |
Traffic 交通 | | JR Musashino Line "Funabashi Code" walk 11 minutes JR武蔵野線「船橋法典」歩11分 |
Related links 関連リンク | | [Related Sites of this company] 【この会社の関連サイト】 |
Contact お問い合せ先 | | TEL: 0800-602-5939 [Toll free] mobile phone ・ Also available from PHS Caller ID is not notified Please contact the "we saw SUUMO (Sumo)" If it does not lead, If the real estate company TEL:0800-602-5939【通話料無料】携帯電話・PHSからもご利用いただけます 発信者番号は通知されません 「SUUMO(スーモ)を見た」と問い合わせください つながらない方、不動産会社の方は
|
Expenses 諸費用 | | Town council fee: unspecified amount 町会費:金額未定 |
Building coverage, floor area ratio 建ぺい率・容積率 | | 60% ・ 200% 60%・200% |
Time residents 入居時期 | | December 2013 2013年12月 |
Land of the right form 土地の権利形態 | | Ownership 所有権 |
Structure and method of construction 構造・工法 | | Wooden 2-story 木造2階建 |
Use district 用途地域 | | One dwelling 1種住居 |
Other limitations その他制限事項 | | Regulations have by the Landscape Act 景観法による規制有 |
Overview and notices その他概要・特記事項 | | Facilities: Public Water Supply, Individual septic tank, City gas, Building confirmation number: No. 13UDI1S Ken 00737, Parking: car space 設備:公営水道、個別浄化槽、都市ガス、建築確認番号:第13UDI1S建00737号、駐車場:カースペース |
Company profile 会社概要 | | <Mediation> Governor of Chiba Prefecture (2) the first 015,317 No. Keiyo Lynette (Ltd.) Funabashi head office Yubinbango273-0005 Funabashi City, Chiba Prefecture Honcho 3-1-21 <仲介>千葉県知事(2)第015317号京葉リネット(株)船橋本店〒273-0005 千葉県船橋市本町3-1-21 |