New Homes » Kanto » Chiba Prefecture » Funabashi
 
| | Funabashi, Chiba Prefecture 千葉県船橋市 |
| JR Sobu Line "Funabashi" walk 17 minutes JR総武線「西船橋」歩17分 |
| Is finally out it was JR Nishifuna walking distance. Living environment is good. Completed for late January, Such as viewing is by building the middle are you out that you can consider in peace. Please check such as fine wood section. ついにでましたJR西船徒歩圏です。生活環境良好です。完成が1月下旬の為、建築途中などみれて安心してご検討できるおうちです。細かい材部などご確認ください。 |
| ■ JR Sobu Line Nishifuna 17 minutes, Keisei line Keisei Nishifuna 13 minutes ■ Kindergarten 7 minutes, Elementary School 5 minutes, Junior High School 10 minutes, Bank 11 minutes, Convenience store 6 minutes ■ Large Super Ion Mall 13 minutes ■ Blow-by, With loft ■ For the remaining 1 buildings, Please see ahead of us ■ Location feel the season of the four seasons ■JR総武線西船17分、京成線京成西船13分■幼稚園7分、小学校5分、中学校10分、銀行11分、コンビニ6分■大型スーパーイオンモール13分■吹き抜け、ロフト付■残り1棟の為、お早目にご覧ください■四季折々の季節を感じるロケーション |
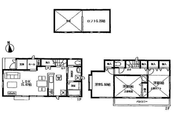
Features pickup 特徴ピックアップ | | Design house performance with evaluation / Energy-saving water heaters / Super close / System kitchen / Yang per good / All room storage / A quiet residential area / LDK15 tatami mats or more / Shaping land / Washbasin with shower / Face-to-face kitchen / Wide balcony / Bathroom 1 tsubo or more / 2-story / South balcony / Double-glazing / Zenshitsuminami direction / Otobasu / Warm water washing toilet seat / loft / The window in the bathroom / Atrium / TV monitor interphone / City gas 設計住宅性能評価付 /省エネ給湯器 /スーパーが近い /システムキッチン /陽当り良好 /全居室収納 /閑静な住宅地 /LDK15畳以上 /整形地 /シャワー付洗面台 /対面式キッチン /ワイドバルコニー /浴室1坪以上 /2階建 /南面バルコニー /複層ガラス /全室南向き /オートバス /温水洗浄便座 /ロフト /浴室に窓 /吹抜け /TVモニタ付インターホン /都市ガス | Price 価格 | | 38,800,000 yen 3880万円 | Floor plan 間取り | | 3LDK 3LDK | Units sold 販売戸数 | | 1 units 1戸 | Total units 総戸数 | | 2 units 2戸 | Land area 土地面積 | | 104.25 sq m (measured) 104.25m2(実測) | Building area 建物面積 | | 82.6 sq m (registration) 82.6m2(登記) | Driveway burden-road 私道負担・道路 | | Nothing, West 5m width 無、西5m幅 | Completion date 完成時期(築年月) | | January 2014 2014年1月 | Address 住所 | | Funabashi, Chiba Prefecture Nishifuna 2 千葉県船橋市西船2 | Traffic 交通 | | JR Sobu Line "Funabashi" walk 17 minutes Keisei Main Line "Keiseifunabashi" walk 13 minutes JR総武線「西船橋」歩17分京成本線「京成船橋」歩13分
| Related links 関連リンク | | [Related Sites of this company] 【この会社の関連サイト】 | Person in charge 担当者より | | Rep Yamazaki Hiroshisei Age: 40 Daigyokai Experience: 20 years of customer-first philosophy! Please tell anything ☆ Considered together, Let's look for a house together ☆ 担当者山崎 宏生年齢:40代業界経験:20年お客様第一主義!なんでもお伝えください☆一緒に考え、一緒にお家を探しましょう☆ | Contact お問い合せ先 | | TEL: 0800-600-1086 [Toll free] mobile phone ・ Also available from PHS Caller ID is not notified Please contact the "we saw SUUMO (Sumo)" If it does not lead, If the real estate company TEL:0800-600-1086【通話料無料】携帯電話・PHSからもご利用いただけます 発信者番号は通知されません 「SUUMO(スーモ)を見た」と問い合わせください つながらない方、不動産会社の方は
| Building coverage, floor area ratio 建ぺい率・容積率 | | 40% ・ 80% 40%・80% | Time residents 入居時期 | | January 2014 will 2014年1月予定 | Land of the right form 土地の権利形態 | | Ownership 所有権 | Structure and method of construction 構造・工法 | | Wooden 2-story 木造2階建 | Use district 用途地域 | | One low-rise 1種低層 | Overview and notices その他概要・特記事項 | | Contact: Yamazaki Hiroshisei, Facilities: Public Water Supply, This sewage, City gas, Building confirmation number: HPA-13-05828-1, Parking: car space 担当者:山崎 宏生、設備:公営水道、本下水、都市ガス、建築確認番号:HPA-13-05828-1、駐車場:カースペース | Company profile 会社概要 | | <Mediation> Governor of Chiba Prefecture (1) No. 016379 (Ltd.) House Dream Yubinbango273-0045 Funabashi, Chiba Prefecture Yamate 3-1-31 <仲介>千葉県知事(1)第016379号(株)ハウスドリーム〒273-0045 千葉県船橋市山手3-1-31 |
 Floor plan
間取り図
Local appearance photo現地外観写真  appearance
外観
Floor plan間取り図  38,800,000 yen, 3LDK, Land area 104.25 sq m , Building area 82.6 sq m floor plan
3880万円、3LDK、土地面積104.25m2、建物面積82.6m2 間取り図
Same specifications photo (kitchen)同仕様写真(キッチン)  Same specification kitchen
同仕様キッチン
Same specifications photo (bathroom)同仕様写真(浴室)  Same specifications bus
同仕様バス
Station駅  JR Nishi-Funabashi Train Station 1360m JR Nishi-Funabashi Station
JR西船橋駅まで1360m JR西船橋駅
Same specifications photos (Other introspection)同仕様写真(その他内観)  Same specifications toilet
同仕様トイレ
Otherその他  The Housing Performance Indication System
住宅性能表示制度とは
Primary school小学校  Funabashi Municipal West Sea God 338m Funabashi Municipal West Sea God elementary school to elementary school
船橋市立西海神小学校まで338m 船橋市立西海神小学校
Same specifications photos (Other introspection)同仕様写真(その他内観)  Same specifications washbasin
同仕様洗面台
Otherその他  The Housing Performance Indication System
住宅性能表示制度とは
Junior high school中学校  774m to Funabashi Municipal god of the sea Junior High School Funabashi Municipal god of the sea Junior High School
船橋市立海神中学校まで774m 船橋市立海神中学校
Otherその他  The Housing Performance Indication System
住宅性能表示制度とは
 The Housing Performance Indication System
住宅性能表示制度とは
 The Housing Performance Indication System
住宅性能表示制度とは
 The Housing Performance Indication System
住宅性能表示制度とは
Location
|