|
|
Funabashi, Chiba Prefecture
千葉県船橋市
|
|
Tobu Noda line "Magomezawa" walk 15 minutes
東武野田線「馬込沢」歩15分
|
|
The kitchen is, Dishwasher in the open kitchen, Cup with board. Bathroom, With microjet. LD is, Designer House and each fully equipped with under-floor heating. Ground is a 20-year warranty.
キッチンは、オープンキッチンに食洗機、カップボード付。浴室は、マイクロジェット付。LDは、床暖房付と各設備充実のデザイナーズハウス。地盤20年保証です。
|
|
■ The entrance, Large shoes with cloak ■ On the first floor dining part, Because there is a blow, Daylighting good ■ Come once, Please preview
■玄関には、大型シューズクローク付■1階ダイニング部分には、吹抜けがある為、採光良好■是非一度、ご内見下さい
|
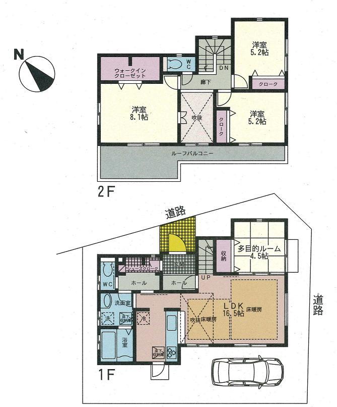
Features pickup 特徴ピックアップ | | Corresponding to the flat-35S / Pre-ground survey / Immediate Available / System kitchen / All room storage / LDK15 tatami mats or more / Corner lot / Japanese-style room / Washbasin with shower / Face-to-face kitchen / Barrier-free / Toilet 2 places / Bathroom 1 tsubo or more / South balcony / Underfloor Storage / The window in the bathroom / Ventilation good / Dish washing dryer / Walk-in closet / water filter / Living stairs / City gas / Whirlpool / Flat terrain / Floor heating フラット35Sに対応 /地盤調査済 /即入居可 /システムキッチン /全居室収納 /LDK15畳以上 /角地 /和室 /シャワー付洗面台 /対面式キッチン /バリアフリー /トイレ2ヶ所 /浴室1坪以上 /南面バルコニー /床下収納 /浴室に窓 /通風良好 /食器洗乾燥機 /ウォークインクロゼット /浄水器 /リビング階段 /都市ガス /ジェットバス /平坦地 /床暖房 |
Price 価格 | | 26,800,000 yen 2680万円 |
Floor plan 間取り | | 4LDK + S (storeroom) 4LDK+S(納戸) |
Units sold 販売戸数 | | 1 units 1戸 |
Land area 土地面積 | | 108.61 sq m (32.85 tsubo) (Registration) 108.61m2(32.85坪)(登記) |
Building area 建物面積 | | 99.37 sq m (30.05 square meters) 99.37m2(30.05坪) |
Driveway burden-road 私道負担・道路 | | Nothing, Southeast 4.5m width, North 4m width 無、南東4.5m幅、北4m幅 |
Completion date 完成時期(築年月) | | August 2013 2013年8月 |
Address 住所 | | Funabashi, Chiba Prefecture Asahimachi 3 千葉県船橋市旭町3 |
Traffic 交通 | | Tobu Noda line "Magomezawa" walk 15 minutes 東武野田線「馬込沢」歩15分 |
Person in charge 担当者より | | Personnel Kazuhiko Nakata house is not intended to show, I think the thing to buy in order to live even more comfortable. Rather than look for thinking now only of lifestyle, While also anticipation of future lifestyle, Let's go to your house hunting trip together! 担当者仲田和彦お家は見せるものではなく、より一層快適に生活する為に購入するものだと私は思います。今のライフスタイルだけを考えて探すのではなく、将来のライフスタイルも見据えながら、一緒にお家探しの旅に出かけましょう! |
Contact お問い合せ先 | | TEL: 0800-603-3089 [Toll free] mobile phone ・ Also available from PHS Caller ID is not notified Please contact the "we saw SUUMO (Sumo)" If it does not lead, If the real estate company TEL:0800-603-3089【通話料無料】携帯電話・PHSからもご利用いただけます 発信者番号は通知されません 「SUUMO(スーモ)を見た」と問い合わせください つながらない方、不動産会社の方は
|
Building coverage, floor area ratio 建ぺい率・容積率 | | Fifty percent ・ Hundred percent 50%・100% |
Time residents 入居時期 | | Immediate available 即入居可 |
Land of the right form 土地の権利形態 | | Ownership 所有権 |
Structure and method of construction 構造・工法 | | Wooden 2-story 木造2階建 |
Use district 用途地域 | | One low-rise, One dwelling 1種低層、1種住居 |
Overview and notices その他概要・特記事項 | | Contact: Kazuhiko Nakata, Facilities: Public Water Supply, City gas, Parking: car space 担当者:仲田和彦、設備:公営水道、都市ガス、駐車場:カースペース |
Company profile 会社概要 | | <Mediation> Governor of Chiba Prefecture (3) No. 014203 (Corporation) All Japan Real Estate Association (Corporation) metropolitan area real estate Fair Trade Council member Century 21 Nippon nest Ltd. Yubinbango273-0107 Chiba Prefecture Kamagaya Shinkamagaya 4-14-6 <仲介>千葉県知事(3)第014203号(公社)全日本不動産協会会員 (公社)首都圏不動産公正取引協議会加盟センチュリー21日本ネスト(株)〒273-0107 千葉県鎌ケ谷市新鎌ケ谷4-14-6 |