New Homes » Kanto » Chiba Prefecture » Funabashi
 
| | Funabashi, Chiba Prefecture 千葉県船橋市 |
| JR Sobu Line "Funabashi" walk 15 minutes JR総武線「船橋」歩15分 |
| Convenient to commute in 2 wayside Available! Living space also clean spacious in the storage space of large capacity! Face-to-face kitchen where you can enjoy a conversation with your family, even while cooking 2沿線利用可で通勤通学に便利! 大容量の収納スペースで住空間もスッキリ広々! 料理をしながらでもご家族との会話を楽しめる対面キッチン |
| It is possible the day guidance! Also together we will guide you model house of local and nearby. Century 21 Home please feel free to contact us to list. 当日案内可能です!現地と近くのモデルハウスもあわせてご案内致します。センチュリー21ホームリストまでお気軽にお問い合わせください。 |
Features pickup 特徴ピックアップ | | Measures to conserve energy / Pre-ground survey / Parking two Allowed / Immediate Available / 2 along the line more accessible / Super close / Facing south / System kitchen / Bathroom Dryer / Yang per good / All room storage / LDK15 tatami mats or more / Corner lot / Japanese-style room / Washbasin with shower / Face-to-face kitchen / Toilet 2 places / Bathroom 1 tsubo or more / 2-story / South balcony / Double-glazing / Zenshitsuminami direction / Warm water washing toilet seat / Underfloor Storage / The window in the bathroom / TV monitor interphone / Ventilation good / water filter / City gas / Storeroom / All rooms are two-sided lighting 省エネルギー対策 /地盤調査済 /駐車2台可 /即入居可 /2沿線以上利用可 /スーパーが近い /南向き /システムキッチン /浴室乾燥機 /陽当り良好 /全居室収納 /LDK15畳以上 /角地 /和室 /シャワー付洗面台 /対面式キッチン /トイレ2ヶ所 /浴室1坪以上 /2階建 /南面バルコニー /複層ガラス /全室南向き /温水洗浄便座 /床下収納 /浴室に窓 /TVモニタ付インターホン /通風良好 /浄水器 /都市ガス /納戸 /全室2面採光 | Price 価格 | | 34,800,000 yen ~ 39,800,000 yen 3480万円 ~ 3980万円 | Floor plan 間取り | | 4LDK ~ 4LDK + 2S (storeroom) 4LDK ~ 4LDK+2S(納戸) | Units sold 販売戸数 | | 4 units 4戸 | Total units 総戸数 | | 4 units 4戸 | Land area 土地面積 | | 109.42 sq m ~ 136.53 sq m (33.09 tsubo ~ 41.30 tsubo) (Registration) 109.42m2 ~ 136.53m2(33.09坪 ~ 41.30坪)(登記) | Building area 建物面積 | | 96.39 sq m ~ 100.43 sq m (29.15 tsubo ~ 30.37 tsubo) (Registration) 96.39m2 ~ 100.43m2(29.15坪 ~ 30.37坪)(登記) | Driveway burden-road 私道負担・道路 | | Road width: 4m 道路幅:4m | Completion date 完成時期(築年月) | | November 2013 2013年11月 | Address 住所 | | Funabashi, Chiba Prefecture god of the sea 6 千葉県船橋市海神6 | Traffic 交通 | | JR Sobu Line "Funabashi" walk 15 minutes Keisei Main Line "Emperor of the Sea" walk 5 minutes AzumaYo high-speed rail, "Tokai God" walk 13 minutes JR総武線「船橋」歩15分京成本線「海神」歩5分 東葉高速鉄道「東海神」歩13分
| Related links 関連リンク | | [Related Sites of this company] 【この会社の関連サイト】 | Person in charge 担当者より | | Person in charge of real-estate and building Onuma Yoshinori Age: 20 Daigyokai Experience: What is the living environment of good properties for three years customers? . We will you subjected to the motto of "send the sincerity". Please feel free to contact. 担当者宅建小沼 良徳年齢:20代業界経験:3年お客様にとって住環境の良い物件とは何か??私におまかせください。『まごころをおくる』をモットーにお供させていただきます。お気軽にご連絡ください。 | Contact お問い合せ先 | | TEL: 0800-602-6275 [Toll free] mobile phone ・ Also available from PHS Caller ID is not notified Please contact the "we saw SUUMO (Sumo)" If it does not lead, If the real estate company TEL:0800-602-6275【通話料無料】携帯電話・PHSからもご利用いただけます 発信者番号は通知されません 「SUUMO(スーモ)を見た」と問い合わせください つながらない方、不動産会社の方は
| Most price range 最多価格帯 | | 39 million yen (2 units) 3900万円台(2戸) | Building coverage, floor area ratio 建ぺい率・容積率 | | Kenpei rate: 60%, Volume ratio: 160% 建ペい率:60%、容積率:160% | Time residents 入居時期 | | Immediate available 即入居可 | Land of the right form 土地の権利形態 | | Ownership 所有権 | Structure and method of construction 構造・工法 | | Wooden 2-story 木造2階建 | Use district 用途地域 | | Quasi-residence, One dwelling 準住居、1種住居 | Overview and notices その他概要・特記事項 | | Contact: Onuma Yoshinori, Building confirmation number: HPA-13-04555-1 ~ 担当者:小沼 良徳、建築確認番号:HPA-13-04555-1 ~ | Company profile 会社概要 | | <Mediation> Governor of Chiba Prefecture (1) No. 016303 Century 21 (Ltd.) Home list Yubinbango270-0034 Matsudo, Chiba Prefecture Matsudo 1-364 <仲介>千葉県知事(1)第016303号センチュリー21(株)ホームリスト〒270-0034 千葉県松戸市新松戸1-364 |
Floor plan間取り図  (1 Building), Price 39,800,000 yen, 4LDK+S, Land area 109.42 sq m , Building area 97.6 sq m
(1号棟)、価格3980万円、4LDK+S、土地面積109.42m2、建物面積97.6m2
Station駅  JR Central ・ Sobu 1200m to "bridge" station
JR中央・総武線「船橋」駅まで1200m
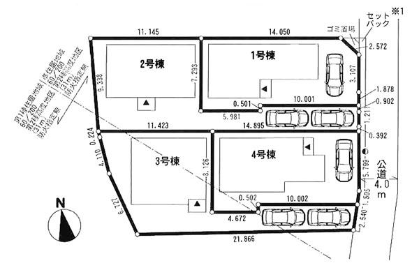
 The entire compartment Figure
全体区画図
Floor plan間取り図  (Building 2), Price 34,800,000 yen, 4LDK+S, Land area 136.53 sq m , Building area 96.39 sq m
(2号棟)、価格3480万円、4LDK+S、土地面積136.53m2、建物面積96.39m2
 (3 Building), Price 37,800,000 yen, 4LDK, Land area 134.31 sq m , Building area 96.78 sq m
(3号棟)、価格3780万円、4LDK、土地面積134.31m2、建物面積96.78m2
 (4 Building), Price 39,800,000 yen, 4LDK+2S, Land area 113.14 sq m , Building area 100.43 sq m
(4号棟)、価格3980万円、4LDK+2S、土地面積113.14m2、建物面積100.43m2
Station駅  Keisei Main Line "Emperor of the Sea" 400m to the station
京成本線「海神」駅まで400m
Primary school小学校  1050m to Funabashi Municipal West Sea God Elementary School
船橋市立西海神小学校まで1050m
Junior high school中学校  1250m to Funabashi Municipal god of the sea Junior High School
船橋市立海神中学校まで1250m
Supermarketスーパー  To Ito-Yokado Funabashi shop 1287m
イトーヨーカドー船橋店まで1287m
 813m to Tobu Store Co., Ltd. Funabashi Minamihon the town shop
東武ストア船橋南本町店まで813m
Location
|