New Homes » Kanto » Chiba Prefecture » Kashiwa
 
| | Kashiwa City, Chiba Prefecture 千葉県柏市 |
| Tsukuba Express "Kashiwa Tanaka" walk 8 minutes つくばエクスプレス「柏たなか」歩8分 |
| City and the new land of the nature Funato Kashiwa in harmony! The readjustment areas in development! 都市と自然が調和した柏市船戸の新しい土地!発展中の区画整理地内! |
| In from Akihabara Station to Tsukuba Express line Kashiwa Tanaka Station 31 minutes and access good car in about 15 minutes a large shopping mall pink of "LaLaport Kashiwanoha", We spend a pleasant holiday, such as shopping and movies. Such is surrounded by green "Kashiwashiritsu northern green space" in children and catch the ball can, In the spring in "Chiba Prefectural Kashiwanoha park" Ya Cherry Blossom Festival to be seen cherry about 840 pieces of full bloom, Events where you can enjoy with your family, such as Waterland is packed in the summer vacation. 秋葉原駅からつくばエクスプレス線柏たなか駅まで31分とアクセス良好車で約15分の大型ショッピンクモール「ららぽーと柏の葉」では、ショッピングや映画など楽しい休日を過ごせます。緑に囲まれた「柏市立北部緑地」ではお子様とキャッチボールなどが出来、「千葉県立柏の葉公園」では春には約840本の満開の桜が見れるさくらまつりや、夏休みにはウォーターランドなどのご家族で楽しめるイベントが満載です。 |
Features pickup 特徴ピックアップ | | Or more before road 6m / Shaping land / Flat terrain / Readjustment land within 前道6m以上 /整形地 /平坦地 /区画整理地内 | Property name 物件名 | | Kashiwa Tanaka 柏たなか | Price 価格 | | 49,800,000 yen 4980万円 | Floor plan 間取り | | 4LDK 4LDK | Units sold 販売戸数 | | 1 units 1戸 | Total units 総戸数 | | 1 units 1戸 | Land area 土地面積 | | 165.36 sq m 165.36m2 | Building area 建物面積 | | 112.2 sq m 112.2m2 | Completion date 完成時期(築年月) | | In late September 2013 2013年9月下旬 | Address 住所 | | Kashiwa City, Chiba Prefecture Funato 千葉県柏市船戸 | Traffic 交通 | | Tsukuba Express "Kashiwa Tanaka" walk 8 minutes つくばエクスプレス「柏たなか」歩8分
| Related links 関連リンク | | [Related Sites of this company] 【この会社の関連サイト】 | Contact お問い合せ先 | | Misawa MJ Home Co., Ltd. Kashiwanoha office TEL: 04-7160-2711 (dies), please contact the "saw SUUMO (Sumo)" ミサワMJホーム株式会社 柏の葉営業所TEL:04-7160-2711(代)「SUUMO(スーモ)を見た」と問い合わせください | Building coverage, floor area ratio 建ぺい率・容積率 | | Kenpei rate: 50%, Volume ratio: 100% 建ペい率:50%、容積率:100% | Time residents 入居時期 | | Consultation 相談 | Land of the right form 土地の権利形態 | | Ownership 所有権 | Structure and method of construction 構造・工法 | | Wooden 2-story (framing method) 木造2階建(軸組工法) | Construction 施工 | | Misawa MJ Home ミサワMJホーム | Use district 用途地域 | | One low-rise 1種低層 | Land category 地目 | | Residential land 宅地 | Overview and notices その他概要・特記事項 | | Building confirmation number: the first BVJ-R13-10-01625 建築確認番号:第BVJ-R13-10-01625 | Company profile 会社概要 | | <Building seller> Governor of Tokyo (1) the first 093,550 No. Misawa MJ Home Co., Ltd. 160-0023 Tokyo Nishi-Shinjuku, Shinjuku-ku, 1-24-1 <建物売主>東京都知事(1)第093550号ミサワMJホーム(株)〒160-0023 東京都新宿区西新宿1-24-1 |
Local appearance photo現地外観写真  Local (10 May 2013) Shooting
現地(2013年10月)撮影
Kitchenキッチン  Indoor (September 2013) Shooting
室内(2013年9月)撮影
Wash basin, toilet洗面台・洗面所  Indoor (September 2013) Shooting
室内(2013年9月)撮影
Construction ・ Construction method ・ specification構造・工法・仕様  MJWOOD seismic wooden house + vibration control device MGEO-N
MJWOODは耐震木造住宅+制振装置MGEO-N
 We offer a pleasant residence while feeling the transitory of the four seasons in Japan's corporate culture.
日本の風土に四季の移ろいを感じながら心地よい住まいを提供いたします。
Station駅  640m to Kashiwa Tanaka Station
柏たなか駅まで640m
Primary school小学校  Tanakakita until elementary school 1500m
田中北小学校まで1500m
Junior high school中学校  1500m to Kashiwa City Tanaka Junior High School
柏市立田中中学校まで1500m
Kindergarten ・ Nursery幼稚園・保育園  350m to love nursery
あい保育園まで350m
Park公園  Kashiwashiritsu to northern green space 960m
柏市立北部緑地まで960m
Hospital病院  1400m until Watanabe dental clinic
渡辺歯科医院まで1400m
Other Environmental Photoその他環境写真  Kashiwashi Tanaka 1670m to neighborhood center
柏市田中近隣センターまで1670m
 Koaota 350m to Furusato Center
小青田ふるさとセンターまで350m
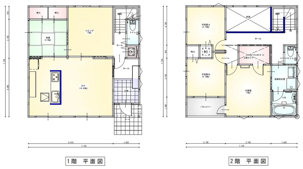
Floor plan間取り図  640m to Kashiwa Tanaka Station
柏たなか駅まで640m
Location
|