New Homes » Kanto » Chiba Prefecture » Nagareyama
 
| | Chiba Prefecture Nagareyama 千葉県流山市 |
| Tobu Noda line "Edogawadai" walk 20 minutes 東武野田線「江戸川台」歩20分 |
| Corresponding to the flat-35S, Year Available, Land 50 square meters or more, Energy-saving water heaters, System kitchen, Parking two Allowed, Bathroom Dryer, Yang per good, All room storage, Flat to the station, LDK15 tatami mats or more, Around traffic fewer, Corner lotese-style room, garden, Washbasin with shower, Face-to-face kitchen, Toilet 2 places, Bathroom 1 tsubo or more, 2-story, South balcony, Double-glazing, Zenshitsuminami direction, Warm water washing toilet seat, TV with bathroom, Underfloor Storage, The window in the bathroom, TV monitor interphone, Leafy residential area, Mu front building, Ventilation good, Good view, All room 6 tatami mats or more, Water filter, All rooms are two-sided lighting, A large gap between the neighboring house, Fireworks viewing, Flat terrain, Development subdivision in フラット35Sに対応、年内入居可、土地50坪以上、省エネ給湯器、システムキッチン、駐車2台可、浴室乾燥機、陽当り良好、全居室収納、駅まで平坦、LDK15畳以上、周辺交通量少なめ、角地、和室、庭、シャワー付洗面台、対面式キッチン、トイレ2ヶ所、浴室1坪以上、2階建、南面バルコニー、複層ガラス、全室南向き、温水洗浄便座、TV付浴室、床下収納、浴室に窓、TVモニタ付インターホン、緑豊かな住宅地、前面棟無、通風良好、眺望良好、全居室6畳以上、浄水器、全室2面採光、隣家との間隔が大きい、花火大会鑑賞、平坦地、開発分譲地内 |
Features pickup 特徴ピックアップ | | Corresponding to the flat-35S / Year Available / Parking two Allowed / Energy-saving water heaters / System kitchen / Bathroom Dryer / Yang per good / All room storage / Flat to the station / LDK15 tatami mats or more / Around traffic fewer / Japanese-style room / Washbasin with shower / Face-to-face kitchen / Toilet 2 places / Bathroom 1 tsubo or more / 2-story / South balcony / Double-glazing / Zenshitsuminami direction / Warm water washing toilet seat / TV with bathroom / Nantei / Underfloor Storage / The window in the bathroom / TV monitor interphone / Leafy residential area / Mu front building / Ventilation good / Good view / All room 6 tatami mats or more / Water filter / All rooms are two-sided lighting / A large gap between the neighboring house / Fireworks viewing / Flat terrain / Development subdivision in フラット35Sに対応 /年内入居可 /駐車2台可 /省エネ給湯器 /システムキッチン /浴室乾燥機 /陽当り良好 /全居室収納 /駅まで平坦 /LDK15畳以上 /周辺交通量少なめ /和室 /シャワー付洗面台 /対面式キッチン /トイレ2ヶ所 /浴室1坪以上 /2階建 /南面バルコニー /複層ガラス /全室南向き /温水洗浄便座 /TV付浴室 /南庭 /床下収納 /浴室に窓 /TVモニタ付インターホン /緑豊かな住宅地 /前面棟無 /通風良好 /眺望良好 /全居室6畳以上 /浄水器 /全室2面採光 /隣家との間隔が大きい /花火大会鑑賞 /平坦地 /開発分譲地内 | Price 価格 | | 22,800,000 yen 2280万円 | Floor plan 間取り | | 4LDK 4LDK | Units sold 販売戸数 | | 1 units 1戸 | Total units 総戸数 | | 6 units 6戸 | Land area 土地面積 | | 165.14 sq m (49.95 tsubo) (measured) 165.14m2(49.95坪)(実測) | Building area 建物面積 | | 96.88 sq m (29.30 tsubo) (measured) 96.88m2(29.30坪)(実測) | Driveway burden-road 私道負担・道路 | | North 5m public road 北側5m公道 | Completion date 完成時期(築年月) | | 2013 end of October 2013年10月末 | Address 住所 | | Chiba Prefecture Nagareyama Oaza north 千葉県流山市大字北 | Traffic 交通 | | Tobu Noda line "Edogawadai" walk 20 minutes 東武野田線「江戸川台」歩20分 | Related links 関連リンク | | [Related Sites of this company] 【この会社の関連サイト】 | Contact お問い合せ先 | | TEL: 0120799-905 [Toll free] Please contact the "saw SUUMO (Sumo)" TEL:0120799-905【通話料無料】「SUUMO(スーモ)を見た」と問い合わせください | Sale schedule 販売スケジュール | | It became the final 1 buildings thanks to like! Weekend, we have held a local tour. Your visit, We look forward to. おかげ様で最終1棟となりました!週末は現地見学会を開催しております。御来場、お待ちしております。 | Building coverage, floor area ratio 建ぺい率・容積率 | | Kenpei rate: 50%, Volume ratio: 100% 建ペい率:50%、容積率:100% | Time residents 入居時期 | | Immediate available 即入居可 | Land of the right form 土地の権利形態 | | Ownership 所有権 | Structure and method of construction 構造・工法 | | 2-story wooden 木造2階建て | Use district 用途地域 | | Two low-rise 2種低層 | Land category 地目 | | Residential land 宅地 | Overview and notices その他概要・特記事項 | | Building confirmation number: No. 13UDI3S Ken 00526 建築確認番号:第13UDI3S建00526号 | Company profile 会社概要 | | <Mediation> Minister of Land, Infrastructure and Transport (1) No. 008281 (Ltd.) sink ・ Global Matsudo branch Yubinbango270-2253 Matsudo, Chiba Prefecture Higurashi 6-192 first floor <仲介>国土交通大臣(1)第008281号(株)シンク・グローバル松戸支店〒270-2253 千葉県松戸市日暮6-192 1階 |
Local photos, including front road前面道路含む現地写真  1 Building
1号棟
Local appearance photo現地外観写真  Building 2
2号棟
 Living
リビング
 Kitchen
キッチン
Bathroom浴室  Bathroom
バスルーム
Wash basin, toilet洗面台・洗面所  bathroom
洗面室
Non-living roomリビング以外の居室  Western style room
洋室
 Western style room
洋室
 Toilet
トイレ
The entire compartment Figure全体区画図  All six buildings! We started selling.
全6棟!販売開始致しました。
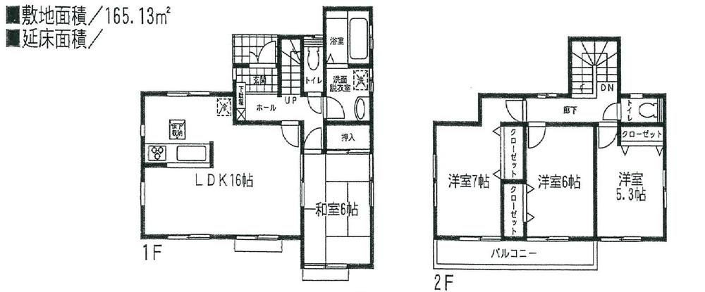
Floor plan間取り図  (1 Building), Price 22,800,000 yen, 4LDK, Land area 165.14 sq m , Building area 96.88 sq m
(1号棟)、価格2280万円、4LDK、土地面積165.14m2、建物面積96.88m2
Location
|