New Homes » Kanto » Chiba Prefecture » Noda
 
| | Chiba Prefecture Noda 千葉県野田市 |
| Tobu Noda line "Baigo" walk 9 minutes 東武野田線「梅郷」歩9分 |
| ☆ ☆ [PanaHome] The Seasons Noda Baigo stage II ☆ ☆ PanaHome is Noda big project Tobu of all 52 compartments to deliver "Baigo" a quiet residential area of a 9-minute walk from the station ☆☆ 【パナホーム】 ザ シーズンズ野田梅郷ステージII ☆☆パナホームがお届けする全52区画のビッグプロジェクト東武野田線「梅郷」駅より徒歩9分の閑静な住宅街 |
| ■ Comfortable access To Kashiwa 10 minutes (Tobu Noda line use) To Akihabara 36 minutes (Tobu Noda line "Nagareyama Otaka Forest" transfer Tsukuba Express rapid use) ■ Freely To Parenting Walk to Noda City Southern Elementary School 11 minutes 2 minute walk to Noda City Southern Junior High School ■ Safe and secure house building Also safe for the huge earthquake by lightweight steel frame that PanaHome is proud Of course, all building, Peace of mind in the long-term high-quality housing and construction performance evaluation acquired ■ Standard equipment of enhancement All room lighting / Two air conditioning (living ・ The main bedroom) Cupboard / Curtain rail ■快適なアクセス 柏へ10分(東武野田線利用) 秋葉原へ36分(東武野田線「流山おおたかの森」乗換つくばエクスプレス快速利用) ■のびのびと子育て 野田市立南部小学校へ徒歩11分 野田市立南部中学校へ徒歩2分 ■安全で安心な住まい造り パナホームが誇る軽量鉄骨造により巨大地震に対しても安全 もちろん全棟、長期優良住宅及び建設性能評価取得済みで安心 ■充実の標準装備 全居室照明/エアコン2台(リビング・主寝室) カップボード/カーテンレール |
Local guide map 現地案内図 | | Local guide map 現地案内図 | Features pickup 特徴ピックアップ | | Construction housing performance with evaluation / Design house performance with evaluation / Eco-point target housing / Measures to conserve energy / Long-term high-quality housing / Corresponding to the flat-35S / Airtight high insulated houses / Pre-ground survey / Parking two Allowed / Immediate Available / Land 50 square meters or more / LDK18 tatami mats or more / Energy-saving water heaters / It is close to golf course / Super close / Facing south / System kitchen / Bathroom Dryer / Yang per good / All room storage / Flat to the station / Siemens south road / A quiet residential area / Or more before road 6m / Japanese-style room / Shaping land / garden / Face-to-face kitchen / Wide balcony / Toilet 2 places / Bathroom 1 tsubo or more / 2-story / South balcony / Zenshitsuminami direction / Warm water washing toilet seat / Nantei / Underfloor Storage / The window in the bathroom / Atrium / TV monitor interphone / Leafy residential area / Urban neighborhood / Ventilation good / All living room flooring / IH cooking heater / Dish washing dryer / Walk-in closet / Or more ceiling height 2.5m / Water filter / Living stairs / All-electric / City gas / Flat terrain / Floor heating / Development subdivision in / Readjustment land within 建設住宅性能評価付 /設計住宅性能評価付 /エコポイント対象住宅 /省エネルギー対策 /長期優良住宅 /フラット35Sに対応 /高気密高断熱住宅 /地盤調査済 /駐車2台可 /即入居可 /土地50坪以上 /LDK18畳以上 /省エネ給湯器 /ゴルフ場が近い /スーパーが近い /南向き /システムキッチン /浴室乾燥機 /陽当り良好 /全居室収納 /駅まで平坦 /南側道路面す /閑静な住宅地 /前道6m以上 /和室 /整形地 /庭 /対面式キッチン /ワイドバルコニー /トイレ2ヶ所 /浴室1坪以上 /2階建 /南面バルコニー /全室南向き /温水洗浄便座 /南庭 /床下収納 /浴室に窓 /吹抜け /TVモニタ付インターホン /緑豊かな住宅地 /都市近郊 /通風良好 /全居室フローリング /IHクッキングヒーター /食器洗乾燥機 /ウォークインクロゼット /天井高2.5m以上 /浄水器 /リビング階段 /オール電化 /都市ガス /平坦地 /床暖房 /開発分譲地内 /区画整理地内 | Event information イベント情報 | | Open House (Please be sure to ask in advance) schedule / Every Saturday, Sunday and public holidays time / 10:00 ~ 18:00 ■ From August 8 5th ready-built condominium sale! ■ From 1 July Phase 3 ready-built sale price revision! ■ June 15, 4th ready-built condominium sale! ■ "PanaHome 50th Anniversary Fair" was held in! ※ For more information, please contact オープンハウス(事前に必ずお問い合わせください)日程/毎週土日祝時間/10:00 ~ 18:00■8月8日より 第5期建売分譲発売!■7月1日より 第3期建売分譲価格改定!■6月15日より 第4期建売分譲発売!■「パナホーム創業50周年記念フェア」開催中!※詳しくはお問い合わせ下さい | Property name 物件名 | | The Seasons Noda Baigo Stage II Phase 3, Phase 4 ready-built condominium ザシーズンズ野田梅郷ステージII第3期、4期建売分譲 | Price 価格 | | 29,970,000 yen ~ 41,910,000 yen 2997万円 ~ 4191万円 | Floor plan 間取り | | 3LDK ~ 4LDK 3LDK ~ 4LDK | Units sold 販売戸数 | | 4 units 4戸 | Total units 総戸数 | | 52 units 52戸 | Land area 土地面積 | | 140.24 sq m ~ 217.3 sq m 140.24m2 ~ 217.3m2 | Building area 建物面積 | | 100.93 sq m ~ 115.81 sq m 100.93m2 ~ 115.81m2 | Completion date 完成時期(築年月) | | June 2013 2013年6月 | Address 住所 | | Chiba Prefecture Noda Hanai 350-1 千葉県野田市花井350-1他(地番) | Traffic 交通 | | Tobu Noda line "Baigo" walk 9 minutes 東武野田線「梅郷」歩9分 | Related links 関連リンク | | [Related Sites of this company] 【この会社の関連サイト】 | Person in charge 担当者より | | [Regarding this property.] PanaHome 50th Anniversary Fair held in! ! For more information, please contact. 【この物件について】パナホーム創業50周年記念フェア開催中!!詳しくはお問い合わせ下さい。 | Contact お問い合せ先 | | PanaHome Co., Ltd. Environment and Development Branch Tokyo metropolitan area Sales Department TEL: 0120-98-2223 [Toll free] (mobile phone ・ Also available from PHS. ) Please contact the "saw SUUMO (Sumo)" パナホーム株式会社 環境開発支社 首都圏営業部TEL:0120-98-2223【通話料無料】(携帯電話・PHSからもご利用いただけます。)「SUUMO(スーモ)を見た」と問い合わせください | Sale schedule 販売スケジュール | | More first-come-first-served basis application being accepted より先着順申込受付中 | Most price range 最多価格帯 | | 29 million yen (1 units) 2900万円台(1戸) | Building coverage, floor area ratio 建ぺい率・容積率 | | Fifty percent / Hundred percent 50%/100% | Time residents 入居時期 | | Immediate available 即入居可 | Land of the right form 土地の権利形態 | | Ownership 所有権 | Structure and method of construction 構造・工法 | | Light-gauge steel 軽量鉄骨 | Construction 施工 | | PanaHome Co., Ltd. パナホーム株式会社 | Use district 用途地域 | | One low-rise 1種低層 | Land category 地目 | | Residential land 宅地 | Overview and notices その他概要・特記事項 | | Building confirmation number: No. ERI13002714 (2013 January 25 date), Tokyo Electric Power Co. City gas Public water supply and sewerage systems 建築確認番号:第ERI13002714号(平成25年1月25日付)、東京電力 都市ガス 公共上下水道 | Company profile 会社概要 | | [Advertiser] <Seller> Minister of Land, Infrastructure and Transport (13) No. 000982 (one company) Real Estate Association (Corporation) metropolitan area real estate Fair Trade Council member PanaHome Co., Environment and Development Branch metropolitan area sales department 160-0023 Tokyo Nishi-Shinjuku, Shinjuku-ku, 2-3-1 Shinjuku monolith 11th floor [Seller] PanaHome Co., Ltd. [Sale] PanaHome Corporation (seller) 【広告主】<売主>国土交通大臣(13)第000982号(一社)不動産協会会員 (公社)首都圏不動産公正取引協議会加盟パナホーム(株)環境開発支社 首都圏営業部〒160-0023 東京都新宿区西新宿2-3-1 新宿モノリス11階【売主】パナホーム株式会社【販売】パナホーム株式会社(売主) |
Local appearance photo現地外観写真  We look forward to your visit of everyone.
皆様のご来場をお待ちしております。
 ~ Southern Europe of the wind blows in the orange tile and white tile exterior wall ~ Phase 1 ready-built condominium appearance (2012. May shooting) sale already
~ オレンジ瓦と白いタイル外壁で南欧の風が吹く ~ 第1期建売分譲 外観 (平成24年5月撮影)分譲済
Kitchenキッチン  ■ Also adopted and convenient pull-out ones of Panasonic kitchen back Kitchen and same type cupboard of (cupboard) also has realized the abundant amount of storage in the standard equipment
■パナソニックキッチン奥の物も取り出しやすい引き出し式を採用 キッチンと同型のカップボード(食器棚)も標準装備で豊富な収納量を実現しています
Other Equipmentその他設備  Installation cupboard of not only the amount of storage ensure, It is safe if there is a seismic stopper at the time of the earthquake
据付のカップボードは収納量確保だけでなく、地震の際に耐震ストッパーがあって安心です
Cooling and heating ・ Air conditioning冷暖房・空調設備  Cool in summer in geothermal effect ・ Possible incorporating the winter warm air It is economical in eco lead to the reduction of air conditioning bill
地熱効果で夏涼しく・冬暖かい空気を取り入れ可能 エアコン代の軽減に繋がりエコで経済的です
Bathroom浴室  ■ PanaHome bathroom Heating ・ Cool breeze ・ Drying ・ Equipped with ventilation year-round comfortable bathing Hot water is cold difficult economical vacuum insulation bathtub
■パナホームバスルーム暖房・涼風・乾燥・換気を完備し1年中快適に入浴 真空断熱浴槽でお湯が冷めにくく経済的です
Other Equipmentその他設備  Storage rich three-sided mirror vanity Shaving and dryer will be beautiful and clean water around Katazuki to clean
収納豊富な3面鏡洗面台 髭剃りやドライヤーがキレイに片付き美しく清潔な水周りになります
 route map
路線図
 Local guide map
現地案内図
Access view交通アクセス図  ■ When traveling by Route 16 is, Book-Off and Mazda dealers the intersection of mark, You bend please
■国道16号線でお越しの際は、ブックオフとマツダディーラーが目印の交差点を、お曲がり下さい
Kindergarten ・ Nursery幼稚園・保育園  1100m to Noda center kindergarten
野田中央幼稚園まで1100m
Shopping centreショッピングセンター  Uniqlo 820m to Noda shop
ユニクロ 野田店まで820m
Home centerホームセンター  Keiyo Deitsu 620m to Noda shop
ケーヨーデイツー野田店まで620m
Primary school小学校  880m to Noda City Southern Elementary School
野田市立南部小学校まで880m
Junior high school中学校  140m to Noda City Southern Junior High School
野田市立南部中学校まで140m
Construction ・ Construction method ・ specification構造・工法・仕様  In PanaHome has a house-building in mind the three concepts
パナホームでは3つのコンセプトを念頭に住まい造りをしています
 ■ safety ・ Peace of mind ⇒ with the case of emergency
■安全・安心⇒いざという時の備え
 ■ health ・ With comfort ⇒ everyday
■健康・快適⇒日常の備え
 ■ Energy creation ・ Housing that does not take the money to live long energy saving ⇒
■創エネ・省エネ⇒長く住んでお金のかからない住まい
Cooling and heating ・ Air conditioning冷暖房・空調設備  Air-conditioned in the living room and master bedroom Living air conditioning, Cleaning is a breeze in with a cleaning robot
リビングと主寝室にエアコン完備 リビングエアコンは、お掃除ロボット付でお手入れ楽々です
Other Equipmentその他設備  TV ・ PC ・ Always deploy the outlet connecting the TEL in each room Comfortably spend in any room
TV・PC・TELを繋げるコンセントを各部屋に必ず配備 どの部屋でも快適に過ごせます
Livingリビング  ■ Panasonic G seems to planning that takes into account the TV placement
■TV配置を考慮したパナソニックGらしいプランニング
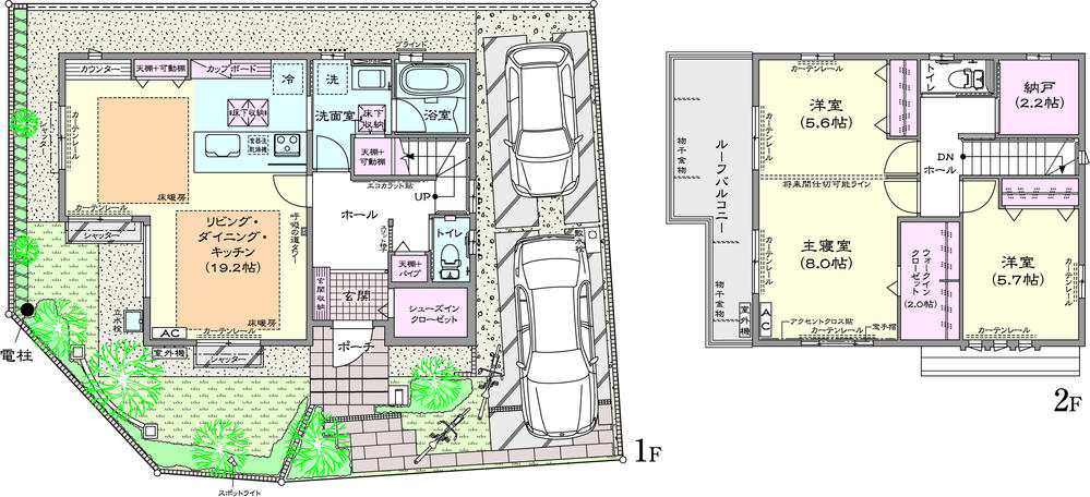
Floor plan間取り図  We look forward to your visit of everyone.
皆様のご来場をお待ちしております。
 We look forward to your visit of everyone.
皆様のご来場をお待ちしております。
 We look forward to your visit of everyone.
皆様のご来場をお待ちしております。
 We look forward to your visit of everyone.
皆様のご来場をお待ちしております。
Other Equipmentその他設備  Equipped with outlet for the expected EV vehicles demand It also supports life in the near future
需要拡大が見込まれるEV車用のコンセントを完備 近未来の生活にも対応しております
The entire compartment Figure全体区画図  Noda Baigo whole compartment view / 2013 September 14, currently
野田梅郷全体区画図/2013年9月14日現在
Location
|