New Homes » Kanto » Chiba Prefecture » Noda
 
| | Chiba Prefecture Noda 千葉県野田市 |
| Tobu Noda Line "Noda" walk 12 minutes 東武野田線「野田市」歩12分 |
| This matter is the one section of the city where history and culture is woven is, It is a good thing per yang facing south road. Kanto Fujimi Hyakkei is also four places, It gives you the healing and relaxation time. 歴史と文化が織りなす街の一画である本件は、南道路に面した陽当たり良好な物件です。関東富士見百景が4ヶ所もあり、癒しと寛ぎの時間を与えてくれます。 |
| Siemens south road, Parking two Allowed, Land 50 square meters or more, LDK15 tatami mats or more, Yang per good, Our 20-year warranty 南側道路面す、駐車2台可、土地50坪以上、LDK15畳以上、陽当り良好、当社20年保証 |
Features pickup 特徴ピックアップ | | Parking two Allowed / Land 50 square meters or more / Yang per good / Siemens south road / LDK15 tatami mats or more 駐車2台可 /土地50坪以上 /陽当り良好 /南側道路面す /LDK15畳以上 | Price 価格 | | 22,900,000 yen 2290万円 | Floor plan 間取り | | 4LDK 4LDK | Units sold 販売戸数 | | 1 units 1戸 | Land area 土地面積 | | 172.41 sq m (registration) 172.41m2(登記) | Building area 建物面積 | | 104.33 sq m (registration) 104.33m2(登記) | Driveway burden-road 私道負担・道路 | | Nothing, South 9m width 無、南9m幅 | Completion date 完成時期(築年月) | | 4 months after the contract 契約後4ヶ月 | Address 住所 | | Chiba Prefecture Noda Kamihanawa 千葉県野田市上花輪 | Traffic 交通 | | Tobu Noda Line "Noda" walk 12 minutes 東武野田線「野田市」歩12分 | Related links 関連リンク | | [Related Sites of this company] 【この会社の関連サイト】 | Person in charge 担当者より | | Person in charge of real-estate and building FP Aoki Hiroyuki Age: 40 Daigyokai experience: This is Aoki of 22-year senior managing director. Started along TX line, Detailed area of Ibaraki Prefecture, south region, environment, Educational institutions, Ground such as, Please let me know the realistic information to our company with the founding years of the 70 years. There is surely good encounter. 担当者宅建FP青木 弘行年齢:40代業界経験:22年専務の青木です。TX沿線を始め、茨城県南地域の詳細な地域性、環境、教育施設、地盤など、リアルな情報を70年の創業年数を持つ当社までご一報下さい。きっと良い出会いがあります。 | Contact お問い合せ先 | | TEL: 0800-603-1870 [Toll free] mobile phone ・ Also available from PHS Caller ID is not notified Please contact the "saw SUUMO (Sumo)" If it does not lead, If the real estate company TEL:0800-603-1870【通話料無料】携帯電話・PHSからもご利用いただけます 発信者番号は通知されません 「SUUMO(スーモ)を見た」と問い合わせください つながらない方、不動産会社の方は
| Building coverage, floor area ratio 建ぺい率・容積率 | | 60% ・ 200% 60%・200% | Time residents 入居時期 | | 4 months after the contract 契約後4ヶ月 | Land of the right form 土地の権利形態 | | Ownership 所有権 | Structure and method of construction 構造・工法 | | Wooden 2-story 木造2階建 | Construction 施工 | | Nichiei Home Co., Ltd. 日栄ホーム(株) | Overview and notices その他概要・特記事項 | | Contact: Aoki Hiroyuki, Facilities: Public Water Supply, This sewage, Individual LPG, Building confirmation number: TU13-1135, Parking: car space 担当者:青木 弘行、設備:公営水道、本下水、個別LPG、建築確認番号:TU13-1135、駐車場:カースペース | Company profile 会社概要 | | <Seller> Minister of Land, Infrastructure and Transport (4) No. 005661 (Corporation) metropolitan area real estate Fair Trade Council member Nichiei Shoji Co., Ltd. Yubinbango303-0031 Ibaraki Prefecture Joso City Mitsukaido Yamada 4663 <売主>国土交通大臣(4)第005661号(公社)首都圏不動産公正取引協議会会員 日栄商事(株)〒303-0031 茨城県常総市水海道山田町4663 |
 Rendering (appearance)
完成予想図(外観)
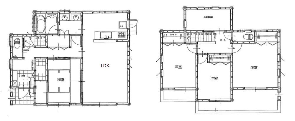
Floor plan間取り図  22,900,000 yen, 4LDK, Land area 172.41 sq m , Building area 104.33 sq m
2290万円、4LDK、土地面積172.41m2、建物面積104.33m2
 Same specifications photos (living)
同仕様写真(リビング)
 Same specifications photo (bathroom)
同仕様写真(浴室)
 Local photos, including front road
前面道路含む現地写真
Station駅  700m to Noda Station
野田市駅まで700m
 Local photos, including front road
前面道路含む現地写真
Primary school小学校  1270m to the center primary school
中央小学校まで1270m
Junior high school中学校  620m to a second junior high school
第二中学校まで620m
Supermarketスーパー  Tsurukame to land 200m
つるかめランドまで200m
 200m to exciting Square
わくわく広場まで200m
Otherその他  Precisely because its integrated system, Please leave also to after-sales maintenance after your move. If after purchase also visit the company, Looks knows face, You can feel free to contact us, Versatile. We wanted to continue to be in such company.
自社一貫体制だからこそ、お引越し後のアフターメンテナンスまでもお任せ下さい。購入後も会社を訪れれば、知った顔が見え、気軽に相談ができ、融通が利く。私達はそんな会社であり続けたいと思っています。
 Rushed to the site and there is a contact from customers who handed over a house. While in the care of two of grasp and understanding of your feelings of building, We will respond on a case-by-case basis.
家を引き渡したお客様から連絡があると現地に急行。建物の把握とお客様の気持ちの理解という2つを大切にしながら、臨機応変に対応させて頂きます。
Location
|