|
|
Chiba Prefecture Noda
千葉県野田市
|
|
Tobu Noda line "Baigo" walk 14 minutes
東武野田線「梅郷」歩14分
|
|
Baigo a 14-minute walk from the train station, Is an all-electric homes using natural materials.
梅郷駅より徒歩14分、自然素材を使ったオール電化住宅です。
|
|
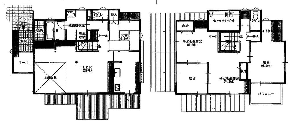
● site There are two cars also car space in the spacious 56.50 square meters (186.79 sq m). ● all-electric house using natural materials. Environmentally friendly solar power generation system installed. ● relax with family LDK 22 Pledge, Large space ● the second floor of the living room of the slope ceiling with blow-Enjoy a layout tailored to the lifestyle of your family. ● spacious How is it, such as a home party is on holiday in the wood deck? , Living environment is good. ● local will guide you! First, the "look at the SUUMO" Please feel free to contact us.
●敷地はゆったり56.50坪(186.79m2)でカースペースも2台分あります。●自然素材を使用したオール電化住宅。環境にも優しい太陽光発電システム搭載。●家族の憩うLDKは22帖、吹抜けのある勾配天井の大空間●二階の居室はご家族のライフスタイルに合わせたレイアウトをお楽しみ下さい。●広々ウッドデッキで休日にはホームパーティーなどいかがですか?●周辺には緑も多く、住環境良好です。●現地ご案内致します!まずは「SUUMOを見て」とお気軽にお問合せ下さい。
|
Features pickup 特徴ピックアップ | | Solar power system / Parking two Allowed / Immediate Available / LDK20 tatami mats or more / Land 50 square meters or more / System kitchen / Yang per good / A quiet residential area / Or more before road 6m / Natural materials / 2-story / Atrium / Leafy residential area / Ventilation good / Wood deck / All-electric / All rooms are two-sided lighting 太陽光発電システム /駐車2台可 /即入居可 /LDK20畳以上 /土地50坪以上 /システムキッチン /陽当り良好 /閑静な住宅地 /前道6m以上 /自然素材 /2階建 /吹抜け /緑豊かな住宅地 /通風良好 /ウッドデッキ /オール電化 /全室2面採光 |
Price 価格 | | 39,800,000 yen 3980万円 |
Floor plan 間取り | | 3LDK 3LDK |
Units sold 販売戸数 | | 1 units 1戸 |
Total units 総戸数 | | 1 units 1戸 |
Land area 土地面積 | | 186.79 sq m (56.50 tsubo) (measured) 186.79m2(56.50坪)(実測) |
Building area 建物面積 | | 121.99 sq m (36.90 tsubo) (measured) 121.99m2(36.90坪)(実測) |
Driveway burden-road 私道負担・道路 | | Nothing, Southwest 18m width 無、南西18m幅 |
Completion date 完成時期(築年月) | | November 2013 2013年11月 |
Address 住所 | | Chiba Prefecture Noda Mizuki 1 千葉県野田市みずき1 |
Traffic 交通 | | Tobu Noda Line "Baigo" walk 14 minutes Tobu Noda line "Noda" walk 35 minutes Tobu Noda Line "canal" walk 37 minutes 東武野田線「梅郷」歩14分東武野田線「野田市」歩35分東武野田線「運河」歩37分 |
Person in charge 担当者より | | Person in charge of real-estate and building Imada Naofumi Age: 30 Daigyokai experience: the fact that with a seven-year house is that a lot of fun. I also because the family often, Who Families with children also Please feel free to contact us. First of all I think that if you can be happy to help from your tour. For the family of smile, I'll do my best. 担当者宅建今田 直文年齢:30代業界経験:7年家を持つということはとても楽しい事です。私も家族が多いので、お子様連れの方もお気軽にご相談下さい。まずはご見学からお手伝いさせて頂ければと思います。ご家族の笑顔の為、がんばります。 |
Contact お問い合せ先 | | TEL: 0800-603-0711 [Toll free] mobile phone ・ Also available from PHS Caller ID is not notified Please contact the "saw SUUMO (Sumo)" If it does not lead, If the real estate company TEL:0800-603-0711【通話料無料】携帯電話・PHSからもご利用いただけます 発信者番号は通知されません 「SUUMO(スーモ)を見た」と問い合わせください つながらない方、不動産会社の方は
|
Building coverage, floor area ratio 建ぺい率・容積率 | | 60% ・ 200% 60%・200% |
Time residents 入居時期 | | Immediate available 即入居可 |
Land of the right form 土地の権利形態 | | Ownership 所有権 |
Structure and method of construction 構造・工法 | | Wooden 2-story 木造2階建 |
Use district 用途地域 | | One dwelling 1種住居 |
Overview and notices その他概要・特記事項 | | Contact: Imada Naofumi, Facilities: Public Water Supply, This sewage, All-electric, Parking: car space 担当者:今田 直文、設備:公営水道、本下水、オール電化、駐車場:カースペース |
Company profile 会社概要 | | <Mediation> Minister of Land, Infrastructure and Transport (11) No. 002401 (the company), Chiba Prefecture Building Lots and Buildings Transaction Business Association (Corporation) metropolitan area real estate Fair Trade Council member (Ltd.) a central residential Porras residence of Information Center Edogawadai office Yubinbango270-0103 Chiba Prefecture Nagareyama Mihara 1-155-27 <仲介>国土交通大臣(11)第002401号(社)千葉県宅地建物取引業協会会員 (公社)首都圏不動産公正取引協議会加盟(株)中央住宅ポラス住まいの情報館 江戸川台営業所〒270-0103 千葉県流山市美原1-155-27 |