New Homes » Kanto » Chiba Prefecture » Sakura City
 
| | Sakura, Chiba Prefecture 千葉県佐倉市 |
| JR Sobu "Sakura" walk 9 minutes JR総武本線「佐倉」歩9分 |
| The spacious grounds of about 143 square meters, Or newly built all-electric single-family one-story construction is how? ・ School is near, Is a livable environment. 約143坪の広々敷地に、平屋建の新築オール電化戸建はいかがですか?駅・学校が近く、住み良い環境です。 |
| ■ Land is widely and 143.92 square meters, Parking space three Bun'yu! ■ Comfortable eco-life, you can enjoy in the all-electric. ■ Terasaki elementary school is 2 minutes and the nearby walk, Mom and Pop peace of mind. ■ Walk from the Sakura Station 9 minutes! It is easy to also commute. ■ All room storage, There is also three points of the underfloor storage, Substantial storage space ■土地は143.92坪と広く、駐車スペース3台分有!■オール電化で快適にエコライフが満喫できます。 ■寺崎小学校が徒歩2分と近く、パパママ安心。 ■佐倉駅まで徒歩9分!通勤通学もしやすいですね。 ■全居室収納、3か所の床下収納もあって、充実した収納スペース |
Features pickup 特徴ピックアップ | | Land more than 100 square meters / System kitchen / Yang per good / All room storage / Japanese-style room / Face-to-face kitchen / Underfloor Storage / The window in the bathroom / All-electric 土地100坪以上 /システムキッチン /陽当り良好 /全居室収納 /和室 /対面式キッチン /床下収納 /浴室に窓 /オール電化 | Price 価格 | | 32,890,000 yen 3289万円 | Floor plan 間取り | | 3LDK 3LDK | Units sold 販売戸数 | | 1 units 1戸 | Total units 総戸数 | | 1 units 1戸 | Land area 土地面積 | | 475.8 sq m (registration) 475.8m2(登記) | Building area 建物面積 | | 95.47 sq m (registration) 95.47m2(登記) | Driveway burden-road 私道負担・道路 | | Nothing, North 4m width 無、北4m幅 | Completion date 完成時期(築年月) | | March 2014 2014年3月 | Address 住所 | | Sakura, Chiba Prefecture Terasaki 千葉県佐倉市寺崎 | Traffic 交通 | | JR Sobu "Sakura" walk 9 minutes JR総武本線「佐倉」歩9分
| Person in charge 担当者より | | Rep Kurihara Takashika is the foundation of life, That buy it in one of a lifetime, It is a very large shopping. Customers was good living "! "When, Find the house who can sincerely happy, In good faith, We would like to support with full force. 担当者栗原 隆家は生活の基盤であり、それを買う事は一生のうちで、とても大きい買い物です。お客様が「住んで良かった!」と、心から満足して頂ける住まい探しを、誠意を持って、全力でサポートしていきたいと思います。 | Contact お問い合せ先 | | TEL: 0800-603-0395 [Toll free] mobile phone ・ Also available from PHS Caller ID is not notified Please contact the "saw SUUMO (Sumo)" If it does not lead, If the real estate company TEL:0800-603-0395【通話料無料】携帯電話・PHSからもご利用いただけます 発信者番号は通知されません 「SUUMO(スーモ)を見た」と問い合わせください つながらない方、不動産会社の方は
| Building coverage, floor area ratio 建ぺい率・容積率 | | 60% ・ 200% 60%・200% | Time residents 入居時期 | | 4 months after the contract 契約後4ヶ月 | Land of the right form 土地の権利形態 | | Ownership 所有権 | Structure and method of construction 構造・工法 | | Wooden 1 story 木造1階建 | Use district 用途地域 | | Urbanization control area 市街化調整区域 | Other limitations その他制限事項 | | Set-back: already セットバック:済 | Overview and notices その他概要・特記事項 | | Contact: Kurihara Takashi, Facilities: Public Water Supply, This sewage, All-electric, Building Permits reason: City Planning Law Enforcement Ordinance Article 36 corresponds to 1, Item No. 3 b, Building confirmation number: Sakura City No. 8981, Parking: car space 担当者:栗原 隆、設備:公営水道、本下水、オール電化、建築許可理由:都市計画法施行令36条1項3号ロに該当、建築確認番号:佐倉市第8981号、駐車場:カースペース | Company profile 会社概要 | | <Mediation> Minister of Land, Infrastructure and Transport (11) No. 001961 (the company), Chiba Prefecture Building Lots and Buildings Transaction Business Association (Corporation) metropolitan area real estate Fair Trade Council member Tokai Housing Corporation head office Yubinbango276-0032 Chiba Prefecture Yachiyo Yachiyodaihigashi 1-2-11 <仲介>国土交通大臣(11)第001961号(社)千葉県宅地建物取引業協会会員 (公社)首都圏不動産公正取引協議会加盟東海住宅(株)本店〒276-0032 千葉県八千代市八千代台東1-2-11 |
Local appearance photo現地外観写真  Local (10 May 2013) Shooting
現地(2013年10月)撮影
Local photos, including front road前面道路含む現地写真  Current Status 1
現況1
Local appearance photo現地外観写真  Current Status 2
現況2
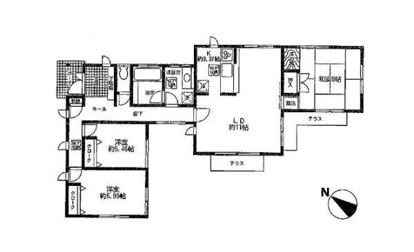
Floor plan間取り図  32,890,000 yen, 3LDK, Land area 475.8 sq m , Since the building area 95.47 sq m site is wide, Is it a house of luxurious one-story construction is how
3289万円、3LDK、土地面積475.8m2、建物面積95.47m2 敷地が広いので、贅沢な平屋建の家はいかがですか
Primary school小学校  Terasaki until elementary school 500m 6-minute walk
寺崎小学校まで500m 徒歩6分
Junior high school中学校  Nesato until junior high school 2800m walk 23 minutes
根郷中学校まで2800m 徒歩23分
Other Environmental Photoその他環境写真  800m 9 minute walk from JR Sakura Station
JR佐倉駅まで800m 徒歩9分
Supermarketスーパー  Supermarket Toes 800m shopping is also convenient walking distance to Sakura Station shop
スーパー トウズ 佐倉駅前店まで800m 買い物も徒歩圏で便利です
Kindergarten ・ Nursery幼稚園・保育園  Sakura City Tatsukon 700m walking distance to the village nursery school
佐倉市立根郷保育園まで700m 徒歩圏
Location
|