New Homes » Kanto » Chiba Prefecture » Yachiyo
 
| | Chiba Prefecture Yachiyo 千葉県八千代市 |
| Keisei Main Line "Yachiyodai" walk 19 minutes 京成本線「八千代台」歩19分 |
Features pickup 特徴ピックアップ | | Corresponding to the flat-35S / Parking two Allowed / Immediate Available / LDK18 tatami mats or more / System kitchen / Bathroom Dryer / Yang per good / All room storage / Flat to the station / A quiet residential area / Around traffic fewer / Or more before road 6m / Japanese-style room / Shaping land / garden / Washbasin with shower / Face-to-face kitchen / Toilet 2 places / Bathroom 1 tsubo or more / 2-story / Double-glazing / Warm water washing toilet seat / Underfloor Storage / The window in the bathroom / TV monitor interphone / IH cooking heater / Dish washing dryer / Walk-in closet / Water filter / Living stairs / Flat terrain フラット35Sに対応 /駐車2台可 /即入居可 /LDK18畳以上 /システムキッチン /浴室乾燥機 /陽当り良好 /全居室収納 /駅まで平坦 /閑静な住宅地 /周辺交通量少なめ /前道6m以上 /和室 /整形地 /庭 /シャワー付洗面台 /対面式キッチン /トイレ2ヶ所 /浴室1坪以上 /2階建 /複層ガラス /温水洗浄便座 /床下収納 /浴室に窓 /TVモニタ付インターホン /IHクッキングヒーター /食器洗乾燥機 /ウォークインクロゼット /浄水器 /リビング階段 /平坦地 | Event information イベント情報 | | Open House (Please make a reservation beforehand) schedule / Every Saturday and Sunday time / 11:00 ~ Just 17:00 tours are welcome. First of all, please come to see once. Elevator You can also test drive. オープンハウス(事前に必ず予約してください)日程/毎週土日時間/11:00 ~ 17:00見学だけでも大歓迎です。まずは一度見に来て下さい。エレベーターも試乗できます。 | Price 価格 | | 29,800,000 yen 2980万円 | Floor plan 間取り | | 4LDK 4LDK | Units sold 販売戸数 | | 1 units 1戸 | Total units 総戸数 | | 1 units 1戸 | Land area 土地面積 | | 119 sq m (35.99 tsubo) (Registration) 119m2(35.99坪)(登記) | Building area 建物面積 | | 110.53 sq m (33.43 tsubo) (measured) 110.53m2(33.43坪)(実測) | Driveway burden-road 私道負担・道路 | | Nothing, North 6m width (contact the road width 11.7m) 無、北6m幅(接道幅11.7m) | Completion date 完成時期(築年月) | | November 2012 2012年11月 | Address 住所 | | Chiba Prefecture Yachiyo Yachiyodainishi 10-14-2 千葉県八千代市八千代台西10-14-2 | Traffic 交通 | | Keisei Main Line "Yachiyodai" walk 19 minutes 京成本線「八千代台」歩19分
| Contact お問い合せ先 | | Keiseifudosan Ltd. Yachiyodai office TEL: 0800-603-2378 [Toll free] mobile phone ・ Also available from PHS Caller ID is not notified Please contact the "saw SUUMO (Sumo)" If it does not lead, If the real estate company 京成不動産(株)八千代台営業所TEL:0800-603-2378【通話料無料】携帯電話・PHSからもご利用いただけます 発信者番号は通知されません 「SUUMO(スーモ)を見た」と問い合わせください つながらない方、不動産会社の方は
| Building coverage, floor area ratio 建ぺい率・容積率 | | Fifty percent ・ Hundred percent 50%・100% | Time residents 入居時期 | | Immediate available 即入居可 | Land of the right form 土地の権利形態 | | Ownership 所有権 | Structure and method of construction 構造・工法 | | Wooden 2-story (2 × 4 construction method) 木造2階建(2×4工法) | Construction 施工 | | (Yes) Annex design (有)アネックスデザイン | Use district 用途地域 | | One low-rise 1種低層 | Overview and notices その他概要・特記事項 | | Facilities: Public Water Supply, This sewage, City gas, Parking: car space 設備:公営水道、本下水、都市ガス、駐車場:カースペース | Company profile 会社概要 | | <Mediation> Minister of Land, Infrastructure and Transport (4) No. 005540 Keiseifudosan Co. Yachiyodai office Yubinbango276-0032 Chiba Prefecture Yachiyo Yachiyodaihigashi 1-18-2 <仲介>国土交通大臣(4)第005540号京成不動産(株)八千代台営業所〒276-0032 千葉県八千代市八千代台東1-18-2 |
Local appearance photo現地外観写真  Local (10 May 2013) Shooting
現地(2013年10月)撮影
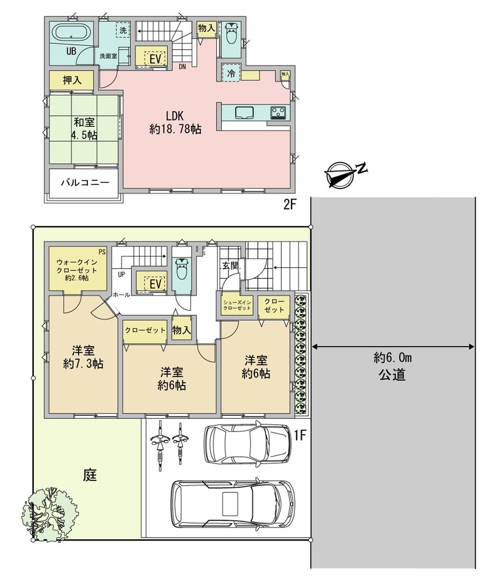
Floor plan間取り図  29,800,000 yen, 4LDK, Land area 119 sq m , Building area 110.53 sq m
2980万円、4LDK、土地面積119m2、建物面積110.53m2
Bathroom浴室  Indoor (10 May 2013) Shooting
室内(2013年10月)撮影
Livingリビング  Indoor (10 May 2013) Shooting
室内(2013年10月)撮影
Kitchenキッチン  Indoor (10 May 2013) Shooting IH Cooking, With dish washing dryer
室内(2013年10月)撮影 IHクッキング、食器洗乾燥機付
Other introspectionその他内観  Indoor (10 May 2013) Shooting
室内(2013年10月)撮影
Location
|